很喜欢这类感觉的设计,这三款住宅设计,整个空间很有生命力与活力,优雅的设计格调,以极致的当代设计美学呈现,并拥有属于自己的艺术。
M Lane Apartment
这个比例绝了,Emil Dervish设计新作,温馨折衷主义私宅,轻盈而纯粹!Emil Dervish的作品正在成为新的设计风向,他所定义的极简主义之美,不仅在于减少它,还在于体现简约性的设计元素,几何线条以及清晰的结构和秩序感。
De Padova Gdańsk
Interno Iza Gajewska设计新作,黑白相间融入浅色木质的经典搭配,形成简约其外、隽永其中的素雅居宅。好的设计对时尚和趋势、触觉,有自己的历史和内涵,复活独特的工艺,携带这样一个思想,这是设计师想要表达的。
White freedom
Anna Pahomova
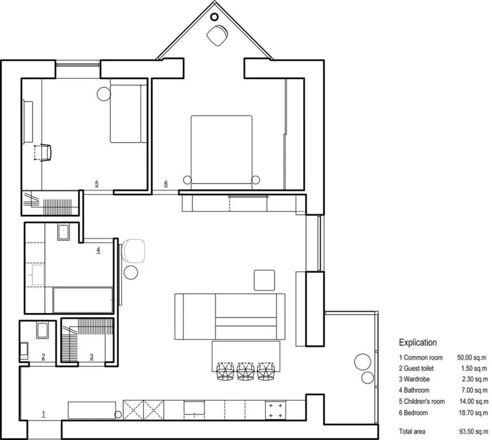
,面积为90.5㎡,配色非常舒服,全屋没有踢脚线,采光面也处理得当。一家三口,设计师结合户型特征,打造出家庭核心区,围绕核心区,每个人都由自己的专属领地,又能兼顾家庭成员的互动。

