项目名称:厦门中南九锦台
空间设计:水相设计 waterfrom design
设计团队:李智翔、葛祝纬、林其纬、黄昱诚、陈宥儒
软装设计: 水相设计 waterfrom design 万有引力室内设计有限公司
主要材料:莱姆石、城堡灰石材、香杉实木、红铜染黑、黄铜染黑、手工漆、抓痕泥客石
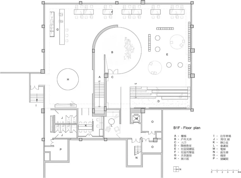
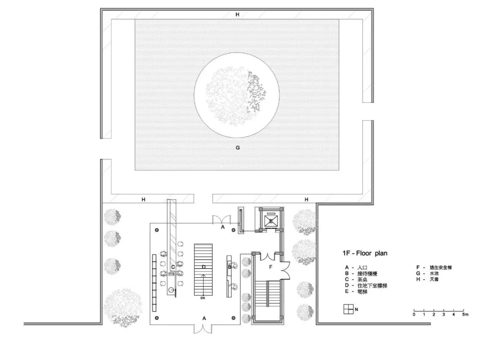
厦门中南地产别于传统售楼处的前提:售楼处建筑日后将供在地小区永续使用,其二,两层楼空间除接待入口,大部分使用面积位于地景下。如何发挥与外隔绝独立场域的特点,同时维持阳光、空气与水三元素的环境架构,是负责此案的水相设计首要设定的课题
预期未来小区应用的蓝图,我们从一楼入口开始建立串连在地记忆的地景。
过往村镇生活总以老树为集会核心,链结人们交换日常信息与情感,生活大小事向树下靠拢是习惯也成一种集体记忆。而茶,又是老厦门的文化主轴及精髓,烹水泡茶、以茶待友是仪式更是生活,无关乎茶的等级,饮的是自在净心。
茶席旁地板有处开口,是通往湖泊下方洞穴的阶梯。大抵这世间所有传奇的世外桃源皆始于一处隐而不显、难以觉察的入口,是以外人屡屡探寻里头那从容不受打扰、时光悠然的生活。透过这段昏暗无饰的地下廊道,洗礼人们的日常杂绪从而沈淀心绪回归本质。
为延续外界不染的超然感受,我们屏弃了矫饰与刺激感官的色彩,回归温润、自然质朴的材质,并维持纯粹的质地与触感。过程中极力避免过度表现的形式,以直觉性的线条架构空间。
无论是售楼处或作为日后小区艺文活动中心,我们撇除过份具体的功能框架,希望以设计创造一处开启对话的场域。
空间设计 | 李智翔, 林其纬/水相设计
空间性质 | 台湾私宅
室内面积 | 122㎡
主要材料 | 染铁刀木皮、富洛克灰白手工漆、实木条格栅染白、意大利矿物涂料手工漆(黑色)、意大利矿物涂料手工漆(白灰色)、意大利矿物涂料手工漆(蓝绿色)、烧杉染白、白色横纹手工漆、雕刻白石材、黑铁层板烤漆、冲孔网(蓝绿色烤漆)、黑色赛丽石檯面、海岛型木地板
蜿蜒的玄关通道如山間曲徑,顺势引向柳暗花明又一境的豁然感官
本案非矩阵基地带来特殊格局角度,设计师以水墨画多点透视的概念发想,替牆面转折赋予柳暗花明又一境的叙事意涵,并从垂直立面延伸至天花板或蜿蜒、或翻折如远景山稜线条,每笔弯折相连或层叠,带来层次丰富的浓淡阴影,如墨色静寂晕染开来,缓缓铺垫大块雾白色域的苍茫和文气,如水墨世界裡的留白,抒怀没有尽头的情感。
烧杉染白后的烟灰色裂紋,創造细致而自然的装饰性线条
层架中一抹暗紅若隱若現,整座层架宛如一幅极简主义浮雕画作
水相设计想将这样保存自然景致和个人记忆情感的叙事方式,表现在住宅的静寂日常。
本案基地非典型的矩阵形状,多处牆面以斜角相接,加上建物压缩楼面高度的樑柱,在水平和垂直立面上有许多曲折和角度待处理。
于是格局层次上,我们调整空间配比和隔间形式以便完整利用畸零角度,柜体佈局即是化零为整的手法,并微调动线与视觉轴线,呈现简化纯淨的立面环境。
天花板的蜿蜒、翻折立面,天光下形成綿延层叠的淡墨晕染层次
除了墨色的佈局,我们也应用材料质地在大块色域创造细节。入口白牆以特殊涂料创造矿石感横纹,在自然光强弱端呈现细腻的浓淡光谱,像水墨在纸上无声晕开却令人著迷;通道尽头如画的层架底板,以烧衫染白自然呈现烟灰色裂纹,如水墨乾笔笔触,在一室温和中烙印出力道。
千条实木拼接牆面形成木紋色域,木片斜切角度創造更丰富的阴影变化
一室霧色,开放厨房的石墨色中岛成了錨定色域层次的浓墨
又如餐厨至卧房通道的L型牆体,以千条实木切斜角后拼贴排佈,远看是木纹饶富深浅变化的块面,实则布满一束束木头肌理,包括令人想伸手触碰的立体切角,在水墨的意境裡留了点浮雕的触觉趣味。
物的质地,像水墨笔法丰富了空间可观的细部,以及随时间累积可一再细究的韵味。
廚房中岛是室內曲径、建筑各面采光的交汇之处
延续牆体和路径的结构特色,我们在天花板设计几处弧型与稜线,它们以约略性质的动感姿态或水平、或垂直方向翻折,修饰了特别低矮的樑柱结构体,也把格局斜角带至另一向度发展成水墨画中
垂直、水平方向非制式的折翘角度,在不同光源下交织如水墨画中层层远山
室内非矩阵的角度让动线变得特别,我们希望创造一种如漫步山间的閒散感受,长长玄关甬道引入室内,如浮雕画作的层架映入眼帘,仿彿路理当这麽走,才能体会豁然开朗的意境。
牆面和缓弯折同时带来浓淡层次丰富的阴影,影子落在牆边清淡如晨雾,用若有似无的姿态铺陈空间的
天花板約略性线条和角度,让整室非矩阵的斜角结构显得随性且独特
最初,屋主希望空间尽可能仅有白或灰,一迳的素淨。不过再淡的墨色或大片留白,也需要几笔浓墨作为锚一般的角色沉落,才能凸显出雾的飘渺或水色辽阔。开放厨房的中岛便是那重要的墨色,檯面石质细纹和石墨色底座,在公共区域每个视角端景印压出层次深度,于轻飘迷离的雾色中锚定了起居方位。
素淨壁面利用涂料紋理,將缭绕雲霧浓缩在卧室角落
屋主长年出差而有下榻飯店的丰富体验
希望主臥卫浴和卧榻区有类似饭店客房的空間关系
屏除重彩的墨笔淡色,在崇尚雅致宁静的起居世界裡发挥了令人心定的功能,把山水的想像收放在空间结构的立面转角间,雾色聚散随日照移转,悠然此山中,宁静致远。
成立于2008年的水相设计跨足室内与建筑领域,秉持设计应如『水』的初衷,纯净、有机又多变,本质上保持其原有的简洁性,意念上展现无框架的可能性。致力关注于空间的故事脉络及时间光线,创造一个具有情感沉淀及讯息想象的空间。
从事设计迄今十余年,作品揉和极简与幽默,毕业自纽约普瑞特艺术学院室内设计硕士与丹麦哥本哈根大学建筑研究。带着艺术、人文、哲学的思考,李智翔的学习养成到执业,有着建筑设计般的理性思维,亦有艺术家的叛逆本质,他喜欢在规则的例外对既有秩序重新定义,在不可预知的不准确性下发现惊奇

