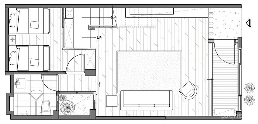
开放式空间越来越受欢迎,也更加符合现代生活实用性。案例由木介空间设计,这间住宅屋龄已有16年,在屋主搬进去前,是很传统的4房格局,不过只有夫妻俩住,又需南北两头跑,在家待的时间不如一般屋主长,不需太多隔间影响真正使用率。
他们决定采取超前卫的空间规划,将所有隔间墙打掉,重整为只有一个房间,并
且还将主卧推门改成可完全敞开的滑门,厨房、工作区、客厅、到卧房串联起来,变成无隔间形式。
为了让空间更加简洁整齐,卫浴、收纳等需要实牆和大量柜体的机能,全部都被整合到右方,保留左方大面积空地,让光线不受阻碍、视线也更加清爽。
屋主本身从事时尚相关产业,对美感有一定的自信,也很了解自己的使用需求,家具只有简单的皮沙发和一张兼工作功能的大木桌,以自己的收藏品当装饰,甚至省下购置书柜费用,书籍、杂志率性横放于地面,将来想必是个性十足的另类书墙!
PROJECT TEAM
不同背景设计师群,不同环境磨练碰撞,秉持相同执著理念,追求相同自我突破,因应各式风格型态,使设计师与之激荡灿烂火花。
Luxury comfort in historic home
随著时间推演,原本乘载孩提回忆的屋子,现已随著各自成家而少了过去热闹与风采,由游雅清空间设计及木介空间设计联合制作的60年老屋,就是一家人有这种感念,兄弟姐妹都离开家乡,老家年久而缺乏整理,因而以怀旧感作为翻新主要诉求,比起过多装饰面,更著重于将过往记忆复兴。
设计团队尽量不更动原始建筑外观,但将室内动线调整并适度把玄关往内退缩,原本私领域重新规划出大量公共区域,即使是三楼卧房也加入开放式空间设计,划分和室、阁楼场域,逢年过节时团聚,长大后的家人们也能有温馨的回家感觉。
这间配有质朴水泥外墙及台湾特色铁窗的两层楼建筑,设计团队木介空间设计藉由新物件与旧建筑相融合的规划,空间内保留老屋传统窗花、木桁结构屋顶天花、红砖墙延续空间裡的历史记忆,展现老建筑韵味,不需要大刀阔斧的室内装潢,利用西班牙花砖、配色吊灯、工业风桌椅等新家具物件与乐土水泥色调材质产生强烈对比,新元素的搭配为灰冷空间氛围增添现代感与活力,赋予荒废空间新生命。
The shape of lazy pet
喜爱小动物的情侣档养了三只猫一只狗,小坪数住宅要营造宽敞的视觉效果外,还要让毛小孩们能有足够的活动空间,在不限制活动范围的准则下要让新装潢的居家保持原本的样貌其实有方法,木介设计选择防抓耐磨的建材,色系上让空间尽量简单清爽,让家人和小动物们都能享受完整个居家空间。
来源:花儿漫(ID:gh_f22532343263)


666