 
 
 
 
设计本案之初,RWD团队融入对大自然的向往,致力打造一个适合高端客群营销中心,让人们在质量基底上感受细节质量。设计师决意延伸建筑外观到室内,整体空间铺上圣保罗灰大理石,四周以木质百叶窗为帘,最大程度将自然光感及环境景观引入室内。设计提倡回归生活初衷,为空间作减法,以精简线条结构展示空间简洁精致。
 
 
 
 
 
 
 
 
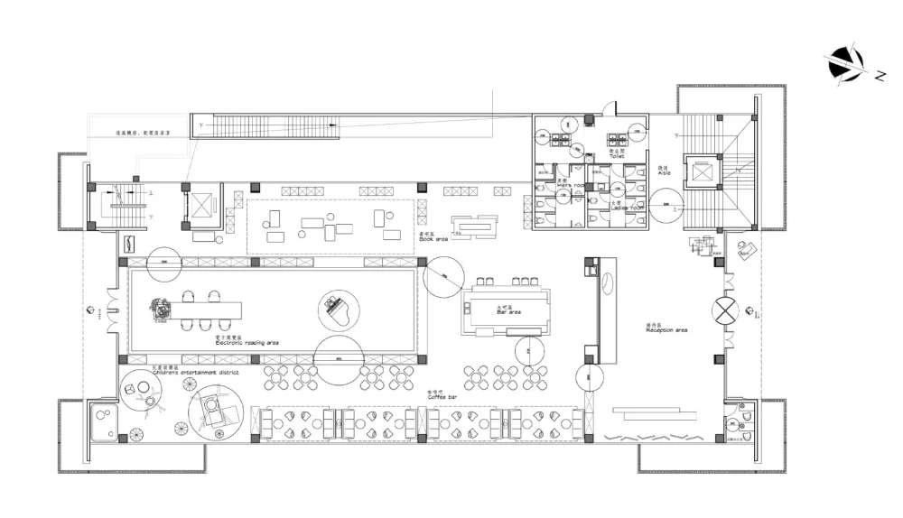
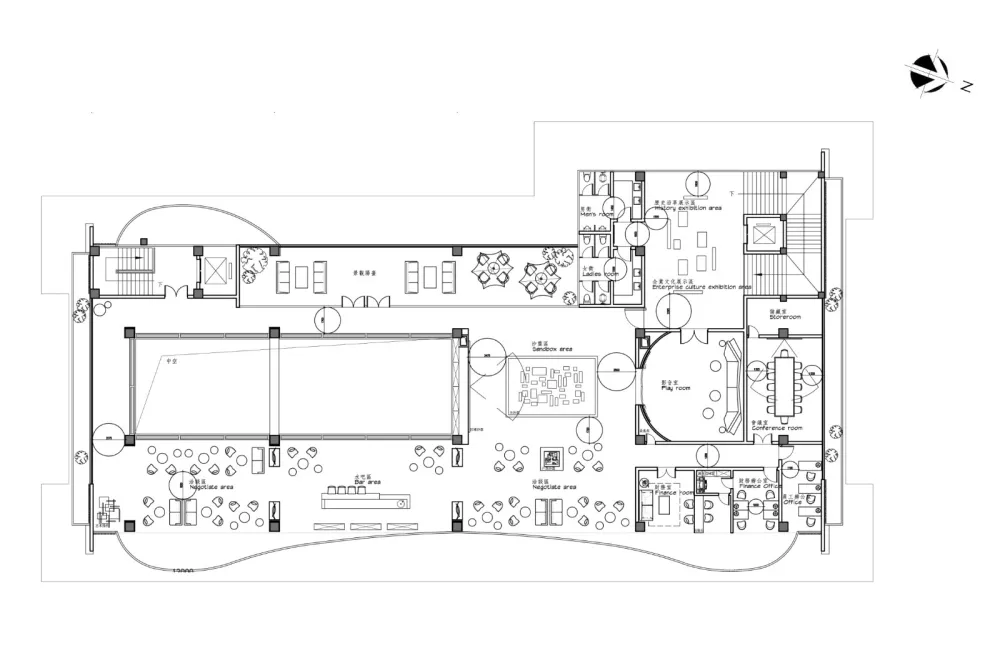
接待区主背景墙以木格栅来丰富空间,将山的形态抽象化置于其上,鱼米之乡的“米”摇身一变成为艺术装置。蒲公英工艺吊灯悬挂于接待台之上,光影互动间相映成趣。双通道无形中增加了仪式感,书吧区及洽谈区分列空间两侧,将最佳观景位收入囊中。中空区以大型书架作为主体划分空间,实现各区域之间交集互动。书架形成纵深感,同时扩张空间体量感。圆台上的钢琴与吊灯遥相呼应,于浩瀚书海内静中取闹,颇具趣味。区域沙盘摒弃常规模式采用手工木作定制沙盘,转折间将“木”的元素运用到极致。模拟沙盘天花处将天空引景入室,仿造中央公园之境,塑造理想观摩情境。
 
 
 
 
 
 
 
 
 
 
 
 
设计单位:RWD 黄志达设计师有限公司
主要材料:圣保罗灰大理石、文化石、木饰面、墙纸
完成时间:2018年4月
 
 
RWD创立于1996 年,拥有近二百人资深设计团队;RWD以室内设计为核心,延伸至环境规划、建筑设计、市场定位策划、EPCM、陈设艺术等全面服务。
售楼处 现代 纯净 静谧


