用刀尖入水 / 用显微镜看雪
就算反复如此 / 还是忍不住问一问
你数过天上的星星吗 ?
它们和小鸟一样 / 总在我胸口跳伞
《地球最后的夜晚》像诗一样,带着大家踉踉跄跄地走进一场酣畅淋漓的梦境,纵然梦醒依旧隽永流深。当然,也有一些朋友表示看不懂,其实影片无非在传达三个东西:意象、主题、意义不明的镜头。细细琢磨,设计不也如此?
所有的创作实际都是在表达一种语境。电影以小处见长不动声色的拍摄手法去凝视,它的特别之处并不在于故事,而是一种感觉,氛围,和情绪;设计想要带给大家的与电影极其相似——浸入式体验和感知。
过道的空间尺度刻意收窄,静谧、冷峻的气息迎面而来,迅速将人挟裹其中,让人即可感觉到空间的震慑力与仪式感!
随着深入,面与面交叠产生的空间立体感,在灯光的渲染下,产生特定的节奏和韵律,形散却意聚、暧昧却有力,渗透出写意之感。
天气好的时候,光束犀利地入侵黑白空间,产生欲说还休的“暧昧”关系。置身其中,人会不由自主先沉浸几分钟,听空间诉说,然后跟它对话。最终,能找到一种东西,感受到它,并相信它。
影片被冠以文艺的标签,认为它是诗的、幻想的、刻意的,其实相反地,它是写实的,心理写实。这也是我们想分享的第二部分。
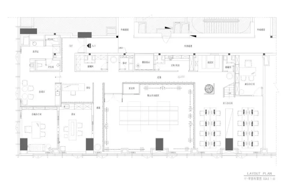
作为办公和展厅双重属性,满足空间的功能需求是不可须臾或缺的。办公区和洽谈区享受最好的采光面;利用简练的线条打造纯粹的展厅,为衣服做适当的映衬;灵活的桌椅为团队活动提供可能… 诸如此类的细节都是设计的基础。
撇开这些,不禁问自己,还能为人带来什么?
“每个人都是焦点”,这是我们最想呈现的。各个空间之间的关系和比例被反复推究,将形式上的象征和美学因素,与来自个人经验的想象结合在一起,营造纯粹的空间氛围,行走其中,可以是一个对自我认知与接纳的过程,也可以如同T台一般,畅快地表达自我。
好电影的共同特征就是剧情特别精彩,有明显的戏剧冲突。设计,如是。
黑白撞色带来的冲突,形成一种张力美感,相比同色系的层次更丰富,魅惑。倘若搭配小面积性感的红或绿意,足以打造惊艳之感,形成视觉和心理上的双重冲击。
在总裁办公室添加了黑白以外的、极强包容性的灰调,同时融入同样低饱和度色彩的布艺和陈设等作点缀,空间渗入严谨、细腻、典雅的特质,又是另一种感官体验。
同时,空间节奏也制造了戏剧性冲突。
从窠臼上不难看出,整个空间宛如一棵具有顽强生命力的大树,树干般的通道缓缓延伸,在纯粹的过渡之后,迎来形态各异的“茂叶与硕果”–炙热的转折与剧情的高潮。
通过这样平铺直叙和跌宕起伏之间的熟稔转换,制造扑朔迷离的戏剧效果,最终赋予空间饱满的记忆点。
无论电影还是设计,都是一个载体,通过视觉或空间去串联起某种关系,产生一些情感共鸣,直指本心,挖掘无以名状的渴望。
项目名称 | 富力中心品质服装办公展厅
项目面积 | 约500平米
完工时间 | 2019年11月
设计公司 | 大成设计
设计团队 | 林开新、胡晨媛、韩艳香
大成设计联席董事 / 林开新
摒弃浮躁的形式主义,林开新先生将“观乎人文,化于自然”的和居美学理念淋漓尽致地运用到项目实践中,令空间回归本质,直指本心。同时结合新材料、新技术,赋予空间鲜明的个性和自然、人文的艺术气息。
展馆展厅 现代 艺术 舒适


😊