我们受Centinela龙舌兰酒公司邀请设计了这座用于宗教和社会活动的建筑。业主在设计之初提出几个要求:设计需结合基地现存的建筑以及在平面布局上满足多种功能的使用。
© César Béjar
建筑位于哈利斯科州高原Tequilera Centinela的内部,我们在这里寻找一种重新解读宗教空间的方式。自从殖民时期以来,古老的宗教建筑一直沿用砖块建造房屋和建筑结构。
© César Béjar
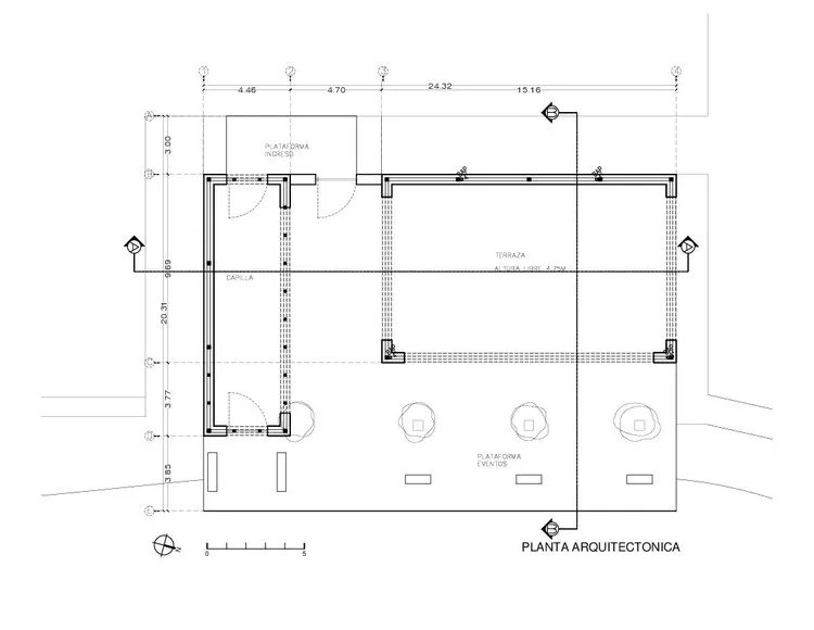
我们在设计时注重空间与人直接或间接的灵活性联系,因此在其平面设计上,我们调整了十字架的位置,通过开门和关门来改变其布局形式。
我们利用墙体结构框选出场地中的重要景观,建筑的空间感油然而生。主导性的建筑体量定义了主要的精神空间。天窗引入阳光,形成戏剧化的阴影,强调出神圣之感,建筑师以阳光作为过渡体,以此强调出了暗红色的砖块也呼应了当地的文脉。
© César Béjar
由于建筑在材料和空间上都让人感到和谐,因此也是参观者避暑的好地方。就算没有特别或广泛系统的维护,建筑质量也是可以维持的。由于其特殊的地理位置,建筑形式简单。阳光直射和建筑材料都为人们提供了最佳的室内空间品质。
© César Béjar
砖块是该项目中主要使用的材料,多亏了钢材的应用和其特殊结构特性,砖块才能战胜该地特殊的自然气候成为建筑的主角,比如建筑中13米宽的开口,在此还需支撑8米高的双层砖墙。
© César Béjar
双层砖墙给人以震撼的感觉,一方面由于其材料传达出的独特品质,另一方面建筑通过开口的流动性和对场地的延展性也传达出轻盈之感。
在龙舌兰酒制作的过程产生了“bagazo”,这是从龙舌兰纤维提取汁液后的废料,当地人将其与黏土结合起来用于制作砖块,该纤维增加了砖的韧性可防止砖开裂。在龙舌兰工厂中,“bagazo”形成了重要的循环,因此我们也将其与当地的黏土结合建造了该建筑的墙面。
原文和内容版权:http://www.archdaily.com/
翻译来自:http://www.iarch.cn/,翻译:韩平,Vigo
© César Béjar
建筑师 estudio ALA
项目位置 Arandas, Jal., Mexico
项目面积 540.0 m2
项目年份 2014
摄影 César Béjar
Category 教堂

