© Achim Birnbaum
(Achim Birnbaum)
架构师提供的文本描述。斯图加特市政府打算为位于斯图加特北部的弗里德霍夫街(FriedhofStreet)的滑雪场建造一个屋顶,这是2008年建造的。他们想要保护位于西南部的一栋位于汽车业汽车销售市场上的公寓楼,使其免受滑雪场极端噪音的影响。
Text description provided by the architects. The Municipality of Stuttgart intended to build a roof for the skaterpark placed at the Friedhofstreet in the north of Stuttgart, which was constructed in 2008. They wanted to protect the excisting apartment house in south-west an the projected apartment building on the ground of the Auto-Staiger Car sale from the extremly noise of the skatepark.
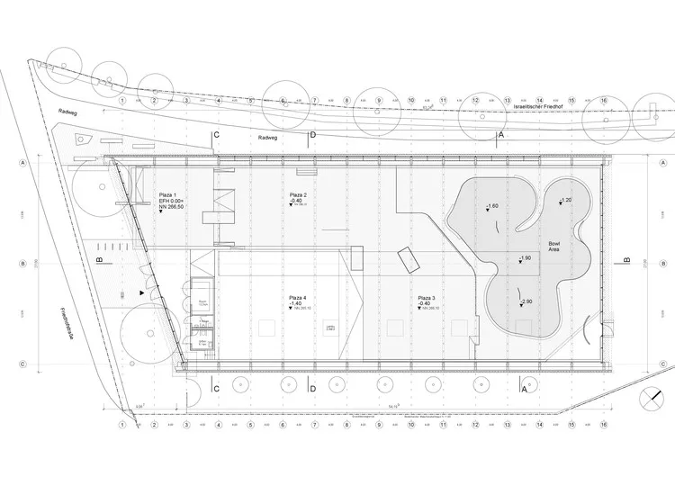
Floor Plan
如果没有,市政当局将关闭公园,因为严格的噪音法规。新的房子使滑冰者可以使用公园到22:00小时,如果下雪或下雨的话。屋顶是用木板做的,用来做交叉支撑.它们的距离为4米,长为26,5米。纵向的交叉支撑是由梯形铁片和凹面组成的。所以我们不需要其他的支持和加强。
If not the municipality would close the park concerning the excisting noise regulations. The new housing enables the skater to use the park until 22:00 h, also if it snows or rains. The construction of the roof is made by boardcoatwood to do the cross- bracing. They have a distance of 4 m and a lenght of 26,5 m. The cross-bracing for the longitudinal direction is made by the trapeze iron sheet and the concavity. So we need no other support or stiffener.
前部由双层玻璃构成。玻璃是光散射和透射。要看里面,入口和自行车轨道上的眼镜都是完全透明的。由于屋顶到达地面,纵向上没有立面。
The frontpart is constructed with double front glass. The glass is light scattering and transluzent. To see in, the glasses at the entrance and to the cycle track are completely transparent. There are no facades on the longitudinal because the roof is reaching the ground.
© Achim Birnbaum
(Achim Birnbaum)
© Achim Birnbaum
(Achim Birnbaum)
Architects Herrmann + Bosch Architekten
Location Nord, Stuttgart, Germany
Category Skatepark
Area 1460.0 sqm
Project Year 2015
Photographs Achim Birnbaum

