© Jeremy Bitterman
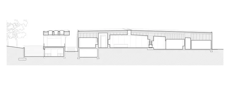
邓迪山(Dundee Hills)有着连绵不绝的草地,满是橡树和道格拉斯冷杉。酒庄坐落在一个小丘之上,俯瞰Willamette山谷全景。按等高线种植的葡萄藤与这美景交相辉映,赋予了自然景色节奏和韵律感。我们的设计便从规划土地开始,将项目所在的小丘进行切割,安置进一系列的花园,梯田和小径。在最上面的那个梯田台阶上,建筑物顶着一个绿色的屋顶破土而出。
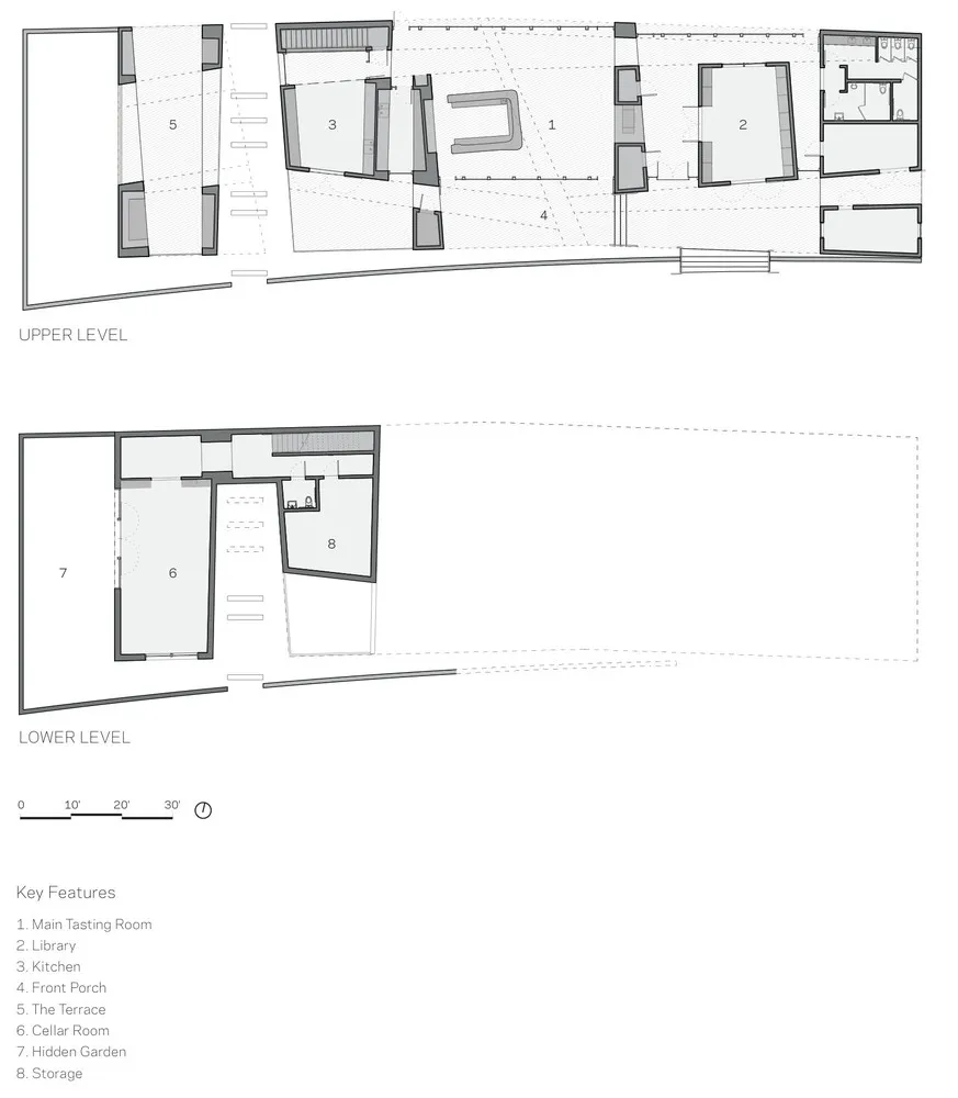
Floor Plan
我们把将近6000平方尺 (558 平方米)的品酒室,像一大块木块被切开来一样呈现出来。又进一步对这块木块按照自然光线,美景和品酒的仪式感进行雕刻。它是一个“透明固体”,一个既保持了空间,又传递了空间的建筑物。建筑物的转移,弯曲的视觉空间,缩短的视野,扭曲的深度,所有这一切都是为了加强来访者的奇妙体验。
© Jeremy Bitterman
我们所采用的建筑元素和材料受到俄勒冈州最早的农业建筑的影响。这种建筑大量使用铁杉,冷杉和雪松,使它们与土地有着紧密的联系,同时又用最经济的方法营造出优美。品酒室的室内地板,墙壁和天花板都使用了粗糙的雪松装饰,外面立面则是使用随机长度的雪松板装饰。通过室内外统一的木材装饰,让来访者身处室内时也与室外的景观紧密相连。
项目的区块设计成梯田的模式,从美国首屈一指的葡萄种植园邓迪山的轮廓中雕刻出来。这些梯田的台阶构成了或开放或者封闭的花园,停车区域和品酒室的户外活动区域。
© Jeremy Bitterman
该建筑提供了品酒体验所需要的不同空间:主厅,厨房,图书馆,酒窖,秘密花园,门廊和露台。一条景观小路不仅引导访客进入品酒室,还将这个建筑融合到它的环境之中。访客穿过一个门廊,侍者在雪松装饰的门廊迎接。门廊毗邻图书馆,是一处非常私人化的品酒体验的空间。
经过门廊左转,访客便进入主室。所有内部表面都用雪松装饰,营造出充满活力的温暖氛围,房间两侧昂贵的玻璃墙和平顶天花板的天窗让这个房间充满自然光。
一条走廊通向厨房,在这里最多可容纳12人进餐同时进行烹饪的展示。毗邻的主厨房负责满足其他的餐饮要求。主厨房面向前门廊,提供了另一处私人的品酒和用餐体验区域。
厨房对面的楼梯通向下层,这里是为葡萄酒俱乐部会员和私人活动预留的专用空间。
© Jeremy Bitterman
酒窖面向一个室外的秘密花园,混凝土墙壁和建筑物西边的橡树林挡住了来自外部的视线。连接品酒室主楼和室外露台的楼梯将访客带往建筑物后面的草地,并直接与葡萄园相连接。户外露台四面敞开,尽情欣赏周围葡萄园的美景。
编辑:韩爽 翻译:吴清瑾
© Jeremy Bitterman
建筑师 Allied Works Architecture
地址 4219 NE Sokol Blosser Ln, Dayton, OR 97114, United States
设计团队 Brad Cloepfil, Kyle Lommen, John Weil, Kathryn van Voorhees, Nathan Hamilton, Jared Abraham, Sushwala Hedding, Neal Harrod, Bjorn Nelson, Henry Adam Weber, Chris Brown
建筑面积 5700.0 ft2
项目年份 2013
摄影师 Jeremy Bitterman
Category 酒庄
厂家 加载中……

