© Marcela Grassi
 
 
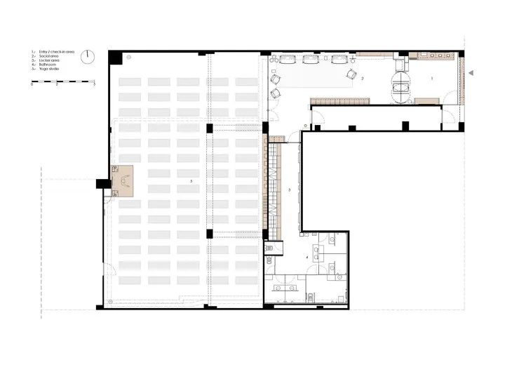
来自建筑师。Studio Shito 为巴塞罗那著名健身品牌DiR设计了一座新的瑜伽中心。该中心占地400平方米,位于巴塞罗那 Ciutat de Balaguer 19号。它被服务于提升品牌的战略之中。
© Marcela Grassi
 
 
设计目标是让材料、家具、灯光与色彩等等空间元素都能够贴合瑜伽的主题,同时使空间之间的衔接转换变得柔和。 这些封闭而让人放松的空间能够把你从繁忙的都市生活中解脱出来,让你全身心投入到关注自己身体和思想的意识中来。
 
 
瑜伽之旅从大厅开始。室外的阳光洒向室内,充满了放松明快的气息 ,实木家具组成了各种进入的机械。进入到大厅内部,空间更加收紧而接近人的尺度,并营造了易接近的氛围,从而比室外更让人放松。更衣室衣柜的中性色调,舒适而温暖的角落,以及各种细节的信号,让来健身的人完全忘却城市,换上专门的训练服尽情享受。最后,穿过木结构的框架来到瑜伽房。这里一尘不染,宁静祥和,充满着朝气而又蕴藏精神意味。
© Marcela Grassi
 
 
设计师通过天然材料传达了全新的品牌形象,尤其是建筑主体采用了松木。木匠定制的家具意在找寻平衡与不平衡之间难以拿捏的分寸,这恰恰是瑜伽哲学的基石。
 
 
 
 
纤维质感,木质,尊贵,纯粹,天然的等多重标准,设计师在本土设计师中精挑细选出了合适的家具和灯具。其中甄选了著名的加泰罗尼亚供应商的作品,譬如Santa&Cole、Lagranja Design 和 Calma House。
 
 
© Marcela Grassi
 
 
 
 
建筑师 Studio Shito
地址 Carrer de la Ciutat de Balaguer, 19, 08022 Barcelona, 巴塞罗那, 西班牙
主建筑师 Studio Shito
建筑面积 400.0 平方米
项目年份 2016
摄影师 Marcela Grassi
Category 健身房
厂家 加载中……


