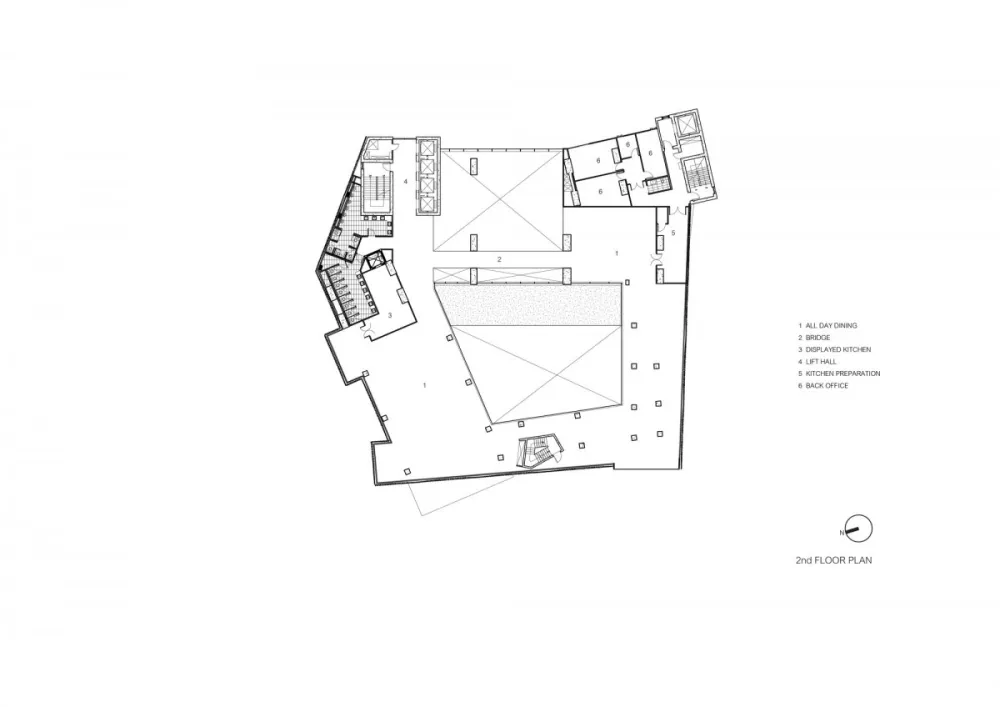
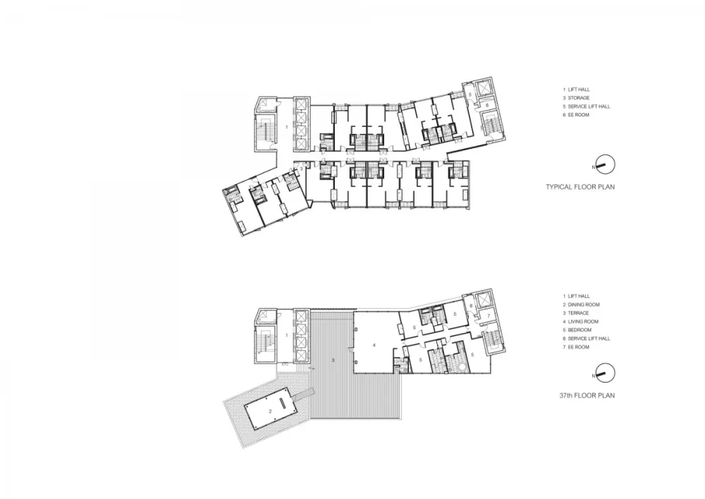
位于泰国曼谷东南120公里的Si Racha的Arize Hotel,由曼谷室内设计工作室IDIN Architects设计。Arize Hotel共有379间客房,它的主要目标受众是日本侨民。为了服务长时间停留的客人,在一些房间类型,有额外的设施和空间比标准的酒店。同时,酒店的设计要符合海滨城市的文脉和特色。










室内空间的设计灵感来源于著名的艺术主题“Setsu Getsu Ka”,指的是“雪、月、花”,这个特殊的短语被解释成许多章节,分别在不同的区域使用。在大堂里,“雪”这个词被解释为没有边界。对于全天就餐区,它与“月亮”这个词相互作用,因为它是关于光和影的现象。而会议室则是从“花”这个词来解释,并通过元素的运动来表现。此外,“Wabi Sabi”的概念也在客房中被解释,通过在装饰中使用天然木材和粗糙的纹理来说明其不完美的美。
















