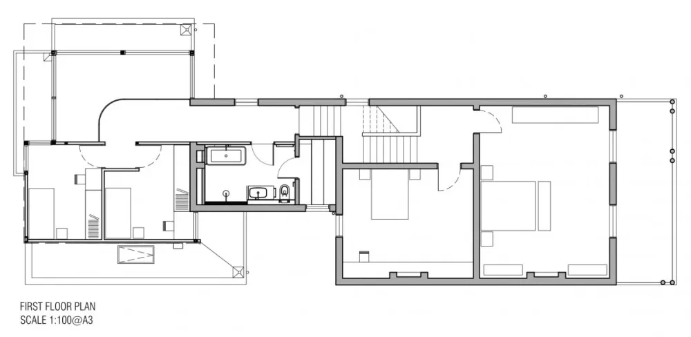
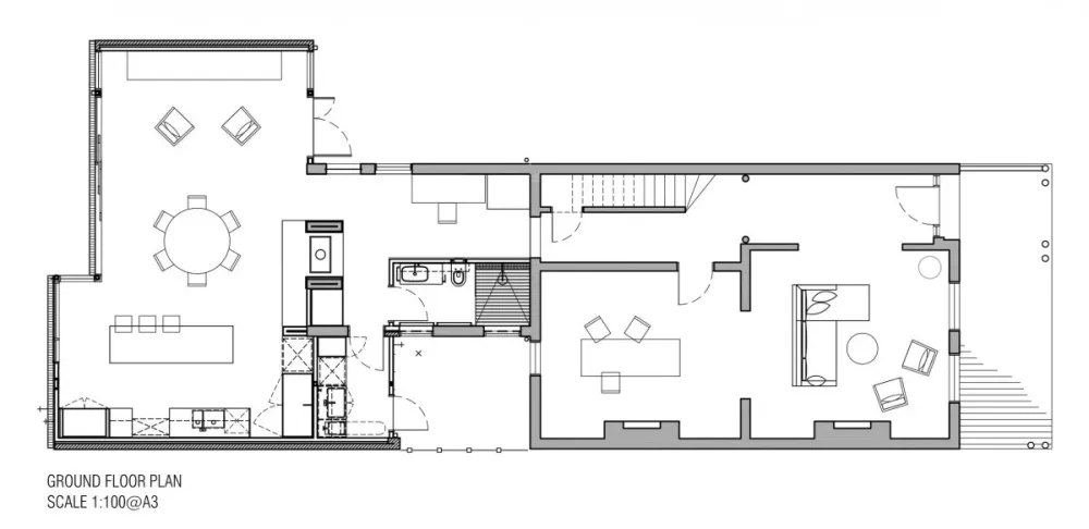
位于澳大利亚墨尔本一座19世纪的房子增加了两层高的扩建,照亮了原本缺乏阳光的生活空间,由当地的建筑公司Timmins+Whyte Architects设计。

这座房子原本是一个黑暗而沉闷的室内空间,这意味着它的主人,一对带着两个孩子和一条狗的年轻夫妇渴望拥有一个开放式布局的家,想在一个阳光充足、外部连接的空间中生活、烹饪、聚会、休息、阅读和社交。















Timmins+Whyte Architects表示他们的客户的丈夫是位日本人,花园景观有垫脚石,从庭院到房子,然后回到后院和游泳池,所以这样的设计似乎是合适的。整体有一个平静的,“不挑剔”的氛围,内部扩展已经装饰了一系列中性色调和材料。


