工业区是提供大空间且易于访问的地方,而现在似乎在更加统一的城市地区无法找到这些特征。毫无疑问,随着工业空间向第三产业的日益明显过渡,零售贸易商和办事处都在这些地区开展业务。通过改建旧工业建筑而产生的空间,对于业主和企业,对于建筑师和设计师而言,都是不可避免的机会。这方面的一个例子是由Petrer成立的阿利坎特建筑师工作室PabloMuñozPayá为Sedka Novias设计的项目。
从外部看,该建筑物被视为一个盒子。它面对着微细的穿孔,白色和金色的起伏薄板,这种轻质材料可以使建筑物从远处获得紧凑的图像,而附近则显得更柔软,几乎像织物一样,就像新娘的面纱。材质和颜色在该项目中起着重要的作用,与客户紧密合作,以增强每个空间的个性。
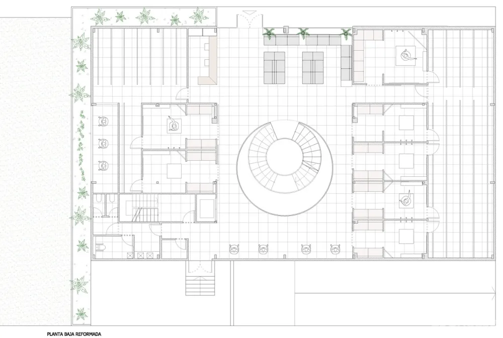
改造原始建筑的项目包括一个地下室和一个两层高的开放式计划空间,涉及将其转换为三层的建筑,其中包含销售和内部工作用途。因此,通过这些新楼层以及它们之间的联系,可以看到分布在地下室,地面和一楼的新建筑。这是通过将螺旋形楼梯插入大的中央空隙中来实现的,该楼梯直径几乎为8米,无疑是该项目的最大特色之一。这个中央开口需要对原始的水平结构进行改动和加固,最终在天窗的顶峰达到顶点,这让光线极大地进入了建筑物,而朝着较低的楼层略微减少。
地下室设有工厂商店,工厂商店由更衣室,宽敞的储藏室和一个进行调整的大型工作室组成。一楼专门为女性服务,设有接待区和等候区,还设有不同类型的更衣室,储藏室,浴室和橱窗区域。最后,一楼针对男性,以及内部工作区域。这一层也有自己的接待和等候区,更衣室,储藏室,浴室和商店橱窗。
在内部,深色不透明的垂直段落意味着天窗的光线几乎以仪式的方式照亮了楼梯。从不同的角度看,楼梯似乎是一组相连的结婚戒指,而金色则将其区别为项目的神经学要素。白色,灰色和金色的组合勾勒出空间,每一个都与穿透建筑物的自然光建立了不同的对话。
空间名称:SEDKA NOVIAS高级婚纱店
空间类型:商业空间、零售空间、婚纱店、高级定制店
空间地址:西班牙 阿利坎特
设计公司:Pablo Muñoz Payá Arquitectos
建筑面积:1396平方米
空间摄影:David Zarzoso
现代 购物空间 精致 奢华国外

