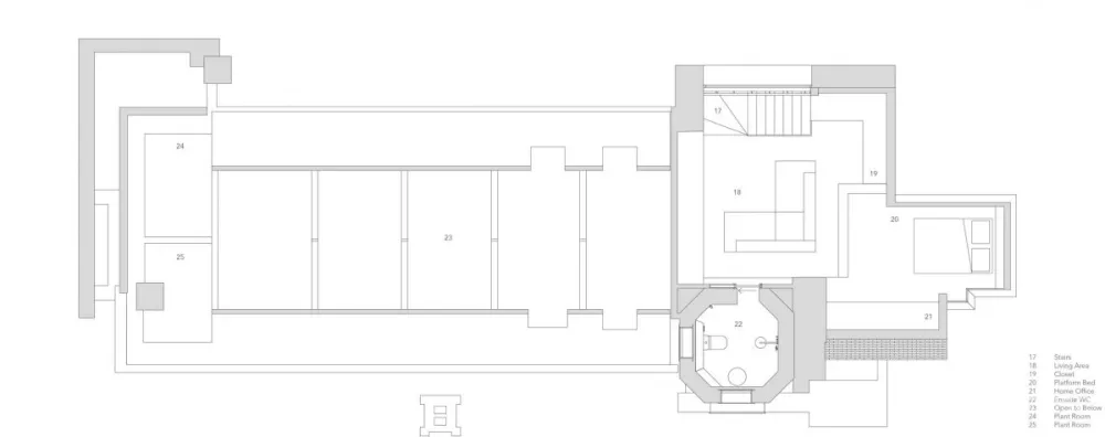
位于伦敦一处四口之家的极简主义公寓Regents Park ,由当地工作室Studio Originate,设计。他们住在以色列,但经常到英国出差。这座185平方米的住宅位于1907年建造的爱德华七世大厦的阁楼层。












工作室的合伙人David Siverson说:“我们考虑了各种不同的选择,但最终还是选择了白色和灰色。我们决定坚持非常严格的色调,因为这是一种让空间看起来更大、更有戏剧性的方式。”

位于伦敦一处四口之家的极简主义公寓Regents Park ,由当地工作室Studio Originate,设计。他们住在以色列,但经常到英国出差。这座185平方米的住宅位于1907年建造的爱德华七世大厦的阁楼层。












工作室的合伙人David Siverson说:“我们考虑了各种不同的选择,但最终还是选择了白色和灰色。我们决定坚持非常严格的色调,因为这是一种让空间看起来更大、更有戏剧性的方式。”

之前
