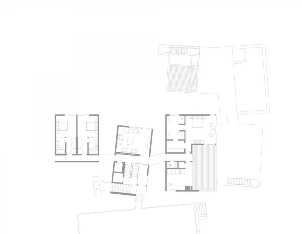
位于纽约萨福克郡Sagaponack村庄一处住宅,由美国设计工作室Bates Masi+Architects设计。该项目的设计可以俯瞰一个沿海池塘和远处的海洋,以庆祝水位的周期性上升。设计没有隐藏防洪措施,而是利用它们,从而拥抱湿地景观的二元性,将自然和建筑形式交织在一起。









通过在建筑和自然之间创造一种同质的关系,人们不断地想起他们居住的地方。自然元素被邀请到家里,在日常生活中被体验,从而成为日常生活的一部分。


位于纽约萨福克郡Sagaponack村庄一处住宅,由美国设计工作室Bates Masi+Architects设计。该项目的设计可以俯瞰一个沿海池塘和远处的海洋,以庆祝水位的周期性上升。设计没有隐藏防洪措施,而是利用它们,从而拥抱湿地景观的二元性,将自然和建筑形式交织在一起。









通过在建筑和自然之间创造一种同质的关系,人们不断地想起他们居住的地方。自然元素被邀请到家里,在日常生活中被体验,从而成为日常生活的一部分。


之前
