该建筑位于曼谷一个热门的住宅区,供由两代人组成的五位家庭成员居住。房屋被分为两栋完全分开的建筑物,都是两层的钢筋混凝土建筑。
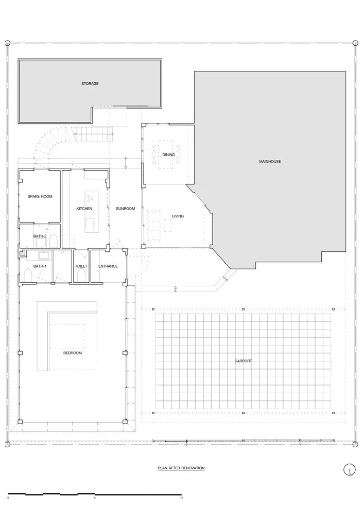
在改造方案中,我们按照最简单的方式,将主楼和副楼的部分区域改造为居住环境。我们使用了三个空间——主楼的多功能房、主楼和副楼之间的室内庭院、副楼的备用空间,并使这些房间的环境尽可能相似。由这个想法出发,我们通过创造中庭作为“阳光小巷”,平衡了两个独立的空间和公共区域,并鼓励居住者以不同的方式使用这些空间。
现有的车棚被拆除。新屋顶被替换并固定在主楼二楼的屋顶,扩展了空间的用途。通过使用透明材料,这个多功能区域将居住者与城市的欢乐联系在一起。
副楼卧室的墙壁已经加倍,新增墙壁的结构是使半透明面板附在木框架上,这一做法在提升私密性的同时可以通光。打开后,这些墙将充当连接到外部的遮阳篷窗。在房间中,空间由L形分区划分,使其未来可以灵活使用。
建筑师: OPH Architects
面积:246.0 m²
项目年份:2019
摄影师:Keerati Oungsuthipornchai, Napat Pattrayanond
厂家: Toto, Illuspace, Lamptitude, SCG
主创建筑师: Pilin Hongwittayakorn
结构工程师: Chaiwat Tantichotimai
总施工方: Thai-Ken Company Limited

