Krauze Architects的建筑师Alexander和Anna Krause创造了一种粗糙的混凝土内部,使业主感到异常舒适。从一开始,客户就开玩笑地将这个项目称为“混凝土的魔幻世界”。那是在动画片《小猪佩奇》中父亲读到的那本书的名字。






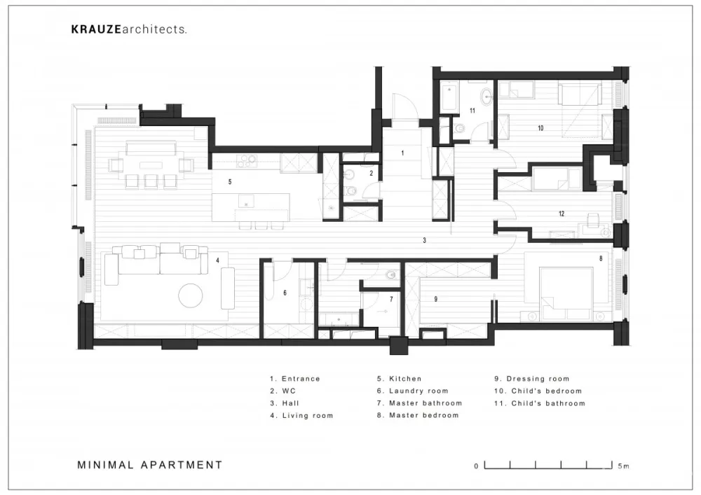
170平方米的四室公寓位于新建筑中,客户在房地产购买阶段就邀请建筑师。 “这是一种非常实用的方法。将来,它可以避免为建筑师和客户带来许多麻烦。” -特别要考虑设计师选择的极简主义美学。这种风格意味着密切注意纹理的游戏,自然光的数量和规划的逻辑,并对房间的初始参数提出了很高的要求。









