赛博朋克是科学技术与社会碰撞形成的产物,赛博朋克想探讨的就是高度发展的科技和人类自由意识之间的矛盾,其实每一部赛博朋克电影,永远都在问“我是谁?”EXP酒吧整体统一延用了赛博朋克其多色灯光相撞的特点,希望表达整体空间的未来感,结合烟雾,形成强烈迷幻及摇滚氛围。
”Low life, high tech.” Cyberpunk is born when technology meets society. The contradiction of rapidly developing technology and the free will of human beings is the main topic of Cyberpunk. Each Cyberpunk movie raises the same question “who am I ?” The EXP bar uses the combination of lights which conveys the feeling of being in the future in the typical Cyberpank manner. The smoke-filled space builds a truly psychedelic and rock’ n’ roll atmosphere.
▼EXP酒吧局部,结合烟雾形成强烈迷幻及摇滚氛围,partial view of the EXP bar, the smoke-filled space builds a truly psychedelic and rock’ n’ roll atmosphere ©E Studio
首层空间:公共区 | Ground Floor: Public Area
参观者通过一个窄而高的裂缝作为主入口,入口尽头悬吊着整面透明屏,让人联想到系统或服务器室。介于纯粹功能和人工智能之间,通过数字化参数生成不同的视觉标志,粗糙的水刷石用统一的灰色和所有部分互连为一个整体来象征性地表达,建造纯粹、忠实的反映本质,使整个空间具有强烈的特性。壹所设计通常是对现有空间的翻新,没有遵循别人甚至自己设定的特定风格规则,质疑其惯例和传统。
▼窄而高的主入口,入口尽头悬吊着整面透明屏,通过数字化参数生成不同的视觉标志,the tall and narrow main entrance with a transparent screen at the end, the screen can generate different visual signs ©E Studio
▼主入口,粗糙的水刷石用统一的灰色和所有部分互连为一个整体,the main entrance, the rough grey granitic plaster is interconnected with the space to expss integrality ©E Studio
这种雕塑性的几何形式超越了功能;夹层悬挑玻璃盒包间与环境发生碰撞,创建了一个互锁的体积和空隙的跳跃式样,在空间中相互补充。
▼一层咖啡区,the cafe area on the first floor ©E Studio
被熟悉所包围可以让我们感到舒适,但可能会变得沉闷;新奇可以给我们的生活带来新的感觉,但它可能会带来不适。这个项目的主题是保持两者之间的平衡,让熟悉的感觉变得陌生,让熟悉的感觉变得熟悉。
While visitors are comfortable with familiarity, they may also get bored. Even originality can bring uncomfortable feelings. The purpose of this project is to keep the balance between familiar and unfamiliar.
▼吧台远景,distant view of the bar counter ©E Studio
洗手间墙面为原始结构墙面,蓝色阳光板通过金属框架固定,将LOGO拆分碎片化无序整列排布在墙面结合霓虹灯管,霓虹灯透过阳光板形成扭曲,让人感觉进入了一个异空间。
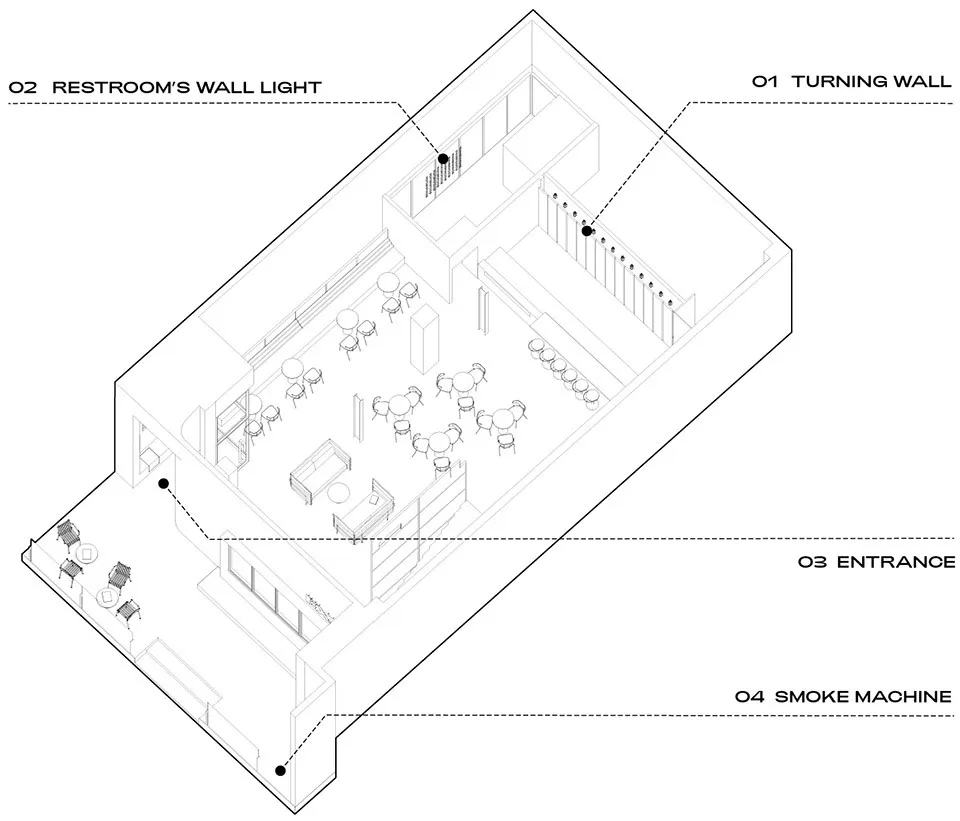
▼旋转幕墙分析,diagram of the turning wall ©E Studio
激光装置将一束红色的激光投射成网格状结构的延伸,以增强其物理边界的错觉,投射的光网格使隧道形成流动的空间,一个能让你自由支配的空间。
Space with lasers creates a red laser grid which enhances the visitor’s optical illusions. One may feel the motion of this laser tunnel and enjoy the vibe of this space.
▼二层激光通道,激光装置将一束红色的激光投射成网格状结构的延伸,the laser corridor, space with lasers creates a red laser grid ©E Studio
二层空间:贵宾区 | Second Floor: Vip Area
设计师在二层区域创建了一个巨大岛屿,围绕它自然而成与整个空间相连的隧道,并形成孤岛。再把孤岛进行拆解,二层空间其实是一个复合了VIP包间、后勤办公室、窄长形观察窗、倾斜墙体的一个综合形态,以景观的方式呈现在酒吧内部。
The designer created an island on the second floor which, at the same time, forms a tunnel that connects with the whole space. Except the island, the space on the second floor includes the VIP room, office room, narrow windows and fastigiate walls. All those elements are psented as sceneries in this bar.
▼材质细节,material details ©E Studio
项目名称:经验公司
项目地点:中国 深圳
项目面积:375平方米
项目时间: 2019年10月
设计单位:壹所设计工作室(E Studio)
设计师:范君健、周炫焯

