伊斯兰建筑语言引导极简空间
许多区域、建筑、空间并没有局限在物理和材料层面的呈现,它们还能够在神性与世俗的不断对话中创造感知,吸引着人们的灵魂和想象。建筑师设计这座位于Odivelas城市中Colinas do Cruzeiro区域的伊斯兰文化中心的目的是打造建筑的空间性和象征性特质,这些特质可能会潜在地触发来访者对神秘和神圣的感知。
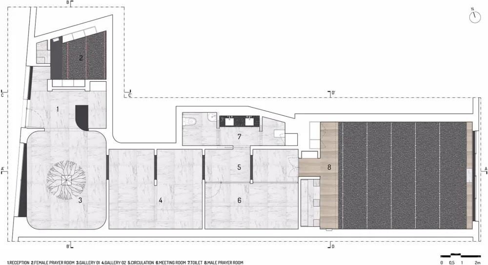
作为一个致力于传播伊斯兰文化的场所,文化中心是为整个区域服务的,它是一个交流和文化知识共享的空间。基于此目的,文化中心需要有一个展览空间、一个传播文学的空间、一个会议/学习室和男女祈祷空间。空间规划按照层次等级分布,更具公共性的功能布置在靠近入口的区域,较为私密的空间位于建筑的最深处。
Odivelas伊斯兰社区是葡萄牙最大的伊斯兰社区,因此建筑师必须打造一个向整个社区开放的空间,让人们能够在这里进行一系列的文化、宗教活动。同时,文化中心不仅要为社区服务,还要为那些可能有兴趣深入了解这一文化的整个群体服务。结合项目需求,空间设计以基于伊斯兰建筑文化想象的角度出发进行设计,建筑师在其中重点突出了给予他们灵感的元素如尖马蹄形的拱门和交叉拱顶。从这些元素出发并将它们转化为现代语言,建筑师创造了一个独特的空间,空间被划分为若干不同内部区域,通过拱门的动态流线相互连接,引导来访者在文化中心内部穿行。雕塑般的体量激发人们的感官体验,曲线与流动的形式展现着伊斯兰建筑的语言,在穿越整个内部空间的路线上形成不同的场景。
在材料和色调方面,建筑师选择了一种优雅而谨慎的语言,在一些特定的空间中采用近乎极简的设计策略以强调那些最具雕塑形态的区域。在展览空间中,建筑师打造了一个更为中性的环境,主要色调为白色,让那些裸露的元素毫无遮挡的凸显出来。同时,设计策略也有意识地强调宗教空间的特性:精心使用的白色、对光线的处理都旨在实现这一目的。
在祈祷室中,建筑师延续了原有策略,通过在男性祈祷室中使用木质元素和在女性祈祷室中使用彩色乙烯基覆盖层,为空间提供了视觉与触觉的舒适性。
最后一处对伊斯兰元素的参考是在入口区域种植的橄榄树,它的存在旨在打破主导的极简精神,赋予环境以自然感染力。这一元素的存在提升了空间的象征性特质,以一种引人深思的存在邀请路人进入。综上所述,建筑师倾向于按照这一目的推进项目:创造一个拥有自己身份识别性的空间,人们能够在这里辨识出引导这一空间诞生的文化和宗教的根源。
剖面A
剖面B
Project: Colinas do Cruzeiro Islamic Cultural Centre
Architects: Estúdio AMATAM
Authors: João Amaral, Manuela Tamborino
Collaborators: Ruy Cardoso, Vera Ferreira
E-mail address: info@estudioamatam.com
Website: www.estudioamatam.com
Photographer: Invisible Gentleman | http://invisiblegentleman.com/
Client: RUTOC – Properties, Lda.
Site of the building: Avenida Miguel Torga, Colinas do Cruzeiro, Odivelas, Portugal
Completion date: October 2018
Total area in square meters: 121 m²
Cidade/data: Almada, May 2019
nome: João Pedro Escaleira Amaral


现在这个浮躁的世界,能细心整理一些东西发上来的越来越少了。要么就是敷衍的图片,要么就是枯燥的文字。之后就是AI生成的预制菜类的打包便捷快餐了。感谢楼主的分享,让我能在大智能无人化来临之前,看到同类发出的项目。有幸与您互动,缘分2
是不是一直复制,人就会变懒,变笨,第一次的复制粘贴,可能还略带羞赧,第二次再复制,内心的自责就少了一分,第三次毫不犹豫的ctrl+v 是那么的心安理得。回头一看,重复的留言已经700多条了。心安理得么?得到了什么呢?