混凝土空间中的黄金珠宝
该航站楼的室内设计基于其基地的历史和特点——在新机场的建设期间,施工团队在现场发现了一个萨尔玛提亚的墓葬,而在墓葬之中,存有大量的金器宝藏。
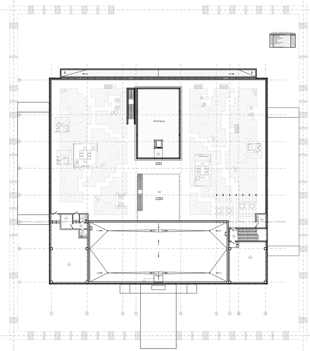
航站楼内部的功能空间有:
出发区设有信息咨询台、候机室、咖啡厅以及一系列用于洽谈和娱乐活动的私人房间等。
而到达区则设有一个中庭,从这里,旅客们可以通过电梯前往屋顶花园。这里设有各种服务区、边境和海关管制区以及行政人员和代表团专属的独立办公区,其中,办公区内还带有一个大型的会议室和一个主管人员办公室。
同时,建筑师希望将金器的元素融入进室内设计中,因此,在室内设置了一系列金色的细节点缀,而整个室内的墙面等则仍然保持着混凝土的灰色。也就是说,建筑师希望能够专注于一个主题,那就是在室内增加一系列装饰用的“黄金珠宝”。在入口大厅的玻璃柱的帮助下,这种设计构想成为了现实。值得一提的是,这些玻璃柱其实是一系列安装在受拉缆索上的Murano Venetian玻璃块,由建筑师与他们的合作伙伴共同开发。在玻璃柱内部,设置着背光照明,在功能上将入口区域与位于航站楼两侧的候机大厅分隔开来。
此外,包括枝形吊灯在内的定制灯具也使得“在室内增加一系列装饰用的黄金珠宝”的主题变为了现实。

