缘起于茶,而不止于茶,由于人们情感的融入,便给予茶之于茶本身之外的语言形象。茶空间即是对茶室主人心境最直观的表达。茶如此,空间亦然。设计师细心品读甲方诉求,意会出“书不尽言、言不尽意”的空间表达意向。在空间氛围设计的表述上,设计师以意造境,观者即境会心,营造立象以尽意的空间感。 ▼外立面
整个茶室以清新素雅为基调,空间规划为独立包厢区和散座区。在意境的塑造上,借鉴中国传统艺术中精工之极,又复古雅;简之又简,无简不繁;精而造景,简而意足的设计审美,在有限的空间里删繁去奢、以意造境,将现代气息结合东方禅意,通过观石、听雨、框景、造景的意象,演绎一个现代优雅的品茗空间。在此处,可以品一人茶;可以三五好友闲聚;也可以提供商务会议或洽谈;功能上可以满足不同客户需求,而目的只是为来访者提供一个轻松舒适的体验场所。 ▼入口装饰细节 走过前厅拾阶而上踏入大堂区,前台与散座区对望,接待台人流走动与下沉式品茶区静坐的茶客动静分明。前台背景墙以茶器与杭州西湖水墨画相结合,茶画相宜、意象同生。起伏的屋顶取义于山上茶园,将大自然的曲线引入空间设计。墙面的留白是为了烘托展示架上的器皿与书籍,在此地询为自己一隅,静坐将茶试,闲书把叶翻。 ▼前台大堂区 ▼墙面细部,茶叶、茶具陈列柜 东皋远火飞疏树,南浦归云拥渡舟。过道两侧分别有布置“归云庄”、“幽篁里”的两间包厢,均采用榻榻米的方式。 ▼过道
归云庄充分利用自然采光,光影随着时间旋转,在陡立的太湖石上留下时间的印记。 ▼归云庄 ▼轻推移门,显露出嶙峋的置石 独坐幽篁里,弹琴复长啸。幽篁里包厢,设计师借用人造光的技术弥补自然光照不足,为小小的包厢采下一片光亮。框景的设计手法将画面定格,是东方精神气质的自然流露。一间茶室,一隅宁静,邀二三知己煮茶、解语,在这里,喝茶便拥有生活的一种仪式感。 ▼视线穿过半掩的木门,如同穿过竹林,窥探幽篁里 ▼幽篁里
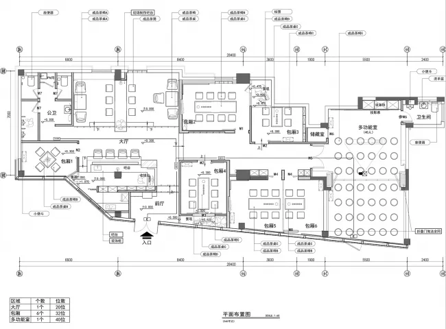
多功能厅作为茶室最大的包厢,内嵌式推拉门将空间一分为二,可开通可闭合。满足不同功能需求。茶器摆设便是构建整个空间美学最重要的组成部分。家具的布置,没有像传统家具那样正式,老榆木的茶桌茶椅透出一种返璞归真、清新自然的格调。茶客们在轻飘的茶香中开始自己的专属时间。 ▼多功能厅 ▼墙面装饰细部 ▼平面图 ▼剖面图 项目名称:景上书院 项目地址:浙江 杭州 项目面积:240㎡ 竣工时间:2018.08 主创团队:凌炳斌、林素彦、许立强 设计公司:杭州宣驰装饰设计有限公司 摄 影 师:李恒 设计主材:青石板、艺术涂料、樟子纸、银丝木
茶空间 茶室 清新素雅 青石板 樟子纸 银丝木

