感谢来自 NAN Architects 的商业空间项目案例分享:
该项目位于丹阳市车站路与中山路交叉路口,北临丹阳城站,西临丹阳国际眼镜城,面对城市转盘路,拥有极佳的昭示界面和步行可达的优越位置。
The project is located at the intersection of Station Road and Zhongshan Road in Danyang, China. Perched on the north bank of the Danyang station and west back of the Danyang International Glasses city .It has a great display interface and a great location within walking distance.


丹阳被誉为中国眼镜之都,镜架产量1亿多副,约占全国的三分之一;镜片产量4亿多副,约占全国的75%、世界的40%左右。作为诞生于此的网红品牌,青山良镜超越了传统的运营理念,将眼镜、设计与时尚生活结合起来,赋予眼镜更多的人文含义。
Danyang is known as the eyewear capital of China. More than 100 million sets of frames, accounting for about one-third of the country and more than 400 million lenses, accounting for 75% of the country and 40% of the world are produced there. As an internet celebrity brand born here, Qingshan Liangjing transcends the traditional operation concept, combining glasses, design and fashion life, giving glasses more humanistic meaning.


原有建筑为工商银行旧址,我们的设计策略是打开原有建筑边界,使内部环境与城市空间产生互动与对话,使室内成为城市公共空间的延伸。眼镜店不再是售卖的场所,内部结合景窗和前台设置了咖啡吧,赋予了空间交流与体验的生活功能,以及人们观赏城市的另一个角度。
The original building is the site of the Industrial and Commercial Bank of China. Our design strategy is to open the boundaries of the original building, make the internal environment interact with the urban space, and make the interior an extension of the public space. The optical shop is no longer a place for sale, and a coffee bar is set in the interior combining the window and the front desk, which gives the living function of space communication and experience, and another angle for people to watch the city.
∇ 改造前

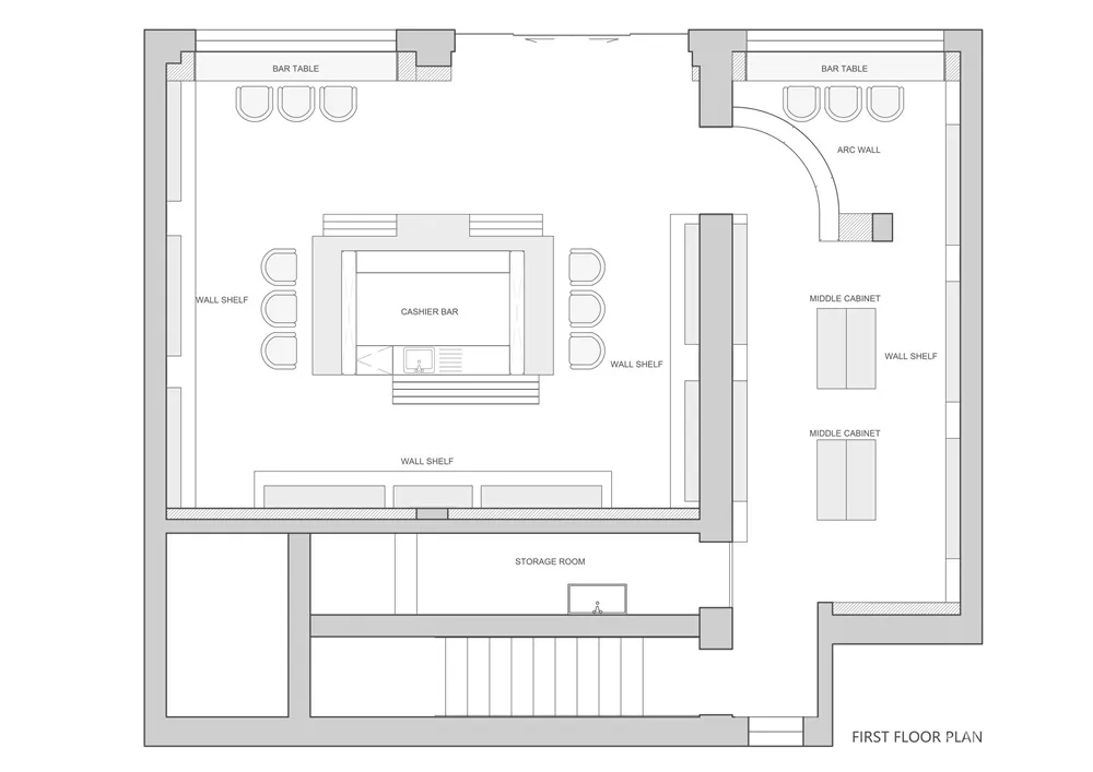
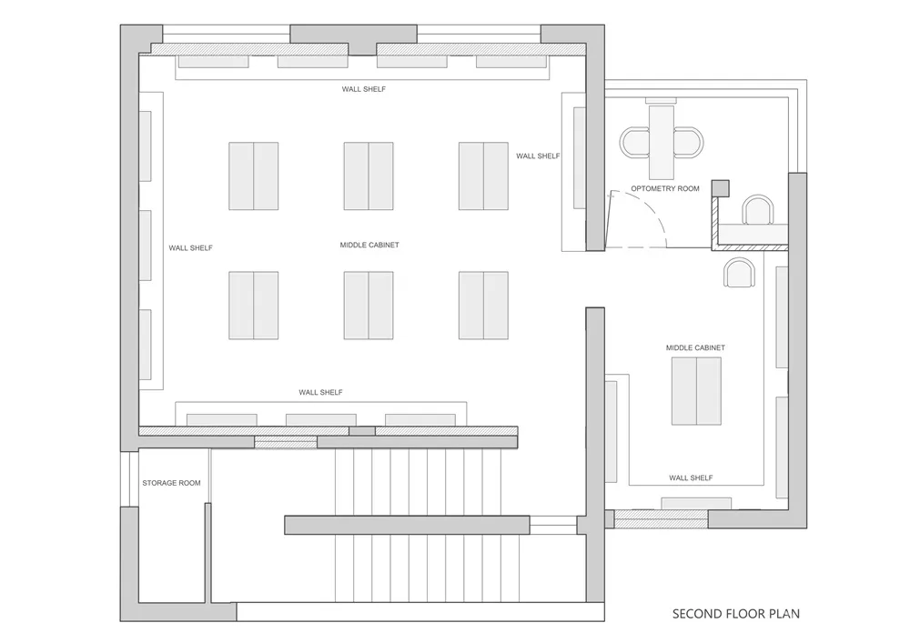
我们用尽量少的材料来还原空间本身的面貌,并使空间之间产生暗示和联系。内部空间陈设打破常规眼镜店的刻板布局,将休闲吧台与展示功能融合一体。在一层核心区域布置的中央吧台兼具收银与服务功能。而在两侧的落地窗设置吧台,为顾客提供了更加舒适的休闲区域。一楼走廊的弧墙展架,将人们引入下一个空间。二层空间的功能包括验光配镜室以及休息等候区,相对一层的产品更具有针对性,为顾客提供更多的选择与服务。
We use as little material as possible to restore the appearance of the space itself, and make hints and connections between the spaces. The interior furnishings break the stereotyped layout of a conventional eyewear store, combining casual bar counters with display functions. The central bar arranged in the core area of the first floor has both cash register and service functions. The bar counters on the floor-to-ceiling windows on both sides provide customers with a more comfortable leisure area. The arc wall display in the corridor on the first floor introduces people to the next space. The functions of the second floor space include optometry and optician room and rest waiting area. Compared with the products on the first floor, they are more targeted and provide customers with more choices and services.


整个两层由发光的玻璃体包裹,光与极简的形体塑造了极富识别性的城市地标,纯净的“光之盒”作为眼镜之都的新名片给城市带来新的活力和生机。
The entire two levels are covered by a luminous glass box. Light and minimalist shapes have shaped the city’s most recognizable landmarks. The pure “light box” as the new business card of the eyeglass capital brings new vitality to the city.












∇ 平面图


主要项目信息
项目位置:江苏丹阳市
主持设计师:南旭
设计团队:谭钟瀚、王晓敏
面积:200平方米
项目年份:2019年
建筑材料:玻璃、铝板、木饰面、防火板、地砖
Location:Dangyang, China
Principal: Xu Nan
Structural Consultant: Zhonghan Tan, Xiaomin Wang
Area:200㎡
Project Year:2019
Materials: glass, aluminum plate, wood facing, fire-proof board, ceramic tile


现在这个浮躁的世界,能细心整理一些东西发上来的越来越少了。要么就是敷衍的图片,要么就是枯燥的文字。之后就是AI生成的预制菜类的打包便捷快餐了。感谢楼主的分享,让我能在大智能无人化来临之前,看到同类发出的项目。有幸与您互动,缘分。
✗肌肉✗ ✗肌肉✗ ✗肌肉✗ 谢谢分享