末凡酒店坐落于鼓浪屿复兴路,是小岛上繁华区域不远的曲径通幽处。酒店是德式建筑的典范,也是鼓浪屿的保留完好的历史风貌建筑之一。
Located in a secluded and quiet place on Fuxing Road, Kulangsu, Soultouch·Morefun Hotel is not far from the downtown area of the island. The hotel is typical of German architecture and it is one of the well pserved historic buildings in Kulangsu.
末凡酒店的原建筑始建于上世纪30年代,受时期及在地文化的影响,建筑中融入了上世纪的南洋风格,其中门窗上的彩釉玻璃尤为吸人眼球。设计师从中提炼出明快的色调,作为酒店设计延展的元素,将整个空间联结起来,以此来将富有年代感的建筑空间移形换影,与现代审美进行连接,赋予这个空间新的生命质感。这样的跳跃明快的色彩运用,在目前鼓浪屿同质化的复古格调中,算得上是独特大胆的。
The original building of this hotel was built in the 1930s. Based on the time background and local culture, the building integrates southeastern style of the last century. The original glazed glass on the doors and windows were especially attractive. Our designers extract bright colors from them, and connect the whole space on the basis of these colors, so as to combine a nostalgic feeling with modern aesthetic, bringing new life to this space. The use of such bright colors is unique and bold among the homogenized retro style architecture in Kulangsu.
经过前期调研和了解,设计师认为此次的设计任务最重要的是梳理清结构。
According to pliminary investigation and research, our designers deem that the most important task is to sort out the structure of the building.
大堂螺旋上盘式的楼梯是其中复杂的结构,镂空面的半圆弧柱体设计不仅包裹处理好了原建筑的不规则的结构,镂空部分的光线随时间推移和空间结合营造出了朦胧的美感。同时,贯穿1-3楼的通体设计,亦从视觉效果上拉伸了空间。作为设计亮点,设计团队以楼梯的半弧形作为贯穿整个空间设计的矢量图形元素。
The spiral staircase of the lobby is a complex structure. The semi-circular column with the hollow-out surface not only covers the irregular structure of the original building, but also creates a hazy aesthetic feeling through the passage of time and the surrounding landscapes. At the same time, the whole staircase stretches from the first floor to the third floor, creating a visual splendor and grandeur. As a highlight, the semi-circular shape is used throughout the whole design as a vector graphic element.
大堂是由原建筑的地下室改造,自然光与植物是这个空间的最为重要的元素。更多的打开采光面,为空间带来更多的自然光源;在窗口半室内的空间种植绿植,打破室内和室外的界限,遮挡部分墙体的同时解决了海岛上气候带来的潮湿问题,也给给空间带来更加通透的延伸感。
The lobby is transformed from the original basement. Natural light and plants are the most important elements of the space. Larger windows bring more natural light into the space. Indoor greenery beside the windowsill breaks the boundary between indoor and outdoor and covers part of the wall. It not only solves the humidity problem caused by the island climate, but also brings a sense of airy extension to the space.
原花园空间较空旷,酒店将空间进行区隔,做了高低层次处理,以此营造出每块区域的私密感。酒店的前台设置在花园中的独栋小屋,吧台桌板延伸到了花园,将内外空间关联起来,增加了人与花园的互动。
The original garden was relatively empty. Now it is divided into different and split-level functions, providing a sense of privacy for each area. The front desk of the hotel is set in a separate room in the garden. The bar table extends to the garden, connecting the internal and external space, and increasing the interaction between people and the garden.
客房中间的廊道是典型的南洋风格木质墙裙,天花融入了半弧形吊顶设计。客房天花保留了原建筑的水泥肌理,百分之九十以上的定制家具,呼应的色彩搭配都是为了整个设计的完整呈现。客房内的选品则更多地考虑当代人的生活习惯和健康:从根源上杜绝化学制剂的床品、天然植物的沐浴用品、一键即出的胶囊咖啡机,触感极佳的设计师灯具……室内部分酒店坚持严要求定制,高细节还原,势必将精品酒店的“精”放大到每个细节上。
The hotel corridor is decorated with typical southeastern style wooden wainscot, with a semi arc ceiling design. The ceiling of the guest rooms retains the cement texture of the original building. Over 90% of the furniture is customized so as to match the color of the whole design. The articles for daily uses in guest rooms are chosen out of consideration of contemporary guests’ living habits and health: bedding produced without artificial chemicals, bath products made from natural plants, one-button operation pod coffee machine, designer lamps……The hotel insists on customized indoor furniture and decorations as well as high-quality reproduction of the original style, creating an exquisite taste through every detail in this hotel.
末凡酒店室内整体上是跳跃且具有现代审美的,注重居住的细节和温度。酒店建筑外立面则保留了德式建筑的利落厚实感,内外对比下的冲突给到了宾客舒适体验的同时也留下了更多的惊喜和精神内核。
As a whole, the interior of the hotel is of dynamic and modern aesthetic, focusing on living details. The facade of the hotel building retains German style of being neat and down-to-earth. The conflict between the inside and outside not only gives guests a comfortable experience, but also leaves them more surprises and thoughts.
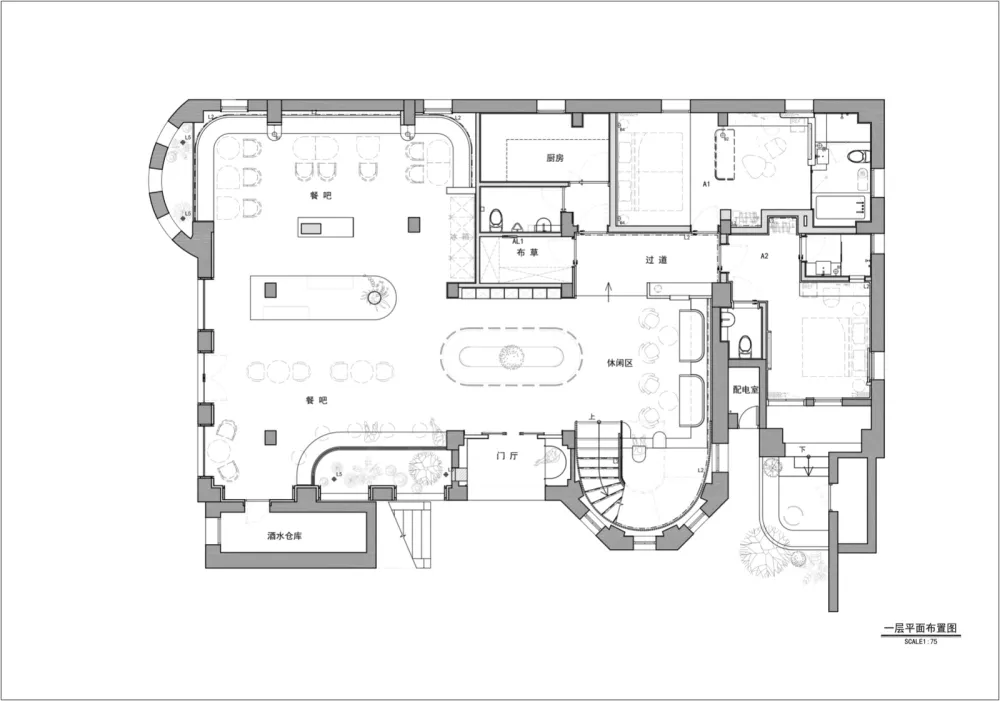
(一楼平面设计图)
(Floor Plan of the 1st Floor)
(二楼平面设计图)
(Floor Plan of the 2nd Floor)
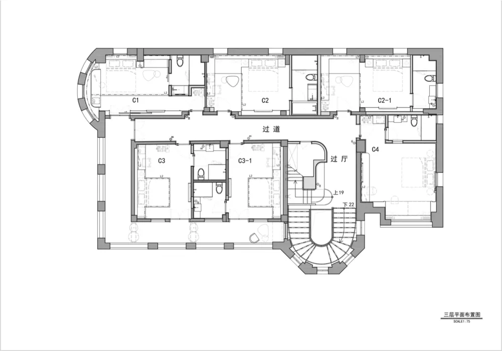
(三楼平面设计图)
(Floor Plan of the 3rd Floor)
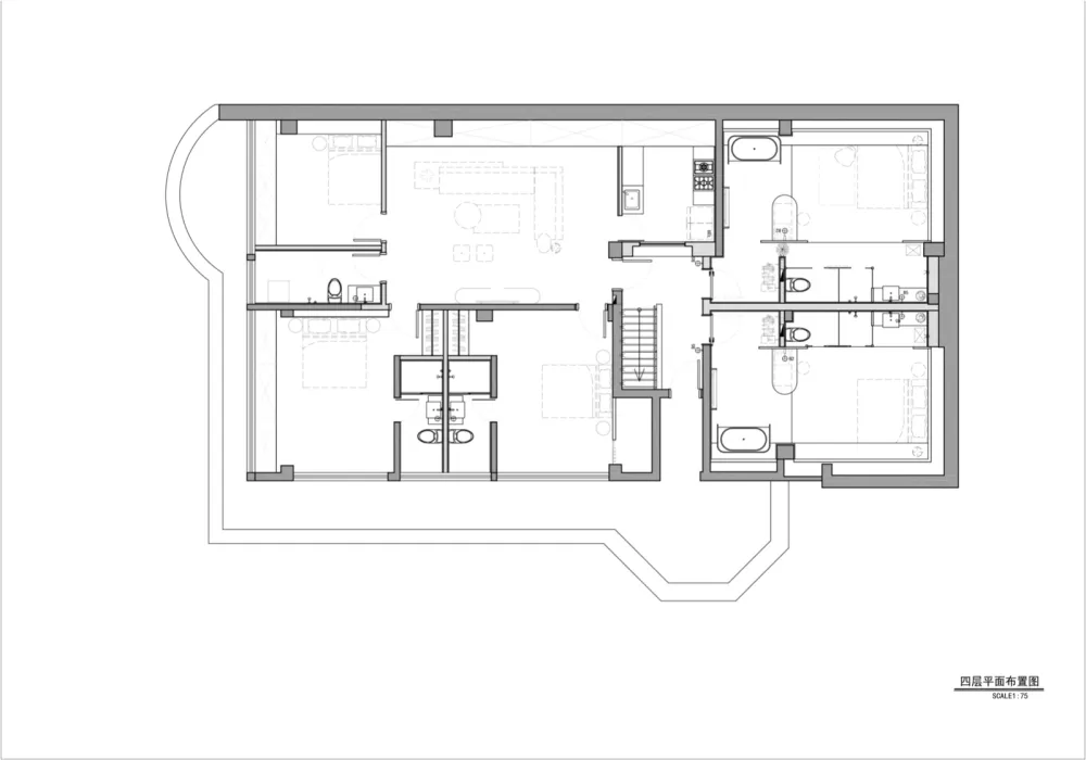
(四楼平面设计图)
(Floor Plan of the 4th Floor)
–项目名称:鼓浪屿聆感·末凡酒店
设计方:共想设计
项目设计 & 完成年份:2018年10月设计 2019年3月完成
主创建筑师:朱鹭欣
设计团队:杨超、黄晓东、王文杰、李翔曦、张少娟、唐建程、蔡汉江
VIS视觉识别系统:李翔曦
项目地址:厦门市思明区鼓浪屿复兴路86号、88号
建筑面积:约900㎡
品牌(材料): 水磨石、铜、烤漆板、免漆木饰面板、烤漆面板。
Specific information:
Project name: Kulangsu Soultouch·Morefun Hotel
Designer: Gongxiang Design
Year of (initiation of) design & completion: October 2018, March 2019
Principal designer: Zhu Luxin
Design team: Yang Chao, Huang Xiaodong, Wang Wenjie, Li Xiangxi, Zhang Shaojuan, Tang Jiancheng, Cai Hanjiang
Visual identity system: Li Xiangxi
Project address: No.86 and No.88, Fuxing Road, Kulangsu, Siming District, Xiamen
Floor area: about 900m2
Material: terrazzo, copper, polyurethane board, paint free veneer panel, polyurethane panel

