感谢来自 门觉建筑 的幼儿园空间项目案例分享:
幼儿园是个人教育开始的基础,进行预备教育的场所空间,是小朋友的快乐天地,可以帮助孩子健康快乐地度过童年时光,不仅学到知识,而且可以从小接触集体生活。作为孩子学习的第一站,我们希望孩子在这不仅能够收获知识,更重要是埋下一颗梦想的种子,激发幻想。
 Kindergartens are the basis for individual education. The space for preparatory education is the happy world for children. It is possible for children to spend their childhood in a healthy and happy way in this kind of space so that they can learn knowledge and touch the collective life from childhood. It is hoped by us that children can gain knowledge and even lay a foundation for dreams to inspire fantasy at the first stop of children’s learning.
∇ 首层入口(The Entry of the First Floor)


∇ 走廊儿童空间(Corridor Children’s Space)


幼儿园位于台州市黄岩区耀达天玺,服务于周边小区的住户,建筑风貌服从于小区整体设计控制,这类的幼儿园在中国近10年的房地产高速发展中诞生。同时带来一个问题,普遍性都是满足功能性的建筑,无法激发孩子的幻想。建筑大师Ricardo Legorreta曾这样说:“现代建筑总是过分追求理性,这样会失去神秘感和好奇心带来的愉悦感受。”
The kindergarten is located in Yao Da Tian Xi, Huangyan District, Taizhou city. It serves the residents of the surrounding community. The architectural style is subject to the overall design control of the community. This kind of kindergarten has appeared in the rapid development of real estate in China in the past ten years. It also brings about a problem that there are full of functional buildings which fail to inspire the fantasy of children. “Modern buildings are always focused on rationality excessively, which can lose the pleasure brought by mystery and curiosity.” said by a master architect called Ricardo Legorreta once.
项目概览(Project Overview)




建筑的暗示Building Implication
原建筑是由一栋主楼和辅楼组成,建筑严肃与住宅相似,我们希望建筑本身可以激发孩子的幻想,和自由意识。因建筑整体无法做大动作的调整,通过“插件”的这个设想的动作,来完成整个建筑上的情感暗示。新的插件语言通过控制性的颜色模糊了实体属性,让孩子可以体验建筑本身,同时提示着幼儿园在街道的位置。
The original building is composed of a main building and an auxiliary building. It is similar with residential buildings in terms of color. It is hoped by us that the building itself can inspire the fantasy and freedom consciousness of children. The building fails to be adjusted greatly on the whole, so the emotional hint of the whole building is completed through the envisaged action of “plug-in”. The entity attribute is blurred by the new plug-in language through the dominant color so as to make children experience the building itself and prompt the location of kindergarten in the street at the same time.
∇ 鸟瞰图(Aerial View)
 
∇ 二层活动空间(Activity Space on the Second Floor)

∇ 首层户外连廊(Outdoor Corridor on the First Floor)

∇ 三层垂直小房子(Small Vertical House on the Third Floor)


空间的氛围(Atmosphere of Space)
内部空间的重组,给我们带来新的机会,在内部我们继续用“插件”这个动作,来完成空间的氛围表达。儿童空间我们认为最重要的就是激发孩子的幻想,提供属于一个他们的自由空间。所幸的是,我们发现孩子们喜欢一次又一次的去体验空间带来的快乐。
The reorganization of internal space brings some new opportunities to us. We continue using the action of “plug-in” to complete the expression of space atmosphere. In our opinion, the most important thing is to stimulate the imagination of children and provide a free space for them in terms of children’s space. Fortunately, it is found by us that children like experiencing the happiness brought by space again and again.
为了达到这个目的,我们还在每个教室做了一个只适合儿童的空间,而家长是不适合去的。在一层的大厅有一个弹网区域,变为一个充满挑战和好奇的空间,同时还插入一个贯通二楼到三楼的垂直房子,孩子们可以在这蹦来蹦去,来回奔跑,自由玩耍。
In order to achieve this goal, we also design a space only suitable for children instead of parents in each classroom. There is a trampoline area in the hall of the first floor, which becomes a space full of challenges and curiosity. In addition, a vertical house throughout the second floor and the third floor is inserted, so that children can jump around, run back and forth and play freely here.
∇ 首层入口(The Entry of the First Floor)


∇ 垂直小房子(Small Vertical House)



∇儿童教室(Children’s Classroom)



∇ 走道儿童空间(Corridor Children’s Space)


∇ 游戏空间(Game Space)


色彩与光的世界(The World of Color and Light)
色彩作为一种媒介,调合了建筑与外部环境的各种矛盾的因素。在一层挑高的大厅,我们设计一个橘红色的盒子,这是属于孩子们自由的空间,同时激发整个空间的幻想力。在外部我们用颜色来剥离解放原建筑的形式和材料,在内部空间用极简的形式和色彩与外部融为一体。
Various contradictory factors between the building and the external environment are harmonized by color as a medium. We design an orange box to stimulate the imagination of the whole space belonging to the free space of children in the high hall of the first floor. Outside, we separate and liberate the form and material of the original building through color. Inside, we integrate it with the outside world through the simplest form and color.
∇ 室内外色彩的交融(Blending of Indoor and Outdoor Color)





∇ 总平面图(General Layout)

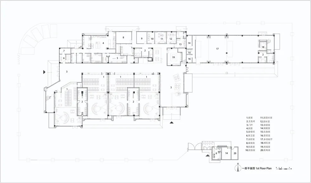
∇ 一层平面图(The Plan of the First Floor)

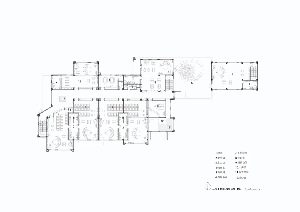
∇ 二层平面图(The Plan of the Second Floor)

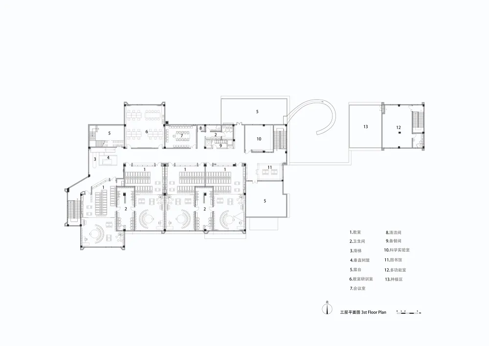
∇ 三层平面图(The Plan of the Third Floor)

∇ 大厅剖面分析图(The Analysis Chart of the Profile of the Hall)

∇ 总体剖面分析图(The Analysis Chart of the General Profile)

 完整项目信息
 地理位置:浙江省台州市黄岩区耀达天玺,中国
 业主方:耀达集团
 设计方:门觉建筑
 设计成员:黄满军 刘飞 汪娟 丁予然
 软装设计: 赫婷婷 郭情情
 材料:不燃板,涂料,铝板,pvc地板,黑板漆
 建筑面积:5000 ㎡
 设计周期:12/2018-04/2019
 建设周期:03/2019-09/2019
 摄影:陈铭
Address: Yao Da Tian Xi, Huangyan District, Taizhou City, Zhejiang Province, China
 Owner: Yaoda Group
 Designer: Portal Architecture Co., Ltd
 Designers: Huang Manjun, Liu Fei, Wang Juan and Ding Yuran
 Soft Outfit Design: He Tingting and Guo Qingqing
 Materials: Non combustible boards, paint, aluminum boards, PVC floors and blackboard paint
 Building Area: Five thousand square meters
 Design Cycle: December, 2018 to April, 2019
 Construction Cycle: March, 2019 to September, 2019
 Photographer: Chen Ming


