建筑师Mariana De Delas创造了一个绿色的瓷砖花园,使这个公寓——以前是一个摩托车作坊——远离马略卡岛帕尔马繁忙街道的视线。
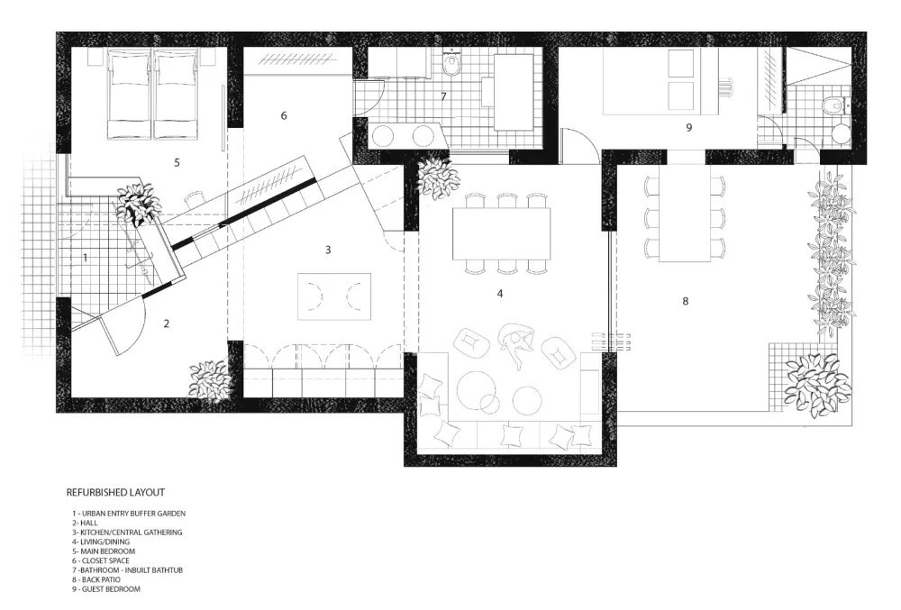
这座由传统的马略卡石灰岩建造而成的92平方米的帕尔玛隐居地坐落在城市的老城区,它现在的主人把它作为一个废弃的摩托车修理店买了下来。
它有一个无人问津的庭院和一个直通街道的入口。
建筑师Mariana De Delas加入进来,将空间改造成一个和平的公寓,优化了建筑的高高的天花板和室外空间。
她首先在建筑前面创建了一个新的“花园”,与繁华的街道分隔开来。入口通道的松木墙的下半部分覆盖了深绿色瓷砖,营造出绿意盎然的假象,辅以一对花盆。
一个内置的长椅座位也被包括在对传统地中海庭院的致敬中。
由于现有的底层入口门在道路和工作室之间创建了一个非常强烈的连接,因此整合中间缓冲花园区域是必要的,”De Delas说。
“它是一种获得室内光线的方式,同时也是街道的声音和隐私屏障。”
这个小花园坐落在一扇折叠门的后面,门是用穿孔钢做的,可以让光线通过,同时挡住街道上行人的视线。
公寓本身是通过第二个木框玻璃门进入的,玻璃门挡住了附近道路的噪音。
“这两层之间的空间可以完全或部分打开,有大量的变化,以适应每一个需求,”De Delas解释说。
花园中使用的绿色瓷砖和松木板条的材料色调贯穿整个公寓,与原始的石灰岩墙壁和传统的拱形天花板形成对比。
公寓的平面围绕着一个单独的、对角的分区墙,它既是房间的分隔物,也是存储空间。它的对角线位置也引导视线朝向后庭院。
在隔墙的左边是卧室,那里的木地板被稍微抬高了一些——De Delas试图使天花板看起来更低,从而创造一个更舒适的氛围。
在全白的主浴室里,地板被抬高到足以容纳一个下沉式浴缸,浴缸的内衬是与其他地方一样的深绿色瓷砖。
厨房、客厅和餐厅等社交区域位于隔墙的右侧,采用开放式布局,配以抛光的混凝土地板。
De Delas与年轻的Mallorcan设计师2Monos Studio合作设计了一个带有绿色瓷砖台面和厚实的粉色桌腿的厨房岛,它是这个区域中心的聚集点。
客厅和餐厅区通过一扇宽大的玻璃门进入。一间小客房和一间二级浴室被创建在一个以前的存储空间内,也可以看到庭院。
2014年,De Delas与挪威工作室Gartnerfuglen合作设计了梳洗室——一个供年轻骑手在骑马前后使用的沉思空间。
项目信息:
建筑工作室:Mariana De Delas
首席建筑师:Mariana De Delas
团队:Ines Bonet, Blanca Gomez
主场及绿化:Belen Larraz
桌子设计:Mariana De Delas & 2Monos工作室

