感谢来自 水相设计 的住宅空间项目案例分享:
除去多余的装饰性质,空间叙事的旁白,是漆质纹理与色块量体相搭后的景深呢喃。从事科技产业的夫妇着重空间度量的精准与实用,直观化的功能降低人造揣摩的痕迹,漆料在各式底材刷涂出的肌理取代砖石的矫饰雕琢,一片淡雅的灰白基底空间里,割出一块块精细的撞色有机块体,挑逗了视觉感官的铺陈,想象这是一座视景深为题的生动趣意空间。
To remove the excess decoration in design, we leave the depth of field of lacquer texture and color blocks in the residential space. Owners in the technology industry focus on the precision and practicality of spatial measurement, so we reduce artificial design and enhance the intuitive function. With the texture of paints on various materials to replace the decorative masonry, we arrange pieces of meticulous organic blocks for this elegant off-white space and increase the visual senses with the tone. You can image it as a vivid and interesting space with depth of field as the theme.


对角区域 corner of field
各个空间似乎是被装填在整座载体中的矩形量体,藉由深浅巧妙地切割用途、转换并导引空间的分隔,为坪数不大的案场延展需要盛载的功能分配。底材运用白橡木皮染色工法,在墙体一遍遍刮除、堆栈出不尽相同的灰阶及渐层的色块层次,在几何块体的堆砌排列下,以块状之姿、量体之态彼此串连在对角的空间。
Each place seems to be a rectangular volume filled in the entire interior space to guide the flow indirectly and separate every function for allocation of this small-scale apartment. The substrate is lacquered with white oak hand painting which was scraped and piled up different layers of grey color blocks over and over again. The space is arranged in each geometric block, and these blocks are connected each other in diagonal areas ingeniously.


空间的艺术成为融合几何图像、线条、色彩的总合,犹如James Turrell《Corner Shallow Space》系列的表现形式,在墙面向内挖出几何形体,如同一个个嵌在墙体的角落,我们利用不同角度、深浅与色彩的变幻强化各区域的不同维度,消融并延伸灰阶背景的感官边界。观者走入一座仿佛排列与错落并行的巨型立方体之间,感受空间沈稳份量感之余的各处玩味角落。
The combination of geometric shapes, lines and colors is like series of art work Corner Shallow Space from artist James Turrell. As the artist dug out geometric shapes like corners embedded in the wall, we use different angles, shades and colors to enhance different dimensions of each block, dissolve and extend the sensory grayscale background. When viewers walk into here, the space seems to be arranged in giant cubes, scattered in parallel and staggered, they can feel the calm and sense of volume in each corner of filed.


递进的景深 depth of field
递进的视线节奏,在这些色料涂进的块体里,建构成一幅又一幅灰调基底下的端景景深。入口处以木皮、皮革量体,和烧杉背板拼接出进退的矩阵,这种进退层次的概念延伸至卫浴退缩的空间,打造有如龛景的大型方框,打破廊道的直线行进布局。以色域涂布出的一方蓝调艺术,一路延展至廊末的门扉、柜体与墙面,一气呵成的廊道视线终止于末端的一抹朱红,端景自此延展了,与起居空间开阖拉门后的红调背墙相呼相应成空间的趣味对话。
The progressive line of sight painted with different pigments and builds up the depth of field in each block. The entrance was bombinated with volume of veneer and leather, and collocated the advanced and retreated matrixes which made of yakisugi ban, this kind of multi-level extends to the bathroom area, creating a large setback square into a fascinating scenery. It breaks the linear layout of the corridor, and highlights the art of blues, extending to the whole corridor including door, cabinet and wall of bedroom area. The line of sight of the corridor ends up with red pigment on the blue, and correlates the red wall of the study area to respond the depth of filed.


这处原先屏蔽住客厅光源的墙体,打通为一处半开放的起居书房,以水墨皴法的笔触临摹于落地的底墙,凸显出手感肌理层次。随着进退区块的推进,勾勒出一幕幕递进的景深,从各方角度观赏,成为深浅皆有戏的框景。
This red wall, which shielded the sunlight before plan arranged, was become a semi-open study area, and was used the skill of Chinese ink painting to brush red pattern on its surface to highlight the unique and classic texture. In this space, people can enjoy the fascinating view in each frame from any angles with the fluctuating blocks that show depth of field as the theme.











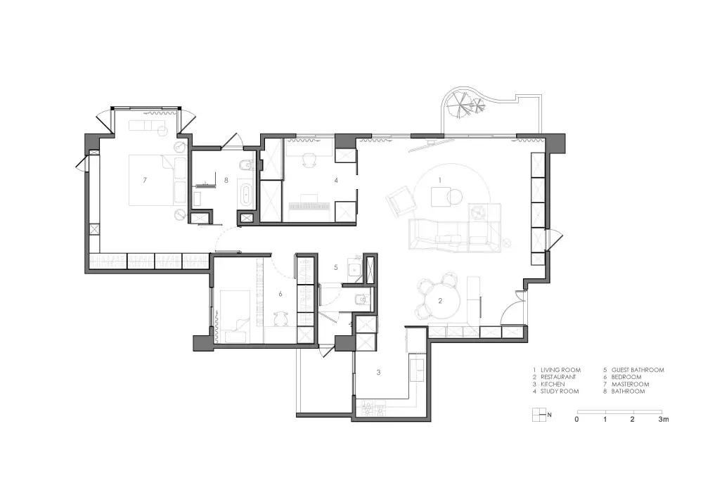
∇ 平面图 PLAN

完整项目信息
项目名称:几何原色
空间设计:李智翔. 曾思娘. 张子轩. 黄昱诚 /水相设计
业主:谢先生
空间性质:住宅
项目位置:中国台湾台北
室内面积:114平方米
空间格局:客厅.餐厅.厨房.书房.主卧.小孩房.卫浴
设计时间:2018.01-2018.07
施工时间:2018.07-2019.01
主要材料:灰白双色手工漆、白色纹理手工漆、蓝色双色手工漆、橡木皮红黑渐层漆、橡木皮蓝白渐层漆、红色烤漆、蓝色烤漆、橘色烤漆、印度黑石材、黑铁层板烤漆(红色.黑色)、冲孔网(白色烤漆)、黑色赛丽石台面、黑色山纹木皮、烧杉
摄影:李国民
Project Name: Geometric Color
Designer: Waterfrom Design
Client: Mr. Hsieh
Category: Residential
Location: Taipei, Taiwan, China
Area: 114㎡
Layout: living room. dining room. kitchen. study area. master room. child room. bathroom
Material:Gray double color hand paint, white texture hand paint, blue double color hand paint, red and black oak skin paint, blue and white oak skin paint, red stoving varnish, blue stoving varnish, orange stoving varnish, Indian black stone, black layer board stoving varnish (red. black), mesh (white stoving varnish), black silestone, black veneer, yakisugi ban
Design Period:2018.01-2018.07
Construction Period:2018.07-2019.01
Photographer:Kuomin Lee
Copyright: Waterfrom Design

