感谢来自 重庆山点水建筑设计事务所 的住宅空间项目案例分享:
如果说钢筋水泥是建筑的骨架
家居设计是建筑的皮囊
那么住在房子里的人所给予的爱
才是真正赋予家的灵魂
大落地窗暖阁客厅 请客人晒太阳伸懒腰

我们希望到家里来做客的朋友
能感受到主人家的热情
温暖舒适的客厅
可以尽快地拉近主客之间的疏离感
让客人感觉宾至如归
客厅的方正格局营造出刚硬的骨架
吊顶的圆弧收边设计让刚强感收敛起来
形成骨正筋柔的贤君气魄

本案业主本想采用北欧风格
用两扇落地玻璃窗迎接温暖的阳光
让房子看起来更明亮
但如果单纯走北欧风格路线
会造成“曝光过度”
房子整体色温过高
因此我们引用了日式风格的设计手法
给墙面加上暖度灰
将大自然成为家的一部分的同时
也让自然色彩沉静下来
明媚的阳光照射在墙上的时候
仍可感受到一丝清爽凉意
爱就是在一起吃好多好多顿饭 说好多好多话

回到温暖的港湾
卸下武装了一整天的铠甲
在开放式厨房
和让自己变得温柔的人
面对面交谈
哪怕只是一个回眸
也能感受到心上人的陪伴
小两口的私密空间 有你就有生活

难得的周末假期
就想跟心爱的人慵懒地躺在床上
偶尔看看书,睡个懒觉

在床头的位置开一扇窗
微风偶尔从窗外悄悄探头
送来清新的空气
颇有度假酒店的氛围
每天睡觉都能闻到床单
微微烤焦的味道
也是一种幸福

隐藏在细节的中国风 潜藏着文化密码
粗暴地拆分出水纹、祥云、龙纹
作为设计“中国”的构件
单纯追求中国风的表象
无异于借尸还魂
将中国传统思想运用到设计上
才能从骨子里透露出
当代中国对文化的自信与骄傲

中国人待人处事讲求
温润圆滑,刚柔并济
不露锋芒
在墙体的转角处
我们做了圆润处理
把锋利的直角化为柔软的弧形

留意客厅、卧室、饭厅天花板
我们尽可能保留吊顶的挑高
不让人感到压抑
同时起到聚气的作用
天花板的阳角线
我们也做了收边处理
边线采取如意
“骨正筋柔”的特点
让整体空间保持方正威严的同时
还避免了锐利棱角带来的冲突感

在家具的选择上
也贯穿着藏锋的理念
即便是给人带来刚硬冰冷的金属部件
依然用具有弧度的边角
为自己增添亲密感




隐藏在家居设计的温润与温柔。

“宁可食无肉,不可居无竹。”
——苏东坡
文人喜竹
尚其气节
虚心且直
坦荡磊落
“不可居无竹”的设计理念
可不只是停留在饭桌上的南天竹
稍加留意
墙上的暖光灯具
正是竹子的空心造型
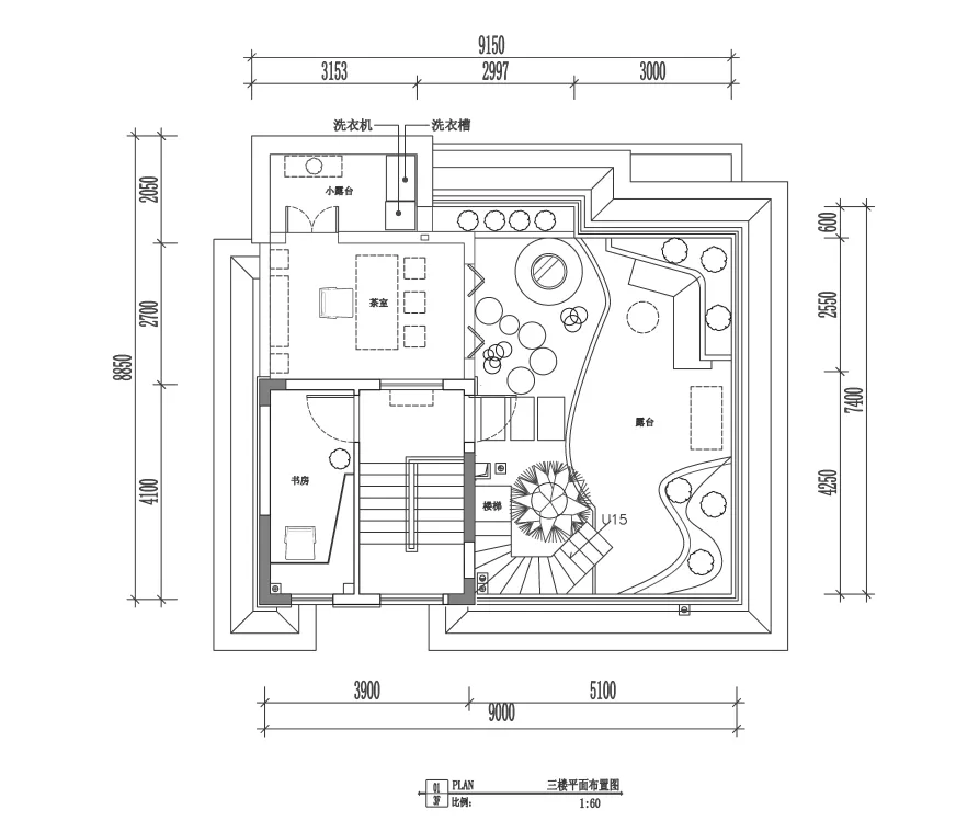
叠墅格局的空中花园

本案的房子属于叠墅格局
是个浑然天成的空中楼阁
空中花园自然是标配
每天清晨爬上阳台
仍有自己的一片天地

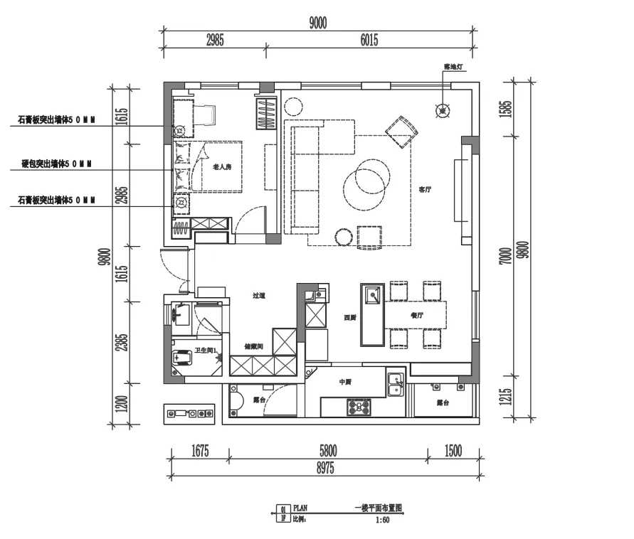
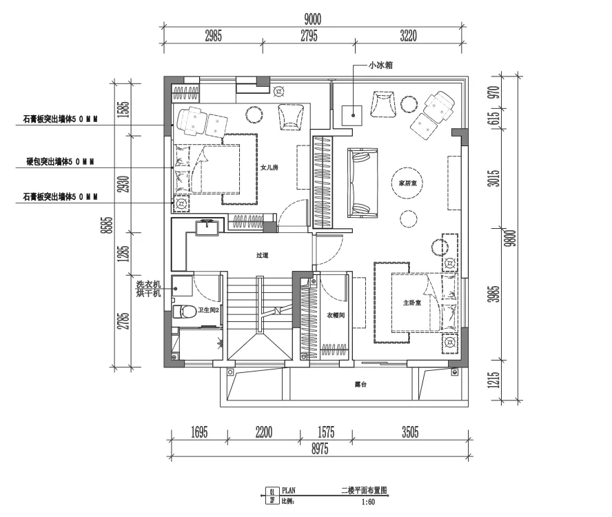
∇ 平面图




完整项目信息
项目楼盘市:融创御景
常住人口:男业主、女业主、女儿
业主职业:家电品牌区域代表
项目总造价:70万元
完工时间:二〇一八年一月
项目名称:温润阳光的暖阁
项目地点:重庆 · 渝北
项目类型:别墅私宅
设计面积:220㎡
设计师:袁新智
设计单位:重庆山点水建筑设计事务所
施工单位:重庆仓古装饰工程有限公司
项目摄影:袁琳玲
主要材料:
橱柜:威法
电器:博世
家具:芝华士沙发、MD茶几、希可坐墩
涂料:立邦
石材:古堡灰大理石


谢谢分享