感谢来自 S+P空间的诗学 的办公室项目案例分享:
城市是一个协同体,在这里,有我们的朋友家人,我们的工作伙伴,我们的客户等等…但是我们看到城市的今天高楼密集,我们更希望它是有那么一点轻松,能够让我们喘一口气,能够让我们看出去的视线,呼吸到的空气,更轻松一点。
刚好我们找到的这个办公场地,是我们所期望的样子,在闹市当中,有生活的便捷,又有轻松舒适的环境。

∇ 项目视频
<span data-mce-type=”bookmark” style=”display: inline-block; width: 0px; overflow: hidden; line-height: 0;” class=”mce_SELRES_start”></span><span data-mce-type=”bookmark” style=”display: inline-block; width: 0px; overflow: hidden; line-height: 0;” class=”mce_SELRES_start”></span><span data-mce-type=”bookmark” style=”display: inline-block; width: 0px; overflow: hidden; line-height: 0;” class=”mce_SELRES_start”></span><span data-mce-type=”bookmark” style=”display: inline-block; width: 0px; overflow: hidden; line-height: 0;” class=”mce_SELRES_start”></span>

空间的属性,最终是一定活动的载体,是一个容器,一个背景。我们每一次去新做一个空间,一个家或者一个办公室也好,它都是对当下生活的一个回应,也是对未来的组织和分配的探索。所以,这次我们自己的办公空间,更像是一次生活的实验。



这个空间有两个模块, 一个是生活 ,一个是工作,我们把它理解为一个分享的空间,可能会更好。在这里分享美食,分享花艺,分享我们的工作,或者分享我们的日常,它都是一个好的平台。
时间对所有的人都是公平的,希望是在这样一个可以沟通,可以社交的环境里面去触发灵感,培养我们的生活状态,我认为在这个时代,设计师的工作时间表不应该是只有图纸,还得有生活,成为一个对生活有理解的,热爱生活的人,才能为别人打造美好生活。
简约是一个去复杂的逻辑,去复杂,并不减少,这是我们的理解。


那去掉复杂,我们应该保留什么?我认为应该是一个更纯粹的生活方式,就像我们的茶室,面对美景 ,我们在这里停顿思考,这也是一个状态。在这个状态当中,我们能够有一些反思,能找到我们所坚持所努力的方向,这才是一个良好的,更有趣的生活方式及生活状态,这才是我们所诉求的。















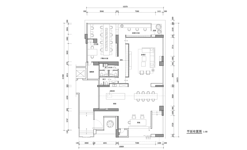
∇ 平面布置图

完整项目信息
项目名称:S+P空间的诗学办公室
项目地点:中国云南省昆明市盘龙区和谐家园c座405
设计公司:S+P空间的诗学
项目面积:330m²
主创及设计团队:刘宗亚
设计面积: 256㎡
设计时间: 2018.6
完成时间:2019.1
主要品牌:灯具:欧诗朗,木地板:吉林森工,橱柜:柏丽

