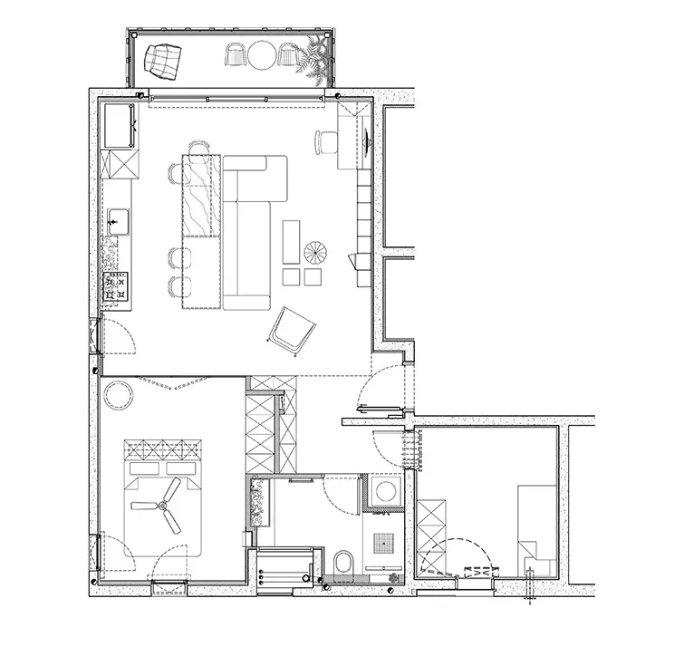
客户是一对夫妻。这间位于以色列雅法的78平米小公寓,每一寸空间都得到了最大限度的利用。时尚的黑白配色为整个设计奠定了基础,一个开放的客厅和厨房,顺势划分为功能区,两个小而舒适的卧室,以及时尚的玻璃隔断,增强了自然光,并在视觉上延伸了空间。
The customers are a couple.Today we have another example of a well-planned and stylish modern apartment of 78 sqm in Jaffa, where every inch is used with maximum efficiency. There is an open living room-kitchen, conveniently divided into functional areas, two small but comfortable bedrooms, and stylish glass partitions to enhance natural light and visually increase the space. The color scheme is also minimalistic and simple – stylish black and white colors made the basis for the whole design.
























∇ 平面图

主要项目信息
项目名称:An apartment for a couple | J3
项目地点:以色列雅法
项目类型:住宅空间/公寓设计
项目面积:78平方米
完成时间:2019
设计公司:studio ETN

