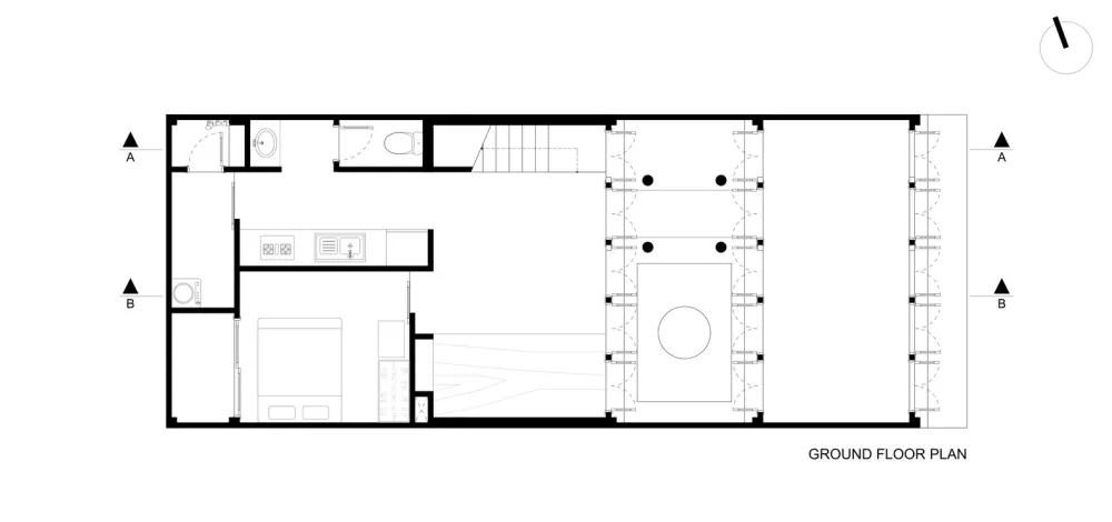
Tama House是一个民宿,位于越南Tay Ninh市的心脏。客户是一对年轻的夫妇,他们想把他们的91平面积的土地变成一个理想的停站。我们面临的挑战是合理利用自然环境和条件,创造自然通风,使越南热带气候的温度最小化,同时优化建设成本。
通过剖面分析建筑的形状。“客户对茶道和日本文化有着浓厚的兴趣”,因此他们希望茶道空间与休息室和花园空间之间有一种结合和联系。这些空间必须是最小的和灵活的,所以我们决定把建筑分成两个独立的部分,中间是一个花园。前面是客厅,后面是茶道空间。所有这些都通过一个大的门道系统连接到花园,这有助于我们创建一个灵活的空间,可以根据用户的需求轻松地改变功能。
为了确保所有房间利用自然光和风力最小化一个热带气候的温度以及客户的需求和业务,我们必须选择单独的项目分成两个独立的解决方案模块,中间带花园的。
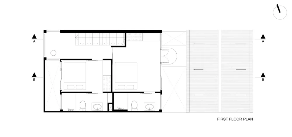
花园空间由池塘和树木组成,在块体的中间形成缓冲。这既是建筑的亮点,也是有效对流的通风方式。在建筑结构上,我们采用了传统房屋典型的两层屋顶系统,包括阴阳屋顶瓦和浮动框架天花板系统。浮动框架天花板是由木质框架制成的天花板,上面覆盖着麻袋。
在屋顶和天花板之间是大气,在墙的两边有一个酒吧系统。这个屋顶系统创造了屋顶和天花板之间的被动对流,以更好地隔热,同时也提供了表达日本传统建筑风格的视觉效果。为了利用自然光,我们用整个大开口门作为周围的墙壁。这些门是由带有百叶窗的半透明玻璃门制成的,使得光线很容易在室内扩散,并创造必要的隐私。
设计:N architecture
面积:91.0 m2
时间:2019

