优卓牧业办公综合楼位于湖南省宁乡县双江口镇槎梓桥村,是湖南省一家经营牛奶饮品的优卓牧业企业,以生产液态奶为主要经营产品。该项目于2018年6月竣工,项目设计内容包括牛奶工厂的参观通道、会议空间、工作空间、试验操作空间等多个部分。空间整体的色彩倾向为温润的白色,以表达牛奶纯净、生态、温和、无杂质的特性。
Youzhuo animal husbandry office complex building is located in chaziqiao village, shuangjiangkou town, ningxiang county, hunan province, is a milk beverage business youzhuo animal husbandry enterprises, to produce liquid milk as the main business products. The project was completed in June 2018. The design content of the project includes the visiting passage of the milk factory, meeting space, working space, experimental operation space and other parts of the space. The overall color trend of the whole space is warm and moist white, to expss the characteristics of milk’s purity, ecology, gentleness and impurity free.
▼入口前台,reception desk
 
 
 
 
 
 
因而,材质的选取也与空间设计风格相协调。地面选用白色橡胶,立面大都选用白色烤漆玻璃、白色铝板、白色灯箱片等材质,而顶面部分空间,如参观通道则选用大面积软膜,使空间显得通透柔和……
Selection therefore, the materials are in harmony with the space design the ground chooses white rubber, glass facade mostly use white paint white aluminum materials such as white light box piece, and the top part space, such as visiting the channel choose large area soft membrane, make the space appears fully soft.
▼会议空间,meeting area
 
 
 
 
 
 
 
 
在接待空间的设计上则更加灵动、活泼,裸露的木材凸显空间生态质感,明亮的桔色与温和的白色相呼应,为空间内增添了更多活力,赋予办公环境新的概念与氛围。白,纯粹,通透,温和,于想象之间,缓缓而至。
on the design of the reception room is more clever and lively, bare wood highlights ecological space texture, bright orange with a mild white photograph echo, added more vitality for space, to bring new concept of office environment and atmosphere. White, pure, transparent, mild, between the imagination, slowly to.
▼赋予办公环境新的概念与氛围, bring new concept of office environment and atmosphere
 
 
 
 
 
 
 
 
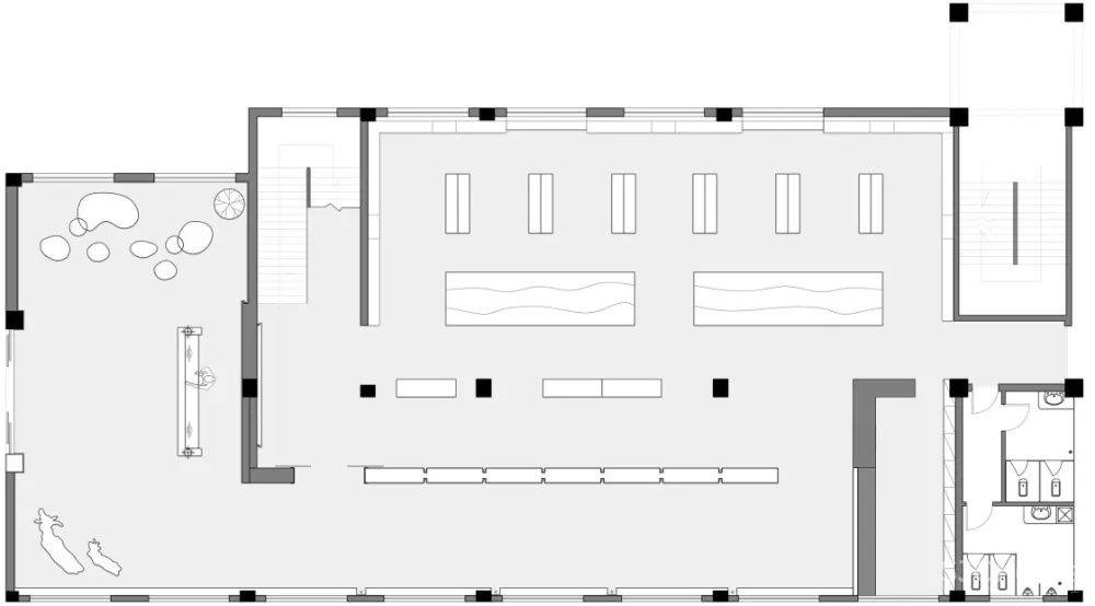
▼一层平面图,1F plan
 
 
项目名称:优卓牧业综合楼办公空间
项目地点:湖南省宁乡市
项目面积:2100平方米
设计单位:尺镀美学
设计年份:2017—2018
Project location: ningxiang city, hunan province
project area :2100 square meters
design unit: CHIDU DESIGN
design year :2017 —2018


