这位客户习惯了传统的通风条件很差的房子,他花了一些时间才说服他同意一个开放的平面设计,以扩展他的客厅。我们在雅加达一个高密度城市的一个密度为5,6 x 14,6米的地块上设计了一个两层半高的热带住宅,带有后院和大量的开放空间。
室外空间在水平和垂直轴线上贯穿整个住宅,在后院形成一个巨大的烟囱状空间,不仅使日光溜进住宅的每个角落,而且使空气流通良好。
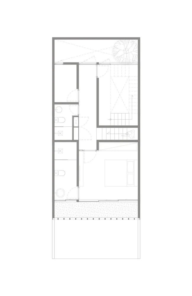
在每一层,将浴室排成一列的楼层平面图使排水管道系统更加高效。一个小竖井被放置在浴室墙壁的深处,以引导所有的水道和电缆。
使用混凝土砖作为一种经济实惠的材料,只需要最少的装修,目的是为了降低成本和缩短工期。原材料的暴露为充满活力的城市家庭创造了一个引人注目的室内/室外特征,他们希望住在拥挤的城市中宁静的房子里。
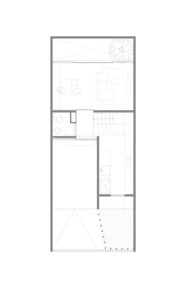
▼一层平面布置图
Architects Studio Kita
Location Yakarta, Indonesia
Category Houses
Design Team Erick Van Hautan, Ivan Christianto, Arleta Rachma
Area 199.0 m2
Project Year 2019
Photographs Arleta Rachma

