WGNB为韩国流行奢侈街头服饰品牌Juun.J设计了第一家全球旗舰店。包括一家服装店和Felt咖啡馆。建筑师表示“黑色是一种神奇的颜色”,吸引和吸收光线,因此设计遵循“暗物质”的概念。
WGNB designed the first global flagship for popular Korean luxury streetwear label Juun.J, encompassing a clothing store and Felt Coffee cafe. The architects expss that ‘black is a magical colour’, attracting and absorbing light, hence the design follows the concept of ‘dark matter’.
建筑由所有设计中都有的基本形式——圆形、四边形和三角形组成。建筑设计理念则来自宇宙暗物质的概念。由统一的黑色混凝土立面所约束。临近首尔江南区多山公园,几何形状引起了路人的好奇心。
The architects fused a triangle, circle, and square to form one abstract, geometrical building, bound by its uniform black concrete facades. The ambiguous shape generates curiosity from passersby, and intentionally sticks out amongst manicured Dosan Park surrounds in Seoul’s upmarket Gangnam district.
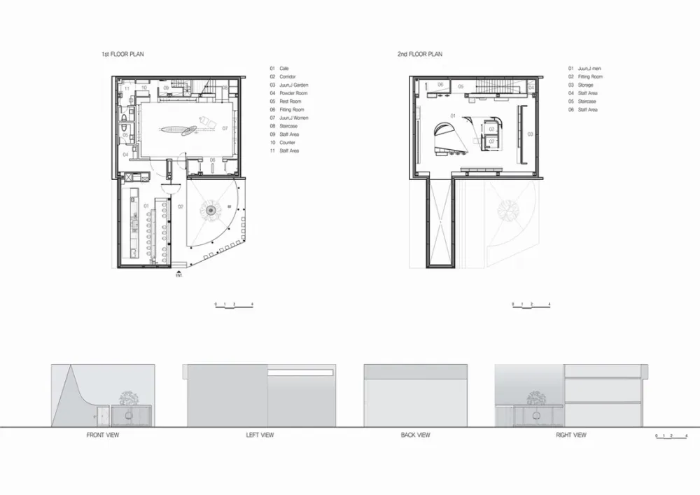
室内采用单一的配色方案。Felt咖啡被安置在倾斜屋顶结构下的狭长区域内。天窗沿着顶部边缘,允许一条自然光照亮下面的咖啡馆。咖啡馆面对着一个中央开放的庭院,在庭院的中央,一棵奇特的盆栽树悬挂在火山岩坑上方。
Interiors also feature a blacked-out, monochromatic colour scheme. Felt Coffee is housed within a narrow strip beneath the pitched roof structure. A skylight traces the top edge, allowing a sliver of natural light to illuminate the café below. The coffee shop faces a central open courtyard, at the centre of which a singular potted tree is suspended above a pit of volcanic rocks.
朝庭院的窗户允许更多的光线进入室内,然而完全哑光的黑色内饰给人一种神秘的氛围。虽然不是你的第一选择,但无法忽略的整体环境是有趣的。
Courtyard facing windows allow for a little more light, however the entirely matte black interiors give a pdominantly sultry vibe. Although perhaps not what you’d choose for your go-to friendly neighbourhood coffee spot, the overall impact is undeniably intriguing.
首层一半空间是Juun.J时装的展示区,延续“暗物质”的概念,更具体地说,灵感来自阴影。展示了女性试装系列,并通过光滑的地板展示了建筑内唯一的白色区域。
The other half of the lower floor and the entire upper floor is dedicated to Juun.J fashions, continuing the ‘dark matter’ concept and more specifically, inspired by shadows. The first-floor store displays the women’s line and collaboration collections and features the only expanse of white within the building by way of a glossy floor.
二楼的男装回归黑暗,在单色与各种黑色纹理的徘徊。一个三角形的入口强调了建筑独特的坡度屋顶,而服装围绕着悬挂在天花板上的大块几何装置,展现激进的当代美学,来自巴西,德国和丹麦家具也点缀着整个空间。
The menswear level returns to complete darkness, an exercise in monochrome with various textures of black. A triangular entryway mirrors the building’s distinctive pitched roof, while clothing is arranged around bulky geometric blocks suspended from the ceiling. A slight detour from the somewhat aggressively contemporary aesthetic, classic Brazilian, German, and Danish furniture pieces dot the store.
“黑色是Juun.J的象征,与脱离无形存在的影子一样是黑色。也表达了Juun的价值。仿佛在黑暗的色彩中得到了调和。”
“The three-dimensional shape of the smooth geometry without any unnecessity seems to expss the value of Juun.J as it is in the space, as if it were tempered in the colour of darkness,” says the design team.
▼平面图
建筑事务所:WGNB
主创建筑师:Jonghwan Baek
项目年份:2019
厂家:TERRACO, Autodesk, Trimble, Unicor International
地址:Seoul, 韩国
建筑面积:396.0 ㎡
摄影师:Yongjoon Choi
客户:Juun.J

