丰富的黑暗空间
空间设计概述
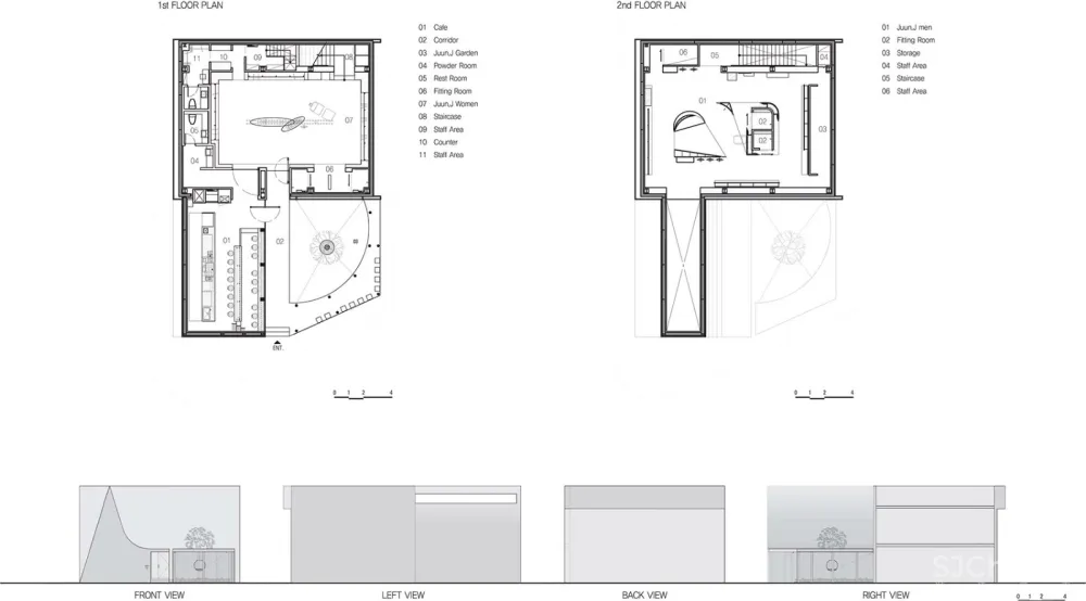
该项目是Juun.J时尚品牌的第一家旗舰店,分为两层:首层是咖啡厅和女装区,二层是男装区。设计师使用自然元素如光影,展现黑色空间的昏暗感,黑色是Juun.J品牌的标志颜色。建筑形式从几何形态演化而来,这也是所有设计的基本模式。Juun.J旗舰店虽然拥有独特的形态,但其造型却像是没有具体形状的影子,如同Juun.J品牌的设计一样,为顾客带来了无尽的奇异感。设计师设计建造的Juun.J首家旗舰店位于首尔江南区新沙洞岛山公园区域,在这里,顾客能够购买到Juun.J所有的产品,除了男装和女装之外,还包括品牌的限量合作款。
概念
“黑色是Juun.J的标志颜色,那些最美丽的、无形的影子也都是黑色的。“东方传统建筑的基本形式均为大屋顶体量置于主体部分之上,将整个结构纳入宽大遮阳蓬下深而宽的阴影之中。遮阳蓬下的昏暗区域,既形成空间中的阴影也是一种黑色调。基于将黑色转变为空间的构想,设计师通过悬挂大量的产品或通过将它们间隔开,来塑造阴影。
建筑形状由圆形、四边形、三角形组成,这也是所有设计的基本元素。建筑的设计以宇宙中的暗物质为概念展开。圆形花园是一个充满自然光线的区域,在与昏暗空间形成对比方面,发挥着重要的作用。
旗舰店有两层空间,面积共396平方米。首层是女装和合作限量款,二层则是男装。除了女装部分的白色区域,一层所有的空间采用深浅不同的黑色调。在这里,黑白空间形成对比,服饰悬挂于黑色区域部分。设计师在Juun..J旗舰店中,通过设置花园和最专业的特色咖啡品牌FELT COFFEE,为顾客提供了差异化的品牌体验,如此,顾客可以在同一空间中体验一系列不同的品牌产品。在咖啡厅中,天花板上戏剧化的自然光在这里形成变化不同的黑暗空间。屋檐作为遮阳蓬,让顾客感受到花园反射而来的自然光线。顾客可以在内部空间中看到花园,并观察到漂浮树木所形成的阴影。
商业影响分析
Juun.J旗舰店位于狎鸥亭岛山公园。以岛山公园为基础,繁荣的商业区内业态丰富,包括socal taste餐厅、生活方式商店和咖啡厅。另一方面,这一区域没有高大的建筑,塑造了光线均质的环境。
主要构造技术
设计师在法规允许的范围内对建筑进行扩建,并改造了一处原有住宅。空间内使用多种材料来表现黑暗感。一层的咖啡厅区域使用油墨浸染的胶合板。女装区用来悬挂产品的黑色吧台采用人工加热后附着在表面的黑色乙烯基材料。除此之外,二层使用黑色混凝土地面,内部黑色家具使用染黑的亚克力材料。
项目位置:首尔,韩国
设计时间:2019
设计公司:WGNB

