水仙之美是北京高端私人精准护肤品牌连锁机构,定位于为高端客户打造私人定制的贴身美容美体解决方案。2018年水仙北京地区同城5店同时升级改造,委托Penda China进行空间升级设计。
项目缘起
女人都爱美,但是现在的女人可能不仅仅追求表面的美,而更多的会关注健康、气质、长久的美。所以会考虑去做一些可以对未来有所帮助的事情,比如花比较多的时间去做专业护肤等。
主创设计书言在和几个女朋友在一次餐后放松聊天时畅谈每个创业女性对生活和未来的想法。很强烈的感受到美女业主也是一个拥有梦想的女孩,她需要一个可以为品牌客户全方位呵护的专业和美学结合的空间,一拍即合的决定为她打造这个系列。
原始状态
改造前每个店的内部都不一样,因为都是商业空间,之前都是不同业态,每个空间都花哨的很,采光效果也不太好,所以我们就想空间做的简单一点、通透一点、明亮一点、快乐一点。改造之后都不能想出原来的样子了,效果完全超出了原来的预期。这一点让业主和顾客都十分惊讶。
创造美丽的洞穴
水仙之美是个有调性的品牌,比较注重服务品质,空间上他们也很希望能有个性特点。我们希望客人来到这里能找到一种归属感和安全感,所以我们的概念就是从洞穴开始,因为洞穴是人类最原始的安全的庇护所。希望客人躺下来的时候看到的不是一个单调的白色方方正正的天花板,视线可以随着拱形的曲线摇几下脑袋,先活动一下颈椎。希望空间是一条连续的弧线,每个独立的空间都是一个独立的洞穴,让顾客在享受美容服务同时也能享受空间带来的独特感受。
”我们用弧线营造了一种音乐的韵律感,也有一点点神秘色彩,这正是美丽女性带给人们的感觉。“主创之一万书言说。
因为原来的空间都很闭塞,自然光也有限。而我们想要创造的洞穴又需要大空间来表现,所以后来加入了很多镜面,让洞穴的连续性更有层次感。
”我们五年前第一次在鸿坤美术馆中利用了拱形元素,这几年拱形被到处用,我们就想怎么能把拱形用得更有趣,大家都用,但一看这个还是能分辨出这个是我们的。拱有很多种,但只有一种叫Penda China。当然拱形的洞穴也符合水仙品牌的空间需要,我们也不会强加一个符号“主创孙大勇说。
温柔的女性色彩
美容行业是一个非常女性化行业,水仙的主要顾客人群也以女性为主,所以设计的空间选用了粉色系的色彩体系,希望打破人们对美容店单调的白色空间的传统看法,粉色的空间配合拱形的造型,拉近人与空间的距离,创造出独特的安全感和归属感。
对这个空间来说,客人会在房间接受针对个人的护肤疗程时间比较长,所以在整体设计上,会考虑到材质颜色等设计元素营造出来的一种放松的状态。然后女性美的事情又是一个比较时尚的话题,所以在颜色的选择上考虑了一下未来的趋势。然后很巧的是正好是今年的流行色。
不同材质间的对话
由于每个店面的面积并不是很大,有的店面位于商场内部,为了在有限的空间中创造丰富的连续性,个别的墙面选用了镜子,通过镜子间互相反射,使空间更加丰富变化,同时也增强了人与空间的互动性。就像是爱舍尔的空间一样,变幻莫测。
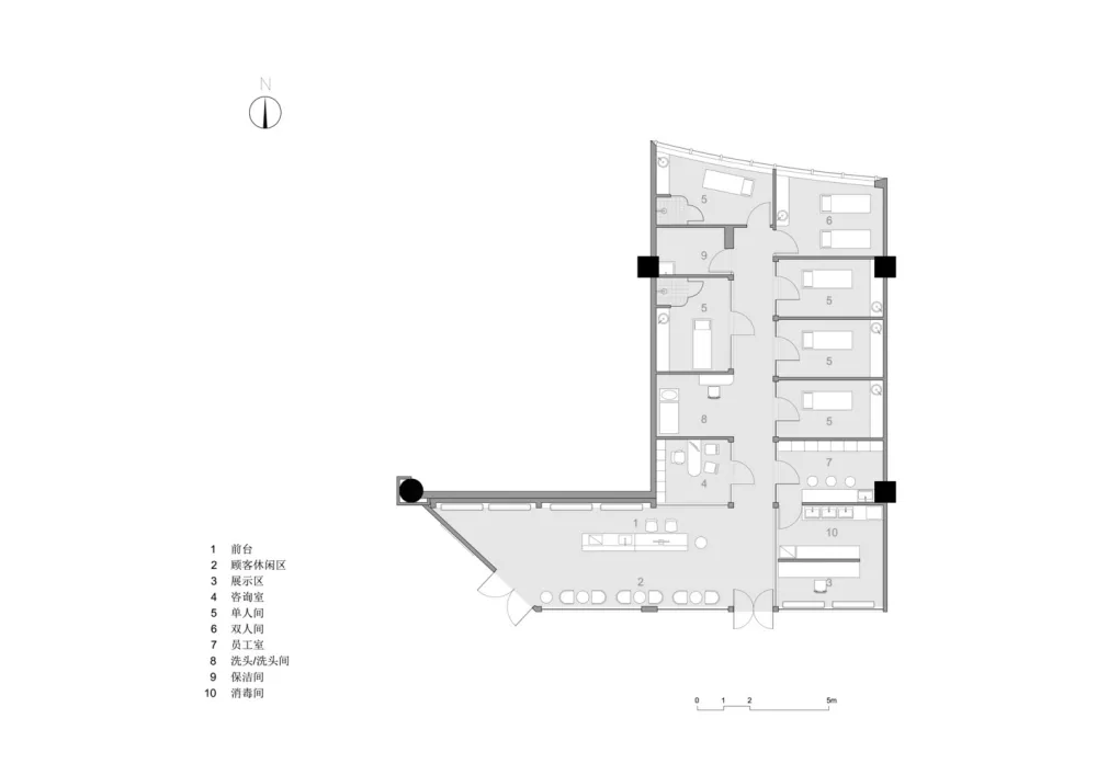
空间升级离不开对客户诉求的了解和分析,基于水仙过去成功的品牌定位和客户分析,设计师总结了几点升级意见,首先是空间功能的合理划分,以及多功能空间的整合连接。例如原来开放的前厅可以结合吧台、休息、美甲等功能整合起来,让顾客在这里可以学习、休息和放松,获得美容之外的体验。
品牌信息的传递
最后一点是统一性,由于每个店面的面积不同、位置不同,但是每一家店都要延续品牌的标识,所以每一家店都针对性的量身打造,在延续统一的风格同时,每一家店都因地制宜的合理利用空间和采光,使空间的舒适性得到保障。
核心元素重复,通过形式语言的重复加深人们对品牌的印象,强化视觉记忆。这也是整体品牌形象设计的策略。
基于这些方面的分析和考量,水仙品牌的空间升级工作得到了业主和顾客的一致好评,空间为品牌注入了新的活力。不仅顾客感受到了独特的消费体验,连企业的员工也由衷的增加了荣誉感和自豪感,这也是设计的目标所在,通过空间影响和改变人的行为,创造更加美好的生活。
设计后的心得
美容院是一个让人放松的地方,不能做的太紧张。另外美容院体现着客户尤其是女性对美的追求,所以空间可以超现实一点,留一些想象的空间。特别注意的一个是光线,多用间接照明,光线柔和一点。另外地面尽量不要有高差,因为很多器械设备需要移来移去,护理师多是女孩,有高差对她们实际搬运器械会带来不便。另外设计中应该多追求女性在空间中视线的安放之处,所以整个流线的设计和规划尤为重要。
女性对美的追求可能是大框架的也可能是很细节的,就像女人选一双高跟鞋一样。所以对于女性审美来说,设计其实是没有办法有一个标准的,最重要的还是要细心去体会,在空间设计中尽量温暖细致,同时也要给她们一定的想象空间。
室内设计:槃达建筑
项目位置:北京,中国
主创建筑:孙大勇,万书言
设计团队:张艺,朱玥
建筑面积:300~500 平方米
项目年份:2019
摄影师:夏至

