这是一个信息爆炸的时代,空间无不充斥着信息,看似海量而破碎的信息经由不同的媒介传入大脑和各种感官,但实质上却削弱了人的五感。试图在城市建筑的框架之中,介入富有深度而实质的空间,唤醒人类的敏锐性,身在空间之内,回归五感。
▼电梯入口
色彩营造情绪与空间使用者发生关系,橙黄色彩关系营造出趣味性空间氛围。
IGG面向全球各高校学生招募最具潜力的游戏实习生,G星计划,Tenon Design受托为IGG设计这个多功能空间,重新定义办公空间,创造具有感染力的空间氛围。
▼办公区与健身区的入口
简洁的线条与明亮的色彩构成,碰撞出独特的感官冲击力,玻璃面板的反射性带给了空间动感与无限可能。
▼办公区入口
裸露的混凝土,穿梭的桥架,仿佛吸收着光线,而又微微散发,端景的洞穴使空间充满流动感。
▼办公区吧台
金属桥架、裸露的管道系统赋予空间新能量,延展至所有的天花平面,贯穿整个办公空间。
▼吧台细节
▼墙面细节
▼洞穴区
源于洞穴的内涵,呈现洞穴的有机空间,将杂乱无序的建筑体量转换为自由的开放空间,将游戏的无限幻想延续至建筑空间,让时间和自然光线轻柔地流入内部场所。
▼室内墙体模仿溶洞的起伏和穿梭,形成了多种有机体,支配着空间分布。
▼随着不断变化的曲面,无限延伸至外部,激发无限大的想象力。
▼洞穴看向吧台
塑造原生而柔和的洞口,联结到外部空间。
▼外部看向洞穴
穿过洞口扩散而出的光束营造出窥与望的静止状态。
▼办公区过道
内部剥离回原始的混凝土结构,专注于创建一个公共空间,金属桥架延伸穿过开放空间的两个层面。
▼办公区卫生间
蓝色的曲面造型与不锈钢反射出微微光线,U型玻璃定义了空间的界线。
▼户外区
玻璃幕墙隔离室内外空间,展现空间价值的多种可能性。
▼健身区过道
不锈钢、彩色玻璃面板具有反射性灯光与其恰到好处的通透感共同定义了入口的秩序感
▼健身区
裸露的混凝土,桥架的漫反射和有趣的彩色玻璃面板形成不断改变颜色的动态元素。
▼健身区卫生间入口
跳跃的灯光突出了空间的色调与质感,与不锈钢的几何logo相映成趣。
▼健身区卫生间
各种不同的材料的巧妙组合与运用,由内而外,相互联结,形成多层次空间体验。
▼原始结构图
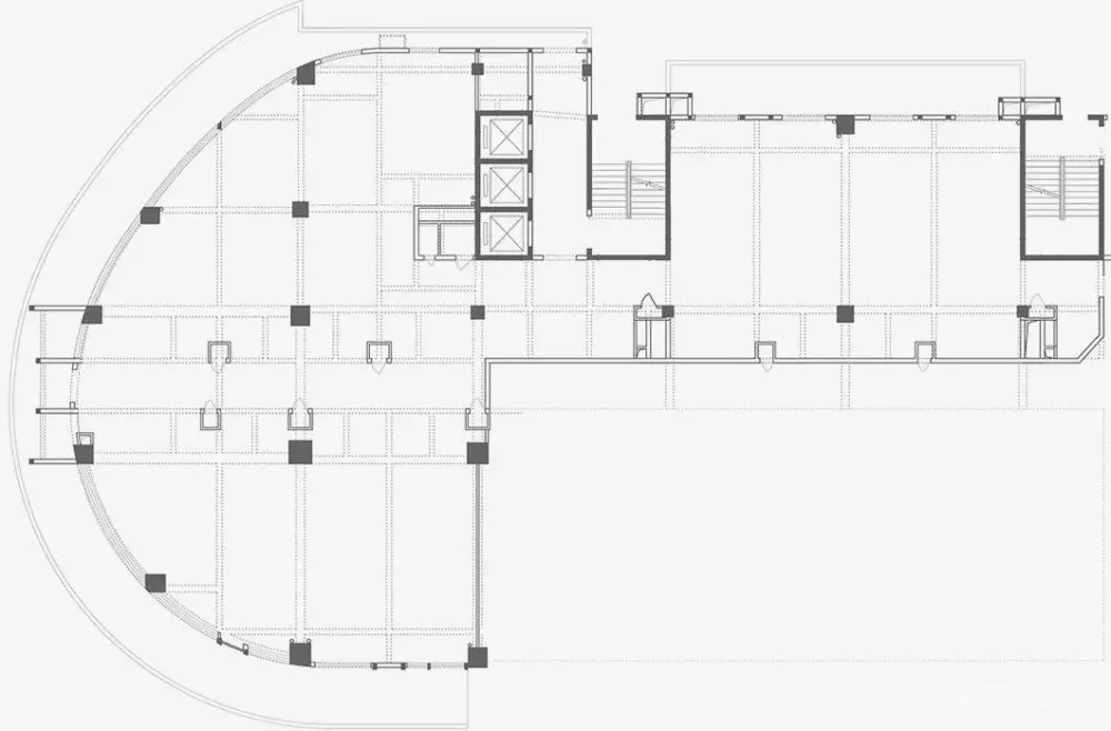
▼平面图
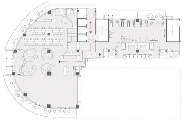
▼动线图解
▼空间图解
▼空间剖面图解
项目名称:DEMO 延伸·衍生
项目地点:福建,福州
项目面积:770㎡
项目业主:IGG
完成时间:2019年5月
主案设计:陈辉 | 十上设计
协作设计: 胡慧 俞千千 陈默 | 十上设计
项目施工:福州火烈鸟装饰工程有限公司
摄影师:李玲玉

