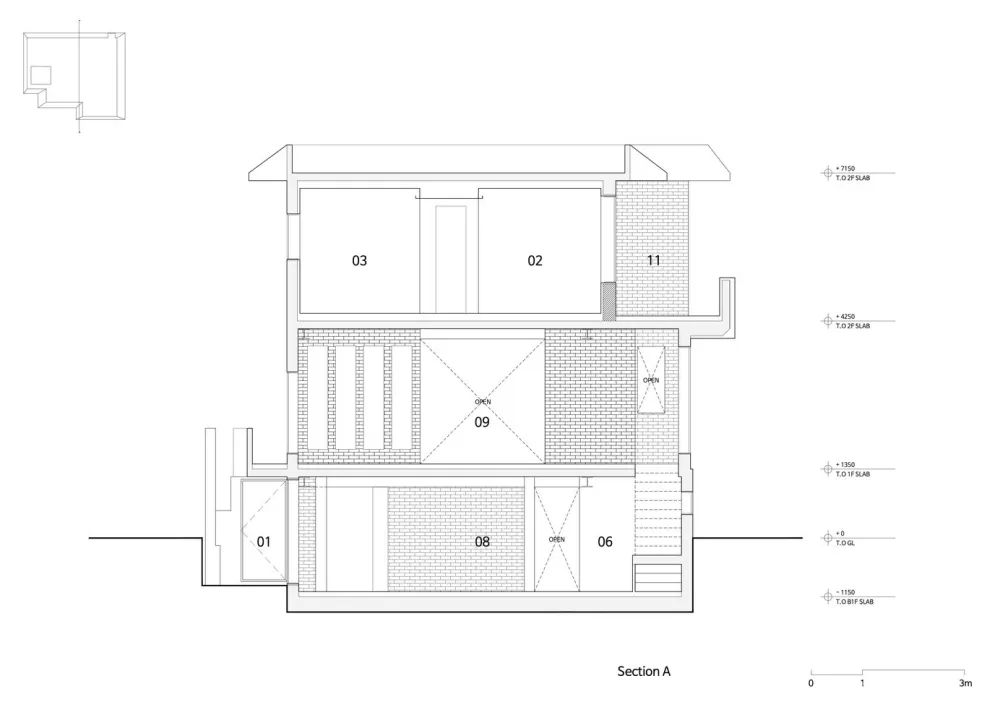
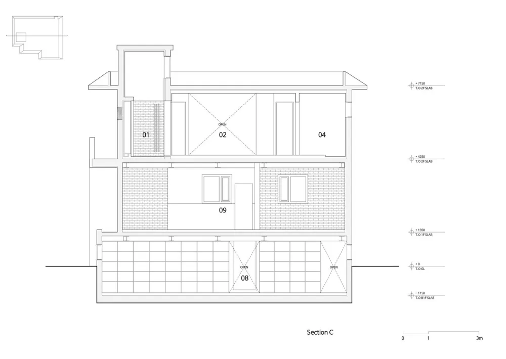
‘Salon Guui’寻求一种对80年代的韩国流行住宅建筑类型进行翻新的可能性。这种老式建筑是三层的;半地下室,一层和二层进行抬升,因此有着独立的入口代表着80年代建筑的空间特征。该建筑曾经包含5个住宅单元:2个半地下室单元,一层1单元,2层2个单元。翻新后的建筑在半地下室和一层各包含一个办公室,在二层包含办公室主人的一个单独的家庭住宅。
办公室的主要工作空间被安置在半地下室。一层通过从半地下室切出来的平台进行连接,提供多种功能,可以作为会议室,展览厅,休息室以及员工和住户的剧场使用。位于半地下室办公区和二层住宅的中间,抬升的一层在建筑中作为“沙龙”所使用。
最小化的新抛光已经应用在了外部和内部。新的灰浆匹配了建筑中在现存灰浆上直接堆叠的砖块,其给出了一种体量上的整体感。老式楼梯扶手和把手被彩色不锈钢板所包裹。典型的水磨石底板配上80年代的900毫米的黄铜格栅被以新的线面尺度重新诠释出来。
一层的抛光,使用150毫米x150毫米的黄铜格栅,填充黑色混凝土和深灰骨料,其在格栅上拥有一定比例的针对骨料交叉部分的变形部分。‘Salon Guui’不需要其他抛光措施就用独特的意图,策略和细部重现了80年代的韩国氛围。
东侧的墙和板在一层已经有了改动的痕迹,在建筑构造,扩张和翻新上。其更新换代上表现了80年代不常见的建造技术和材料使用,例如红砖堆叠在花岗岩基础上,窗户用作壁龛以及抹平的表面用来装饰人们体验了3个不同时期的表层模组。
‘Salon Guui’提倡建筑类型的价值,老建筑中的要素和抛光作为“共同形式”来代表80年代。韩国海岸窗户的独立入口结构和细部设计,混凝土屋檐和面砖,石材装饰的楼梯护栏,花岗岩片层的混凝土基础和多种多样的管道植入系统被保存了下来。在项目内部,内层被小心地揭露,隐藏的材料和维护结构在30年间的历史中不断发生改变。
建筑师 stpmj
地址 Gwangjin-gu, 韩国
类别 更新项目
建筑面积 195.0 m2
项目年份 2019
摄影师 Bae Jihun
结构工程师 Hangil Structural Engineering

