感谢来自 HAD上海湾流建筑设计咨询有限公司 的住宅项目案例分享:
在外滩的精致浮华里体会“赤贫风”的侘寂生活
上海外滩,洋气又怀旧,摩登又复古,在这片寸土寸金的土地上,四川中路63号的一栋老旧建筑迎来了属于它的新生。湾流国际携手HAD设计院耗时半年完成外滩院子的翻新,将此处打造为湾流国际旗下MARINA系列的高端公寓“外滩院子”。
HAD设计师在对旧物业进行改造的过程中,发现了两间昏暗无窗的房间,如获至宝,希望能在这样精致浮华的城市里,打造出两间“臻舍”给入住者带来不一样的侘寂生活。朴素空间的历史感、情感旧物的故事感,放大空间与物件的岁月感与不完美,感受赤贫风的独特魅力。
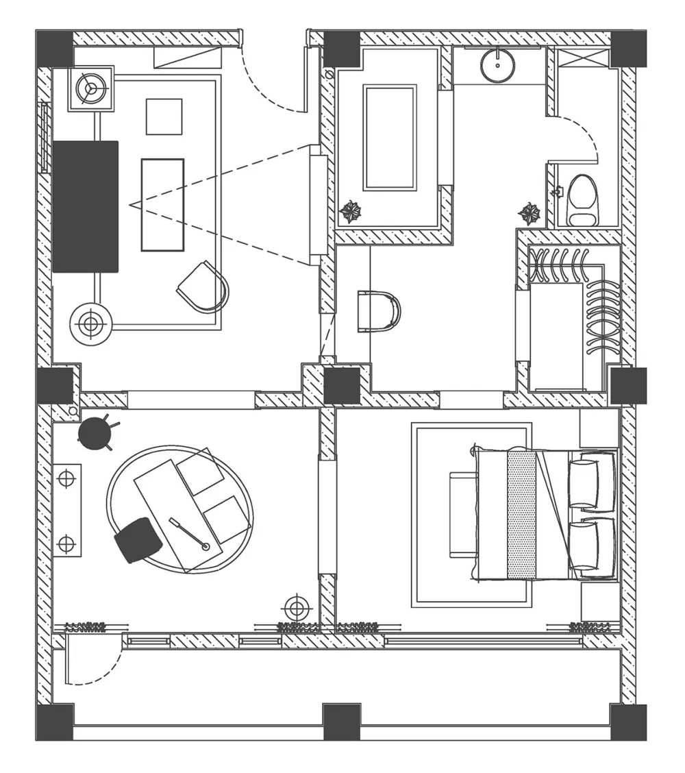
∇ 臻舍一户型平面图

自由平面布局打造流动空间
∇ 臻舍一户型实景照片

入户客厅一眼看去就这样老老旧旧,但一点都不觉得刻意,反而有种不可言喻的朴素美感,再搭配上充满岁月感的实木家具,拙朴的陶瓷器皿以及纯色的亚麻布艺,在不经意间流露出岁月的慵懒与美好。

与客厅贯通的书房空间,用与客厅保持一致的做旧横梁、青石地砖以及水泥墙面来延续空间的整体调性,巨幅装饰画做为视觉中心,牢牢抓住你的眼球,毫不顾忌的展示自己的粗犷与张扬。

走进卧室空间,仿佛一切都沉寂了下来,未经雕琢的墙面是富有层次的,有深有浅,在不均匀的粉饰中融入纯粹质朴的美。
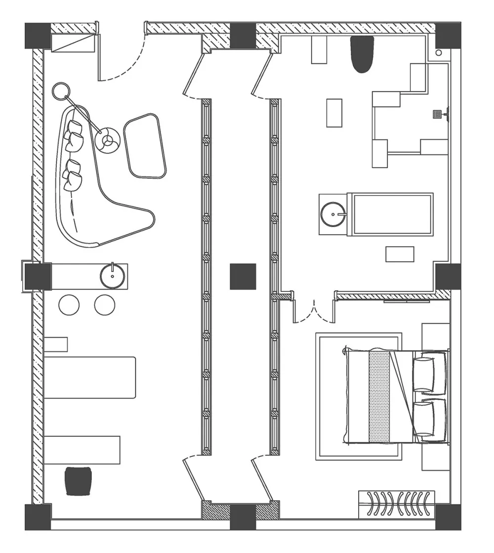
∇ 臻舍二户型平面图

利用创新且具有仪式感的人工采光槽打造新颖的空间。
∇ 臻舍二户型实景照片

纯白色的开敞式客厅空间仿佛可以听得到沉默。

充满仪式感的人工采光槽,通过重复序列的方式,给置身于此空间的人带来宁静与圣洁感,同时巧妙地解决了采光问题。

穿过采光槽到达卧室空间,古朴的家具与柔软的织物共同编织了一片安静的柔和,直击内心,不偏不倚。

境由心生,
发于心,止于情;
赤贫风美学,
不仅仅是一种形式和符号,
也是一种氛围。
我们期望和追求的那份宁静与平和,
唯有真,才是永恒,
时间的每一笔都是伏笔。
————你没读懂的一切尽在《侘寂》时光里。
完整项目信息
项目名称:湾流国际MARINA高端公寓上海外滩院子
项目位置:上海市四川中路63号
项目面积:3486m²
完成年份:2019年7月
设计公司:HAD上海湾流建筑设计咨询有限公司
主创团队:刘欣旎,黄思俊,孙青,罗倩芸,杜斌彦
摄影版权:湾流国际,三盛亦合艺术设计顾问(北京)有限公司
合作方:三盛亦合艺术设计顾问(北京)有限公司
客户:湾流国际

