感谢来自 成都震翅SINCE SPACE空间设计有限公司 的商业项目案例分享:
对于商业空间来讲,我们经常思考这个空间的真正产品究竟是什么
For commercial space, we often think about what the real product of this space is.
于当下的这个时代
For this age
咖啡厅的产品是香浓的咖啡吗。餐厅的产品是美味佳肴吗。酒吧的产品是酒水吗。酒店的产品仅仅是一个可以睡眠休息的空间吗。
Is the product of the coffee shop fragrant coffee? Is the product of the restaurant delicious? Is the product of the bar drinks? Is the hotel’s product just a place to sleep and rest?


如果不是,那应该是什么
If not, what should it be?
是慵懒而放松的空间体验,是为特定人际关系应运而生的社交场景,还是独一无二的个人标签
Is it a lazy and relaxed space experience, a social scene for a particular interpersonal relationship, or a unique personal label?


每个时代都有其独树一帜的精神气韵和生长哲学。产能过剩、物质充裕的当下,刚需正慢慢离我们远去。取而代之的是能够满足精神及文化需求的体验经济。如何将触动人心的空间体验与商业品牌准确链接,成为我们解决问题的首要重心
Each era has its own unique spiritual charm and growth philosophy. Excess capacity and abundant material
Next, just need is slowly away from us. Instead, experience economy can meet the spiritual and cultural needs. How to link the touching space experience with the commercial brand accurately becomes the primary focus of our problem solving.


本案着重将空间识别、色彩识别、材质识别、灯光识别、气味识别作为品牌识别的重要核心。将空间气质作为品牌调性的直接呈现。希望给消费者带来最直接的全身心体验的同时占领消费者在此品类中的消费心智。
This case focuses on space recognition, color recognition, material identification, lighting recognition, odor recognition as an important core of brand recognition. Take spatial temperament as the direct presentation of brand tonality. Hope to bring consumers the most direct wholehearted experience while occupying the consumer mind in this category.












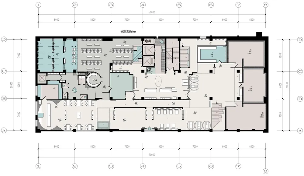
∇ 平面图

主要项目信息
项目名称:御鸣山汗蒸馆
项目地址:拉萨市,城关区,当热路70号
项目面积:1600㎡
设计公司:成都震翅SINCE SPACE空间设计有限公司
项目类型:汗蒸休闲馆

