以封闭外观包覆的明亮空间
SLD住宅位于墨尔本市中心的一条繁忙的街道上。虽然街道两侧绿树成荫,房屋的主人还是希望在视觉和听觉上保持一定的私密性。基于这一要求,建筑底部的体量被向内缩进,并通过一个独立的混凝土立柱为上方的体量加以支撑——这也是纯净立面上唯一一处具有雕刻感的地方。
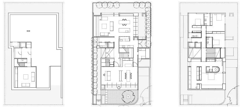
建筑的宽度(17.5米)允许设计师将交通空间设置在首层的核心筒周围,进而将整个住宅分为两个主要的区域:一个用于起居,另一个用于放松和娱乐。室内空间和结构元素实现了有效的结合,使家具的需求量大大减少。贯穿每个房间的走廊同时也与纵向的交通空间相连。另外还有一个尺度较小的走廊连接了餐厅和厨房。首层的环形交通路径提高了住宅的紧凑性,同时也起到了划分空间的作用。
住宅整体选用了简洁而天然的材料,为室内与室外空间带来极为顺畅的过渡。室内粗糙的威尼斯石膏饰面与外观上选用的天然水泥形成了呼应;一层和二层的地面均以抛光的花岗岩铺设,与软性景观及私人车道形成对比。相同材料的使用将内部空间自然地引向室外。通往两个主要户外空间的全玻璃旋转/滑动门进一步增强了室内外空间的连接性。
欧洲烟熏橡木板为空间增添了温暖和精致的感觉。吧台和浴室梳妆台等家具则使用了无装饰的单色大理石板。拉丝不锈钢被用于楼梯栏杆、窗框、入口大门以及厨房操作台上方的定制吊灯。
Project size: 600 m2
Site size: 513 m2
Completion date: 2018
Building levels: 3
Project team: Davidov Architects

