感谢来自 COLORFULL 昱景设计 的商业项目案例分享:
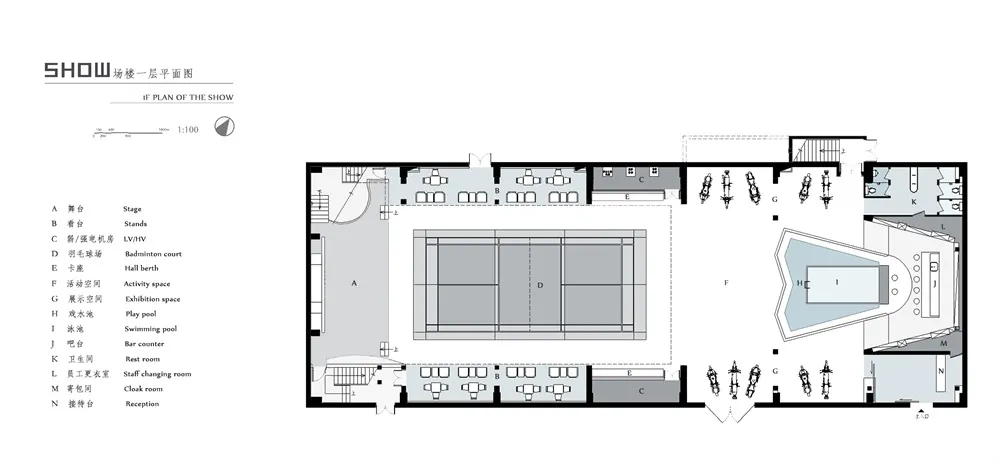
猫享BOX位于上海市普陀区潮州路508号文化创意产业园区内,羽毛球运动员王仪涵(羽毛球世界冠军)退役后,注册猫享文化品牌IP,同时为将运动精神延伸,出资搭建了这个以羽毛球为主题的创意空间——猫享BOX。按国际比赛规定,整个球场上空空间最低为9米,在这个高度以内,不得有任何横梁或其它障碍物,球场四周2米以内不得有任何障碍物。此建筑原为老厂房,具有足够的空间高度,故选址于此。此外,在强调“强社交”属性的当下,通过这样的配置和建筑理念,让“运动+社交”变得轻而易举且充满可能性。在顶级运动设施的加持下呈现轻松意境,在年轻化的夜店风格中贯彻运动精神,在迷离氛围中觥筹交错实现社交目的,这或许正是为猫享BOX赋予的全部建筑意义。
MEWBOX is located in the cultural and creative industry park of 508 Chaozhou Road, Putuo District, Shanghai. After retiring as a badminton world champion, Wang Yihan registered MEWBOX cultural brand IP and contributed to build this creative space. Using badminton as the theme, MEWBOX is built to continue the sports spirit. According to the regulations of international competition, the space over the whole stadium should be at a minimum of 9 meters. Within this height, there shall be no beams or other obstacles, and no obstacles shall be found within 2 meters around the stadium. This building was originally an old factory building. Sufficient space height is the main reason for the site choice. In addition, “social network” has become a significant element of contemporary society. Through such configuration and architectural concept, “sports social” becomes easy and full of possibilities. Under the support of the top sports facilities, it is possible to carry out the sports spirit in the younger nightclub style and to socialize in the dreamlike atmosphere, which may be all given by MEXBOX.
∇ 室内概览 interior overview

足够空旷的场地是此空间设计的特点之一,这也是取决于场地的功能使用,整个羽毛球场的设计规格完全按照国际比赛规定设置;其二则是内部不断变化的光线,根据不同的场景设计不同的灯光改变颜色和闪烁的频率。不同维度、不同氛围的灯光交织在一起,相映成趣。同时此空间也是高科技运动综合体,使人身临其境地享受虚拟现实体验。
Sufficient open space is one of the characteristics of space design, which also depends on various functions. The badminton court are completely designed in accordance with international competition regulations. Another element is the changing light inside. According to different scenes, different lights are designed to change the color and flicker frequency. At the same time, this space is also a high-tech sports complex, so that people can enjoy the virtual reality experience.
室内游泳区设计为空间当中最大的亮点之一—无边泳池系统。泳池周围以海洋球进行装点,LED柔光霓虹灯、栅格状不锈钢酒架的设计,不锈钢反射光影,光线穿透酒瓶,泳池party和光影横竖变化让整个空间氛围达到极致。
Indoor swimming pool is one of the highlights of space with the application of boundless swimming pool system. The pool is decorated with ocean balls, soft LED neon lights and stainless steel wine rack. Lights shine from different directions, reflecting and reacting with each other.



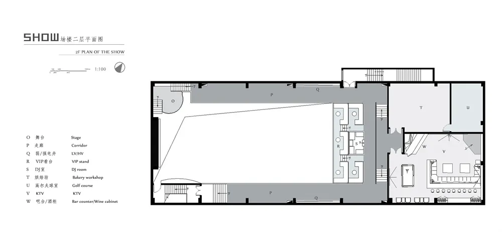
此空间作为一个独立KTV包厢,LED灯带在空间墙面以及顶面上排列组合成不连续的线条,在其地面投射出不同光影。整个空间,都是采用了钢石类等冰冷的材料,但是灯光的色彩加入以后,却显得光怪陆离迷幻绚丽。
As a separate KTV room, this space is designed with LED strips attached to the wall. The top surface is decorated with discontinuous lines, which projects different light shadows on the ground. The whole space is made of cold materials such as steel stones, but with added colorful light, it appears incredible and beautiful.

卫生间的灯光设计则区别于其他空间,整个光源呈现出橘色暖光,通过迷离的灯光和镜面的反复折射,营造一种迷幻的效果,在狭小的卫生间里光和人影交错让人仿佛置身迷宫一般。
The light design of bathroom is different from that of other spaces. The whole light source presents orange warm light. Through the stray light and mirror repeated refraction, psychedelic effect is then created. Standing in the narrow bathroom, reflected lights and figures create a world of labyrinth.

二层则是观看平台以及VIP卡座区。整个空间另一特色则是铁丝网中展示猫享BOX的品牌IP形象展示,铁丝网造型的设计灵感源于羽毛球羽造型,当灯光亮起,此为展示区;当灯光暗下,此部分能完美隐藏于整个空间中。
The second floor is designed as viewing platform and the VIP card holder area. Another feature of the whole space is the display of the brand IP image of the MEWBOX inside the wire mesh. The design of the wire mesh is inspired by the shape of shuttlecock feather. When the lights lit, exhibition area appears; when the lights dim, this part can be perfectly hidden in the entire space.

同时我们也对建筑外立面进行了改造,将羽毛球网纹样和IP形象绘于墙面,将主题贯穿整个建筑。
At the same time, we also redesign facade of the building. Pattern of badminton net and IP image are painted on the wall, which makes the project a complete story.

∇ 体量关系图 volume diagram



∇ 平面图 plan


∇ 剖面图 section

完整项目信息
项目名称:猫享BOX
项目地址:上海市普陀区潮州路508号文化创意产业园区
设计方:COLORFULL 昱景设计
建筑面积:2000㎡
公司网站:http://www.colorfull-design.com/
联系邮箱:[email protected]
项目设计 & 完成年份:2018
主创及设计团队:赵宗阳,小野良介,李立群,安部井乔,张凡星,张亚云,陈龙波,彭王思琪
摄影版权:赵航
客户:上海猫享文化创意股份有限公司
材料:LED霓虹灯、OSB吸音板、彩色亚克力板、喷砂不锈钢
Project name:Mew Box
Project location: Cultural and Creative Industrial Park, No.508 Chaozhou Road, Putuo District, Shanghai.
Design: COLORFULL YUJING DESIGN
Gross Built Area (square meters): 2000㎡
Website:http://www.colorfull-design.com/
Contact e-mail:[email protected]
Design year & Completion Year: 2018
Leader designer & Team: Sunny Zhao, Ryo Ono, Lily Li, Takashi Abei, Fanxing Zhang, Yun Zhang, Bo Chen, Wangsiqi Peng Photo credits: Hang Zhao
Client: Shanghai MEWBOX Culture and Creative Co., Ltd.
Material: LED Neon Light、OSB sound-absorbing panel、ACRYLIC with color、Stainless steel plate

