Sam Sam的室内以其干净、一体化的瓷砖的设计探索出一种优雅和谦逊的感觉,这种设计在墙壁、地板和家具周围不断流动,在空间的各个角落形成柔软的曲面。与Sam Sam的菜单相似,它的整体方案、照明功能和座位布局也为60年代的复古风格和韩国传统公共浴室的建筑提供了一种现代的方式。
Sam Sam’s interior explores a sense of elegance and modesty with its clean, perpendicular and tiled design that flows continuously around the walls, floors and furniture, forming soft curved surfaces along the corners of the space. Similar to Sam Sam’s menu, its overall scheme, lighting features, and seating layout also gives a contemporary approach to the retro style of the 60s and the architecture of traditional Korean public baths.
该项目的目的是为经典设计创造新的转折。 这个概念融入了一个真正创新的当代时尚世界,描绘了现代韩国室内风格与西方建筑语言之间模糊的界限。在韩国建筑“现代简约室内设计”的最新潮流的推动下,连续的线条和三维几何成为室内空间的主要语言。
The aim of this project is to create a new twist on a classic design. Bound into a truly innovative world of contemporary fashion, this concept depicts the blurred boundaries between modern Korean interior style and western architecture language. While driven by the recent trend in Korean architecture of “Modern Minimal Interior Design”, the continuous lines and three-dimensional geometry becomes the main language of the interior space.


同时,空间概念还需要与Sam Sam的“休闲和有趣的韩国餐饮”品牌概念相结合。通过这样做,项目的整体方案给人一种公共浴室建筑的感觉,这仍然是韩国文化的一部分。然后探索将文化和传统建筑融入更现代环境的可能性。
Significantly, the spatial concept also needed to be incorporated with Sam Sam’s branding concept of ‘casual and fun Korean dining’. In doing so, the overall scheme of the project gives a sense of a public bath architecture that is still part of Korean culture today. This then explores the possibility of adapting cultural and traditional architecture into a more contemporary setting.
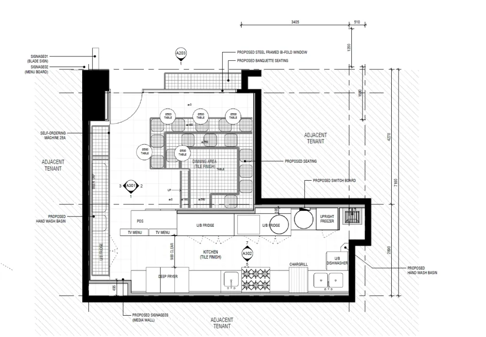
这个小型餐厅(17平方米的用餐面积)由自助点餐亭、柜台、吧台等12个座位组成。在这个项目中,团队使用了不同类型的组成、配置和布局,例如升高主要座位区域以在紧凑的空间中创建尺寸。团队还在项目中加入了复杂性和独特性,包括公共浴室的座位风格,同时弯曲边缘以强调连续性和极简主义,增添了一种精致和独特的感觉。
This small-scale restaurant (17m2 of dining area) is constituted to have more than 12 seats including self-ordering kiosks, a counter and bar area. With this programme, our team played with different types of compositions, configurations and layouts such as elevating the main seating area to create dimensions in a compact space. My team also added a sense of sophistication and uniqueness in the project by embracing the seating style of public baths while curving their edges to emphasize continuity and minimalism.








∇ 平面图

完整项目信息
项目名称:Sam Sam Korean Chicken and Beer
项目位置:澳大利亚墨尔本
项目类型:餐饮空间/餐厅酒吧
项目面积:24平方米
完成时间:2019
设计公司:Arkim
摄影:nguyen dang

