该项目地处市郊,地势平坦,周边由果树林、农田和溪流环绕,风景优美。场地东侧比邻着一座粮食加工厂,这是由建筑营早年设计的坡屋顶围合式建筑。用地上曾有一栋木屋,是十多年前典型的木结构产品样式。为了追求更好的空间品质,户主决定对其拆除并在原址新建一座房屋。建筑的基本功能是休闲度假,既可以居住,也可以用来接待客人。
从四合院到四合宅
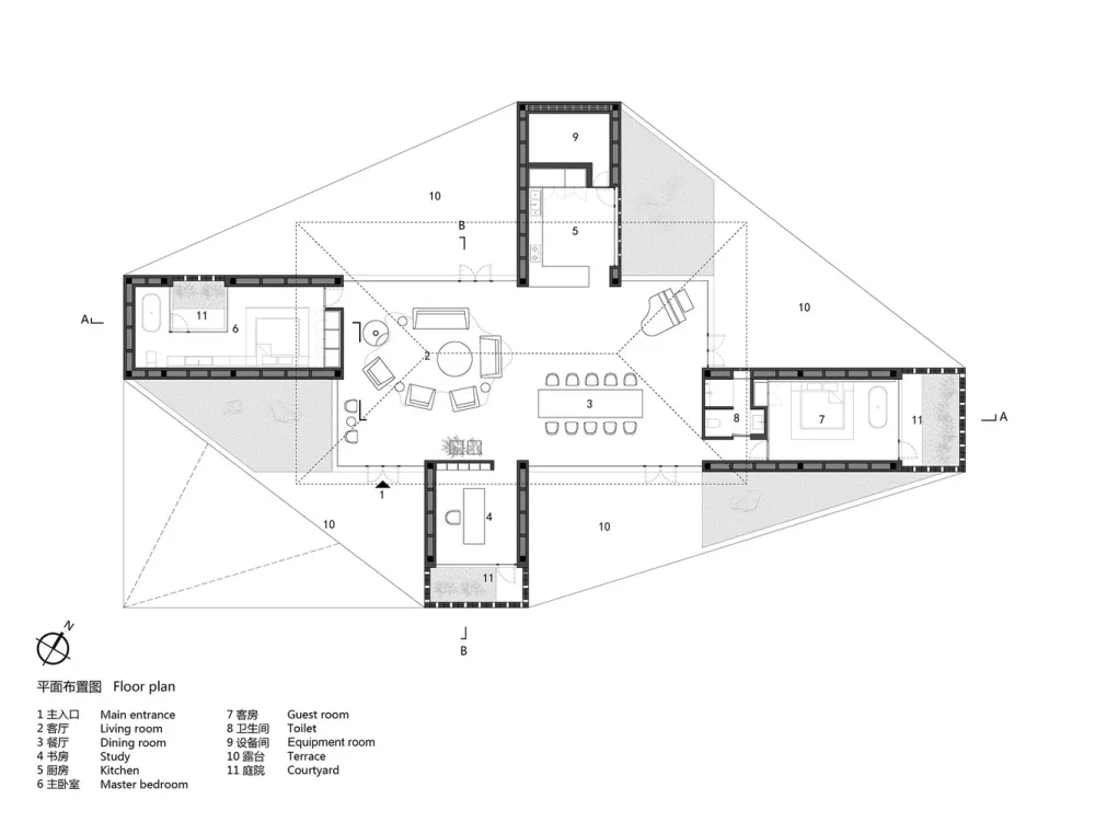
设计概念源自传统居住空间原型——四合院。四合院是一种内向型的建筑,由四向房屋围合一个庭院。建筑外部是封闭的,进入内部则完全开放,这使得个体生活缺乏私密性。结合这个特定场地和度假休闲的使用条件,我们决定把四合院变型成为“四合宅”。
在保持四向房屋各自独立的条件下,将“院”置换为有顶的厅,将四面围合转变为四面开放,让厅堂与外部优美的风景互通共存,同时保证个体生活的私密性与接待活动的开放性各得其所。
屋中有院,厅外有台
整座建筑建立在台基之上,四向房屋分居于台基的四角,共同构建出建筑的领域界限。四个房屋对外封闭,对内则包含不同尺度的内院,为室内提供景观和采光。房屋容纳了住宅中私密性功能和服务空间,比如卧房、书房以及厨房、设备间等,它们相互隔离避免干扰。
由四向房屋向内支撑起一片坡屋顶。屋顶之下是一个自由灵活的公共活动区域,包括会客、就餐、钢琴演奏等公共活动在此发生。透过透明的玻璃门窗,公共活动亦可向外延伸至四个方向的室外平台,共享周边绿意盎然的风景。
显现物料的朴素之美
控制空间、结构与材料的逻辑关系,围绕乡村休闲空间的基本特征,呈现物料的本真之美。四间房屋采用钢框架+混凝土板,现浇木模板混凝土顶板直接显现于室内空间之内。墙面使用了一种米黄色页岩砖。设计利用双层清水砖墙构造,在墙内空腔设有保温层,保证热工性能的同时,也保持了内外一体的砖材料肌理和质感,并隐藏结构、空调等设备管线。
墙面在庭院部分由实砖渐变为漏砖,让房屋内外保持着光线和空气上的流通。室内外台基地面也全部由米黄色砖铺砌而成。公共空间屋顶采用了木结构密肋梁,屋面覆盖火烧板屋面瓦。木与砖材料的结合,共同营造出室内空间朴素、温暖、自然的氛围,并且由壁炉、餐台和钢琴进一步定义了不同公共活动区域。
建筑设计:建筑营设计工作室
项目位置:唐山,河北,中国
主创建筑:韩文强
建筑及室内设计: 姜兆,胡博
建筑面积:265.0 平方米
项目年份:2019
厂家:Hongya Bamboo Era Technology
结构设计:张勇
水电设计:郑宝伟
暖通咨询:JAGA

