找回那些遗落的回忆和家的味道
 
 
游离于浮沉复杂、快节奏都市生活的我们,常常渴望逃离平日的喧嚣,静下心来去探寻这座城市的根基脉络,找回那些遗落的回忆和家的味道。而饺子对大众的意义,不仅仅是食物,也不只是进入口中那一瞬间的欢喜和赞叹,它是刻在心灵上的终生符号,更是慰藉,是治愈,是太多情感的承载。“饺上饺”是一家主营蒸饺的新兴餐饮品牌,项目位于无锡著名的网红一条街——崇宁路。设计师采用极简的空间形态,配以精致的美学呈现,在温馨与时尚兼具的风格下,打破传统美食固有的品牌印记,进而创造出一个与众不同的用餐环境,试图与庸常的现实进行有效地分隔。门头立面简约而不失细节,结构轮廓清晰且干练。红白色彩作为贯穿内外的基调,提取自这家店的主打产品——大虾仁蒸饺,既加深了消费者对原材料的印象,也能让人感受到整个空间热情与活力交织的温馨氛围。
 
 
推门而入,内部空间作为外部风格的延续,通透而细腻。在充分领会了品牌精神的基础上,传统的空间模式被打破。不同节奏的感知空间层层递进,纯粹的几何形状和简单的装饰自成章法,让人感觉既低调又有意义。
 
 
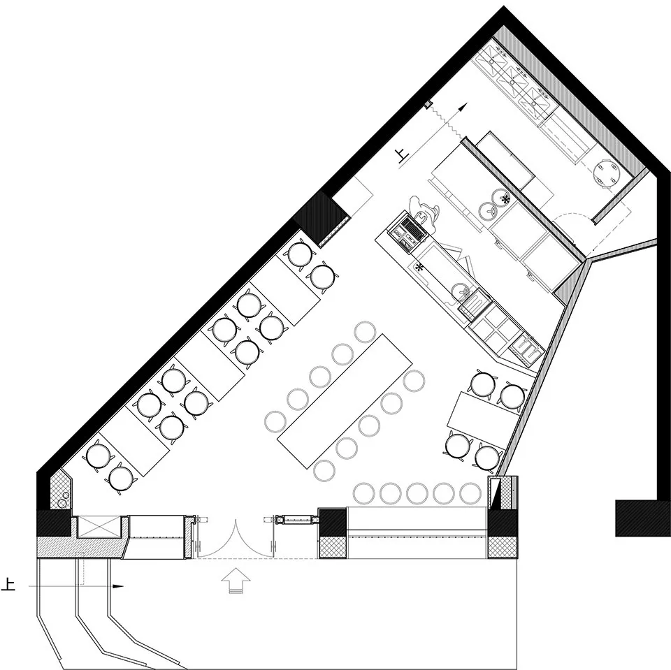
空间布局方面,设计师通过不同的材料和色调来区分不同的功能区域,售卖、后厨操作及客座各部分功能被混合揉捏、重新组织,避免了在小空间内使用物理隔断所带来的视觉压抑。长形高桌、临窗吧台以及靠墙散位,巧妙地衍生出多样的行走动线与就餐形式,空间层次感和舒适性在不经意间呼之欲出。
 
 
柜台区域设计了一个非常引人注目的外观,开放式的架构,让人在室内各个角度都可以看到蒸饺从制作到出餐的一切流动。台面之上的层板和吊柜,被不锈钢管穿过并拉结固定,远观似悬浮于空中,产生不一样的视觉效果。而光滑的镜面不锈钢顶板,在强化和稳定了整个结构的同时,也承担了射灯灯槽的作用。
 
 
材料选择上,主要采用了水磨石、乳胶漆、铁板与不锈钢。搭配和谐且过渡自然,不鲜艳刺眼,也不丧失光彩,强调现代年轻人和而不同的创新思维,亦恰如饺子,兼容并蓄、包罗万千。硬朗的灰度水磨石与线条分明的吊灯组合,在刚与柔、冷与暖的对比中,简约的奢华感在氛围松弛且优雅的空间里蔓延开来。
 
 
 
 
 
 
 
 
 
 
 
 
 
 
 
 
 
 
 
 
 
 
 
 
 
 
 
 
 
 
项目名称:饺上饺
项目地点:江苏无锡
空间设计机构:无锡欧阳跳建筑设计有限公司
公司网站:http://www.oyttdesign.com
联系邮箱:oyttdesign@vip.163.com
主创设计师:欧阳跳
辅助设计师:朱佳慧 周丹凤 李阳
合作品牌:涣承照明
摄影师:徐义稳
客户:邵佳樑
项目面积:68平方米
设计起止时间:2019年01月~2019年02月
项目造价:2500元/平方
主要材材:水磨石、乳胶漆、铁板、不锈钢
设计风格:时尚简约
空间用途:餐饮


