解构的焊接钢格栅
PerimeterX是一家年轻的高科技公司,专门从事预防和抵御恶性网络行为。公司在旧金山及以色列都设有办公室,它在以色列的新总部位于特拉维夫市中心一座新建高层建筑中,占据了整个22层。在办公空间内部,人们能够以360度的视野欣赏城市景观及海景。
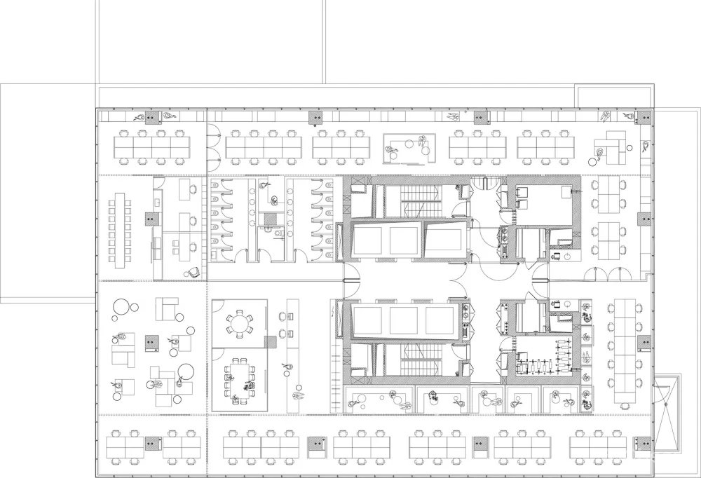
设计概念来自网格化的平面。空间划分为不同体块以及在封闭空间和独立元素之间的通道路径。几乎所有的员工都在一个开放式的空间中工作,封闭房间围绕着建筑核心,开放空间工作站作为独立元素布置在空间中心。因此,建筑边缘幕墙不受阻挡,整个空间都拥有绝佳的观景视野和光线。两个大型会议室是中央公共空间中,唯一设计成独立透明盒子的封闭体量。
二维网格与可移动分隔墙的轨道体系构成网格概念在垂直方向上延伸。这些隔墙可以划分空间,形成小组团队与大型聚会使用的区域。设计师设计了两种类型的分隔墙,一种是由工业钢焊接的格栅构成;另一种使用波纹聚碳酸酯板。
设计师的主要想法是选用工业化现成品并进一步加工成精细高品质部件。钢格栅被拆解,形成一种新的模式,从一个简单的网格变为工业风格的花边装饰元素。类似织物的分隔部件,在不形成遮挡的情况下划分空间。这种称之为编织元素的通透性,为人们提供了观赏周边城市景观的精妙、层次丰富的视野。白色波纹聚碳酸酯板分隔的空间被设计成更加独立的区域,更具私密性。
内部空间主要使用白色和灰色,公司标志中的红色作为点缀装饰。材料融合了光滑质感与工业风格——铝板覆盖的柱子和墙面搭配混凝土地面、白色解构焊接格栅分隔墙以及白色波纹聚碳酸酯板。
网格及其解构的概念也应用在照明系统中,结合白色铝材和led灯具形成一种新的网格体系。照明网格系统在整个空间中延伸,进一步突显出自由流动的空间布局。接待区利用光线重点强调,区域中解构的焊接格栅天花板也利用背光照明加以突出,在空间上方形成一个明亮的光区。
PerimeterX Offices
Ha-Arbaah Towers, Tel Aviv, Israel
https://www.perimeterx.com/
Design: Baranowitz & Goldberg Architects in Collaboration with Pitsou Kedem Architects
Architect in charge: Adi Peclet of Baranowitz & Goldberg Architects
Lighting Design: Orly Avron Alkabes
Built-up area: 1,000 square meters
Photography: Amit Geron

