这栋两层楼的阁楼位于工业建筑Mlynica,是一个不寻常的生活空间。Mlynica位于布拉迪斯拉发一个相当偏远的棕色地带,最近经历了广泛的改造,目前提供多功能空间,与极少的住宅用途。
This two-story loft situated in the industrial object Mlynica is an unusual living space. The Mlynica object itself, located in a rather remote brownfield in Bratislava, recently underwent an extensive transformation and currently offers multifunctional space with minimal residential use.
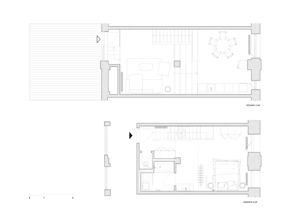
阁楼的布置是垂直定向的,可用的建筑面积为73平方米。入口在阁楼的底层,那里有壁橱、浴室、卫生间和卧室。 楼梯通向最上层,起居室与餐厅相连。
The disposition of the loft is vertically oriented with a usable floor area of 73㎡. The entrance is on the bottom floor of the loft, where the closet, bathroom, toilet, and bedroom are situated. A staircase leads to the uppermost level with a living room connected to the dining.




起居室可通往享有喀尔巴阡山脉景致的露台。 原始建筑材料与插入的木材和金属元素形成对比,在墙壁表面上具有暴露的电路。 阁楼的围护结构、墙壁、天花板和地板由粗糙的混凝土制成。
A terrace with a view over Carpathian mountains is accessible through the living room. Raw building materials are in contrast with inserted wood and metal elements with exposed circuits on wall surfaces. The envelope of the loft, its walls, ceiling, and floors, is made of roughly poured concrete.



位于楼上的起居室内的沙发是一个单独的,完全缓冲的部分,表面覆盖着灰色的软垫织物。阁楼由悬挂在床和餐桌上方的独特吊灯和嵌入式技术线照明和射灯组成。阁楼内部强调了原始美学,反映了该公寓的位置和特点,以及客户的个性。
The sofa in the living room on the upper floor is a solitary, fully cushioned piece coated with grey upholstering fabric. The loft is illuminated by distinctive pendant chandeliers hanging above the bed and dining table in combination with flush technical line lighting and spotlights. The project of the loft interior was a solitary and refreshing assignment accentuating raw esthetics and reflecting the character of the industrial location and object, as well as the persona of the client.













在阁楼的底层,有一个带嵌入式卫生间的集成门的内置衣柜,与衣柜门一起,形成一个光滑的全镜面表面。
On the bottom level of the loft, there is a built-in closet with integrated doors leading to sanitary cells, which, together with the closet doors, create a smooth full-mirror surface.
带有钢腿的水槽位于镜盒外面,与床之间由一根悬挂在天花板上的黑色钢衣条隔开,以及与房间高度相同长度的帷幔,可以用来分隔卧室和阁楼的其他部分。
A sink with steel legs is situated outside the mirror box and is separated from the bed by a black steel clothes bar suspended from the ceiling, as well as a drapery of the same length as the room height, which can be used to separate the bedroom from the rest of the loft.







∇ 平面图

∇ 剖透视图

主要项目信息
项目名称:Mlynica Loft Apartment
项目位置:捷克斯洛伐克,伯拉第斯拉瓦
项目类型:住宅空间/loft公寓
建筑面积:73㎡
完成时间:2018
建筑师:Juraj Hubinský, Kuklica x Smerek Architekti
摄影:Lousy Auber

