双年屋Bienhouse位于海滨,观景下龙湾,专为租客打造。最初的建筑状态是室内无家具,与其他Vinhomes房屋在外观上完全相似。房子视野开阔,走一小段路就可以到达海滩,那里有壮丽的景色,清新的空气,繁忙的船只和游艇活动。
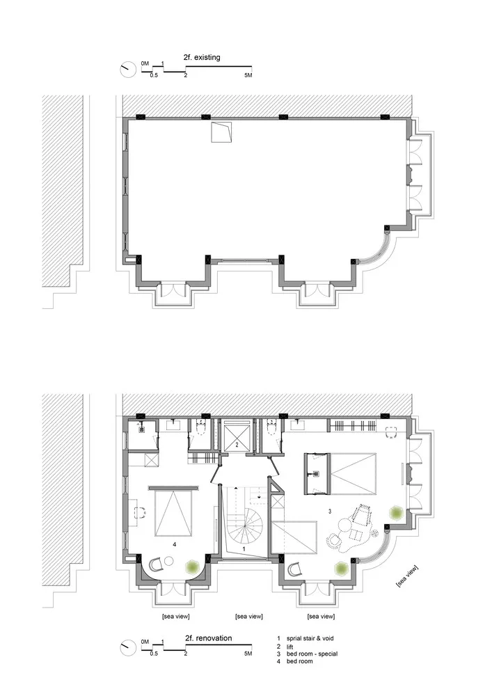
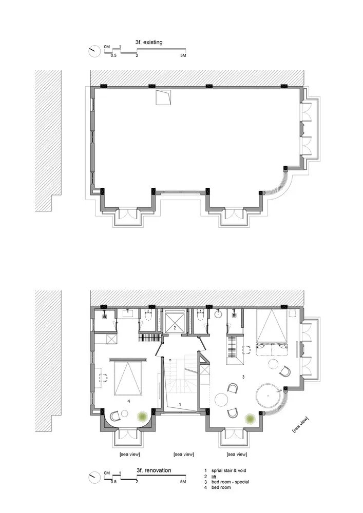
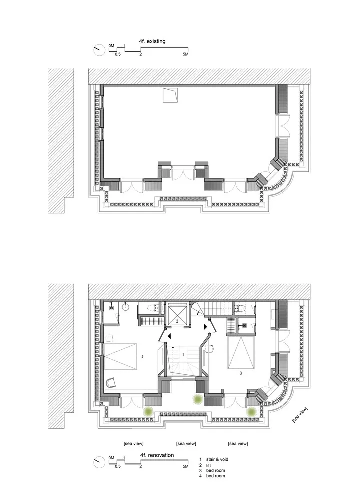
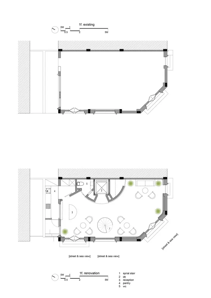
房子的内部设计是经过谨慎的计算和考虑的最佳安排。建筑内的任何地方都可以进入海滩的氛围,包括卧室、浴室、走廊、楼梯、屋顶等。钢楼梯和位于房子中心的空间有助于创造亮点和通风的空间。楼梯由曲线、线条、镂空部分组成,并绘制得非常出色。
卧室在结构上被软化,并最大限度地扩大。卧室里摆放的家具创造了开放舒适的空间。墙壁、天花板、地板和浴室瓷砖的材料都有相配的色调,带来轻松和海滩的感觉,例如,抛光混凝土的沙黄色、墙壁和天花板、窗帘、地毯的木质棕色、水泥浴缸的绿色、陶器和房子周围的图画。
五楼的天台可以看到下龙湾的景色,游客可以在天台上看到日出和日落
去海滩,放松一下,或者参加晚上的派对
建筑设计:Nemo Studio
项目位置:Vietnam
主创设计:Liz Nguyen, Nghiem Phong
设计团队:Aki Phuong, Hoang Xuan Hieu
设计面积:368.0 m2
设计时间:2019
翻译整理:如室设计网
摄影师:Vu Ngoc Ha
制造商:HAI, Vietceramics, Tran Sam
客户:Mr. Bien

