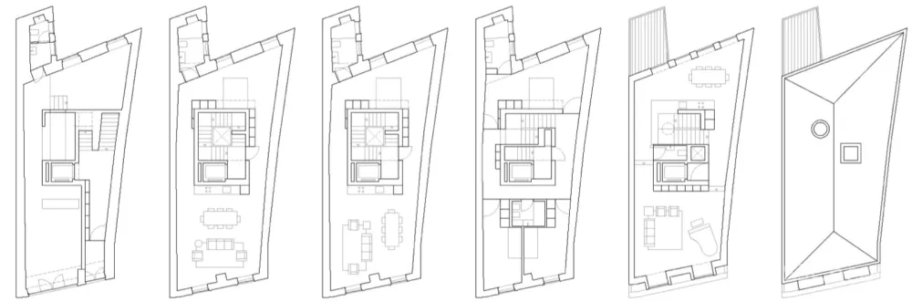
木制楼梯的交通核组居住织空间
Chã住宅原是一座废弃建筑,曾在几年前经历了一系列重大而仓促的结构转型。这些转变消除了建筑原有的尖角,十多年以来,这座建筑都一直保持着原样——一个长14米的宽阔空间。
本项目位于历史悠久的城市中心内,因此,建筑师着眼于此,并且通过设计手法,突出强调了这个特点。在最终的住宅中,所有空间都围绕着一个中央的核心空间布置,这个核心空间不仅在竖直方向上将各层空间联系在了一起,更承担了日常生活所必需的的各种功能职责。在形式上,这个核心空间能够根据不同的空间需求来进行适当的变形。此外,建筑师还改造了原先的屋顶空间,改造后的屋顶空间与原来顶层空间的一部分共同组成了一个全新的复式居住空间,而原来的顶层空间的其余空间则被改造成了两间工作室。
Project: Casa Chã
Architecture: Pablo Pita
Team: Pablo Rebelo . Pedro Pita . Catarina Alegria
Constructor: José Leal SC
Consultants: NCREP
Local: Porto . Portugal
Photography: José Campos

