古龙坡是一个地方,传说十龙之中有一条龙从天而降。由于拥有丰富的渔业资源,如鲸、蟹、鱿鱼等,成为日本殖民时期的掠夺港。当时制作它的日本House street现在仍然存在。古龙坡港的一侧挤满了小餐馆和酒吧,而另一侧,Ara广场等休闲空间则是混合的。
这位客户结婚30年来,一直在防波堤前经营一家小餐馆。现在,她想把那个地方变成一个小旅馆,在那里可以看到大海。由于被海景所吸引,我们开始在小预算下进行设计。我们想象了一个隐蔽的地方,除了看海景什么也不做。毗邻大海的场地不需要太多的设计。我们试图创造一个地方去感受大海,聆听海浪的声音,除了一块玻璃,没有任何人为的障碍。
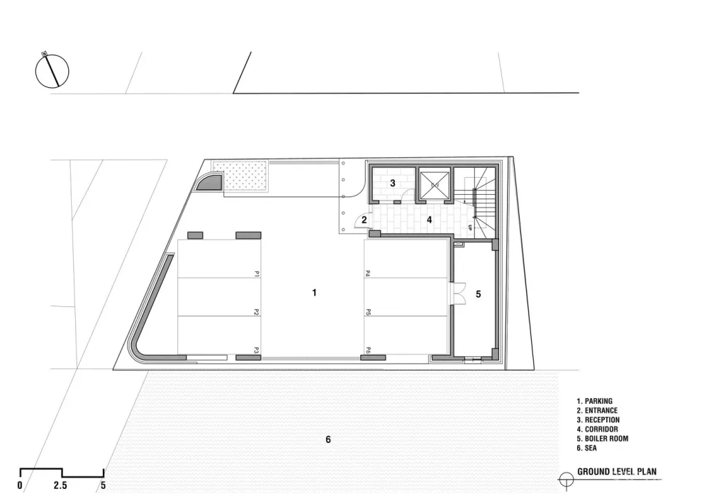
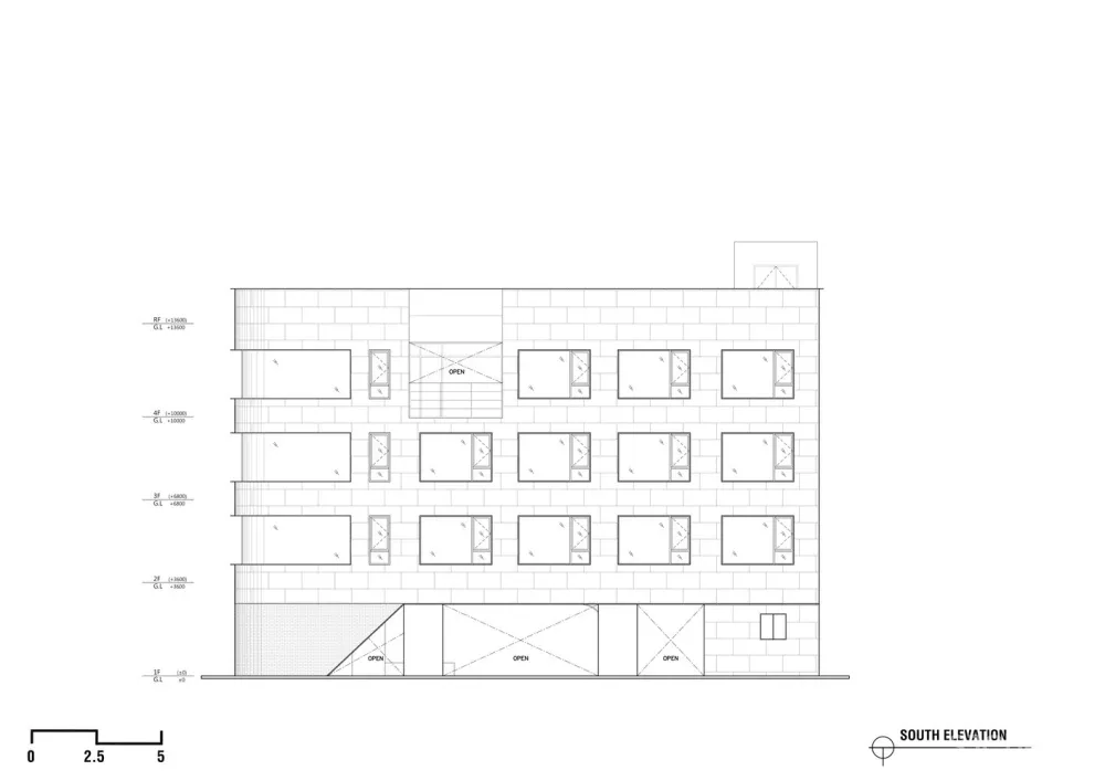
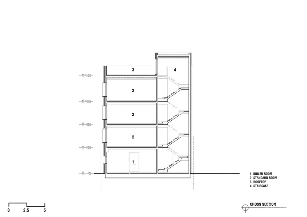
梯形的场地使得在西南角放置一个大单元成为可能,最大化视野的圆角窗与三角窗相连,形成动态的立面。酒店共有13个单元,其中标准间9间,豪华角房2间,套房1间,四楼角套房1间。浴缸被放置在豪华的角落房间和角落套房,在热水中放松,同时观看海景。
由于室内空间的主要设计点是将大海的视野由早变晚,所以我们试图在没有大胆色彩和设计的情况下,创造一个最小的自然空间。裸露的混凝土墙、橡木地板和白色天花板的组合,给人一种简单而原始的感觉,最少的照明和家具。
设计公司:Snow AIDe
项目位置:290-8 Homi-ro, Guryongpo-eup, Nam-gu, Pohang, Gyeongsangbuk-do, South Korea
主创设计:AHohyun Park + Hyunjoo Kim
设计面积:673.71 m2
摄影师:Jaeyoun Kim
制造商:Berry Alloc, LG Hausys, Younhyun


😊