
如果说设计是在诉说一种智慧,某种品质或关于美的感受,文化则是隐于设计手法下的思想脉络。在传统观念里,东方建筑崇尚委婉含蓄的品质,避免铺陈直叙的表达。在江南壹号院生活体验馆的设计理念中,我们则以现代语言回应传统江南院落的精神特质。
▼
场所意象
建筑位于杭州萧山科技城, 场所内临湖的景观优势使其增添了份江南水乡的灵动。“人“字型斜坡屋顶与极简白墙、黛瓦元素给人以鲜明的视觉印象,形成连续而富有韵律的整体界面。入口处采用仿木杆元素,形成半透的帘幕效果。建筑立面与景观小景的结合,刻画了一副江南山水的绝妙画卷。


人字形起伏的屋顶带来空间的丰富状态,这种起伏的状态似乎在宣示设计者对连绵山峦的偏爱。同时,我们也将外立面的语言符号延续至室内,呈现出纯粹动态的屋面。
 
▼
院落精神
传统院落中的天井,强调精神性与归属感。建筑同样在空间设计回应了这一观念,整体上如一处围合的宅院,其内部功能组织围绕着天井式中庭组成。



踏入前厅内,迎面即是景观中庭。自然光线透过中庭玻璃成为一处室内光源。四季更迭,光影变化,都像是被收集于这透明的景观容器内。与水景的结合,灌入这四方空间一股轻盈的流动感与鲜活的生命力,回应区域内临湖的环境特征。










▼
虚实体验
当我们游览园林时,时常流连于园中曲折回环、亦实亦虚的景观。在体验馆设计中,这种造园手法被运用在建筑空间内,意在营造一种虚实相间的空间序列。诸如在沿湖的转角处采用的玻璃材质,与白墙黛瓦的江南建筑元素,形成虚与实,现代与古朴,室内与室外融合相间的形式。




▼
结 语
在本案,我们试图刻画对传统江南建筑的理解,挖掘生长于空间中的文化根源。未来,如何以现代语言表达东方建筑的独特气韵,gad在思索更多可能的诠释方式。




↑ 总平面图
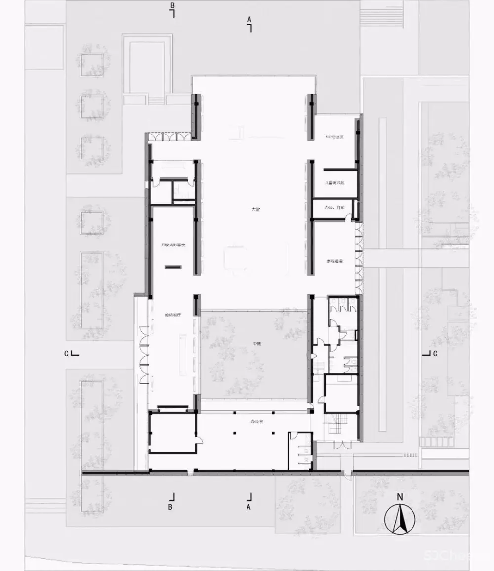
 ↑ 一层平面图
↑ 一层平面图
 ↑ 功能及流线分析图
↑ 功能及流线分析图
 ↑ 剖面A
↑ 剖面A
 ↑ 剖面B
↑ 剖面B
 ↑ 剖面C
↑ 剖面C
项目名称:江南壹号院生活体验馆
项目地点:浙江,杭州
详细地址:浙江省杭州市萧山区钱农东路
项目类型:公建
设计时间: 2017.11-2018.5
建成时间: 2018.8.18
项目规模: 2304平方米
摄影师:范翌
团队成员:张微、李伟、胡家梁
建筑:李伟、胡家梁
结构:叶晓萍、张郑超
给排水:聂莉
暖通:潘尤贵
电气:陈国平
室内设计:CAC/上海卡纳建筑装饰设计工程有限公司
景观设计:IPD/澳洲艺普得城市设计
原文始发于微信公众号( 室内设计师 ):白墙黛瓦的现代演绎 | 江南壹号院生活体验馆


