沿着日本御堂筋主干道走到中高层住宅和商业建筑的区域,突然出现了一个住宅区——一栋两层楼的小木屋。YMT-house就位于该区域,面积仅为49.5平方米,开放宽度为4米,深度为11米。 在这种有限的条件下,客户首先要求要有个四口之家的宽敞起居室,然后是私人房间,足够的存储空间和屋顶。为了在满足所有这些要求的同时丰富和改善生活方式,该项目着重于每个房间之间的尺度差异。
Walking down a Midosuji main street to the area with mid-to-high-rise residential and commercial buildings, suddenly a residential area filled densely with two storey wooden houses appeared. YMT-house is located in this area and measures just 49.5 square meter with 4m open width and 11m depth. In this limited condition, the client firstly required spacious living room for family of four, and then private rooms, enough storage, and the rooftop. To enrich and enhance life style while meeting all these requirements, the project focuses on the scale difference between each room.


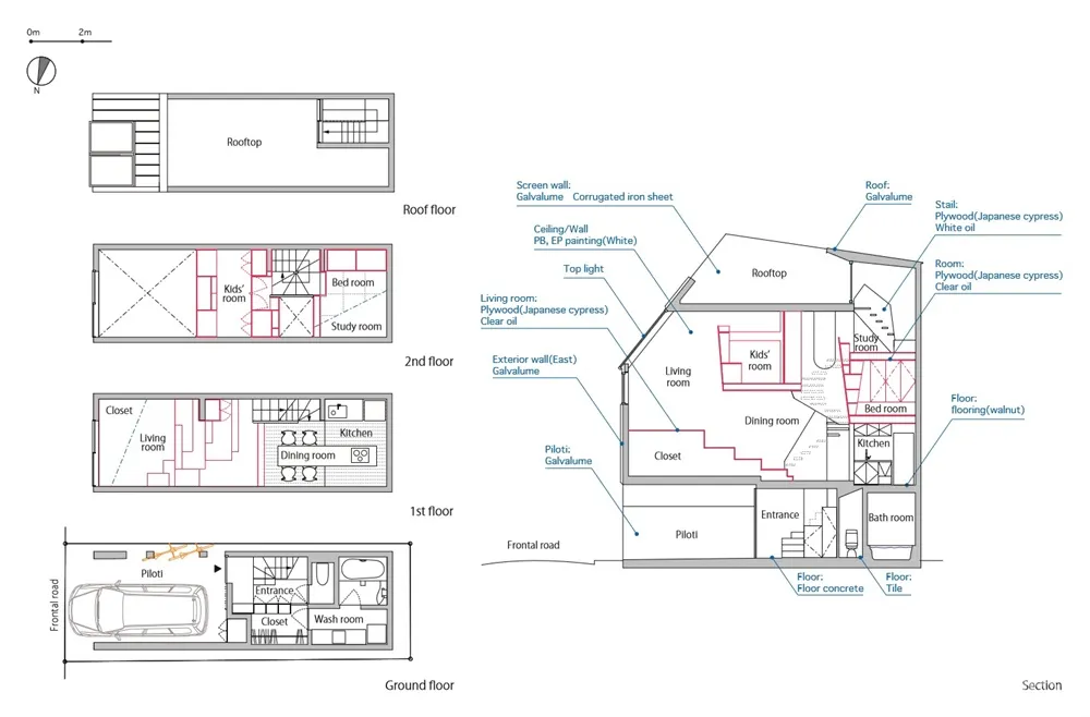
浴室位于底楼,起居室位于一楼和楼上。房间中间的阶梯状地板,创造出丰富的视野,可作为操场或多功能活动空间,让孩子们在日常生活中感到兴奋。上方的一个卧室只有三个带储物的榻榻米,小孩的房间大约有四个榻榻米,配有带家具的书桌和两张床。
Bathroom is located on the ground floor and the living room is on the first and above floor. Step-wise floor in the middle of the room create variety of sight view and it can be used as playground or multi-functional activity space for kids bringing excitement in daily life. A bed room above LDK is just three tatami-mat with storage, and kids’ room is about four tatami-mat with furnished desks and beds for two.


卧室的上半部分是储物间和书房的组合,其余的空间提供通往屋顶的楼梯。延伸的墙壁没有扶手,而是创造了封闭的空间,在遮挡他人视线的同时,将视线推向天空。户外空间作为第二个客厅,可用于各种活动,如烧烤或设置儿童充气游泳池。
Half of the upper part of the bed room is a combination storage and study room, the rest of space provide staircase to rooftop. Instead of having handrail, the extended wall creates enclosed space which promote smooth visual axis to the sky while shutting out from gaze of others. As a second living room, this outdoor space can be used for variety of activities such as BBQ or setting inflatable swimming pool for kids.


关于房屋结构,没有走廊,但大部分房间都直接连接到楼梯。这个楼梯不仅可以作为垂直移动线,还为阅读和休息提供了封闭的空间。像家具一样,客厅的台阶式地板和其他私人房间,包括卧室、儿童房和书房都是用日本柏木制成的,可以直接接触皮肤。
Regarding to house structure, there is no corridor but most of the room are connected directly to the staircase. This staircase is not only functioned as a vertical moving line but also provide enclosed space for reading books or having a break. Like a furniture, step-wise floor at the living room and other private rooms including bed room, kids’ room, and study room are made with Japanese cypress where it could get direct contact with the skin.










∇ 功能分区

∇ 平面图 & 剖面图

完整项目信息
项目名称:YMT House
项目位置:日本大阪
项目类型:住宅空间/别墅
完成时间:2018
项目面积:81.5平方米
设计公司:GENETO
摄影:Yasutake Kondo

